David Andrew says ..
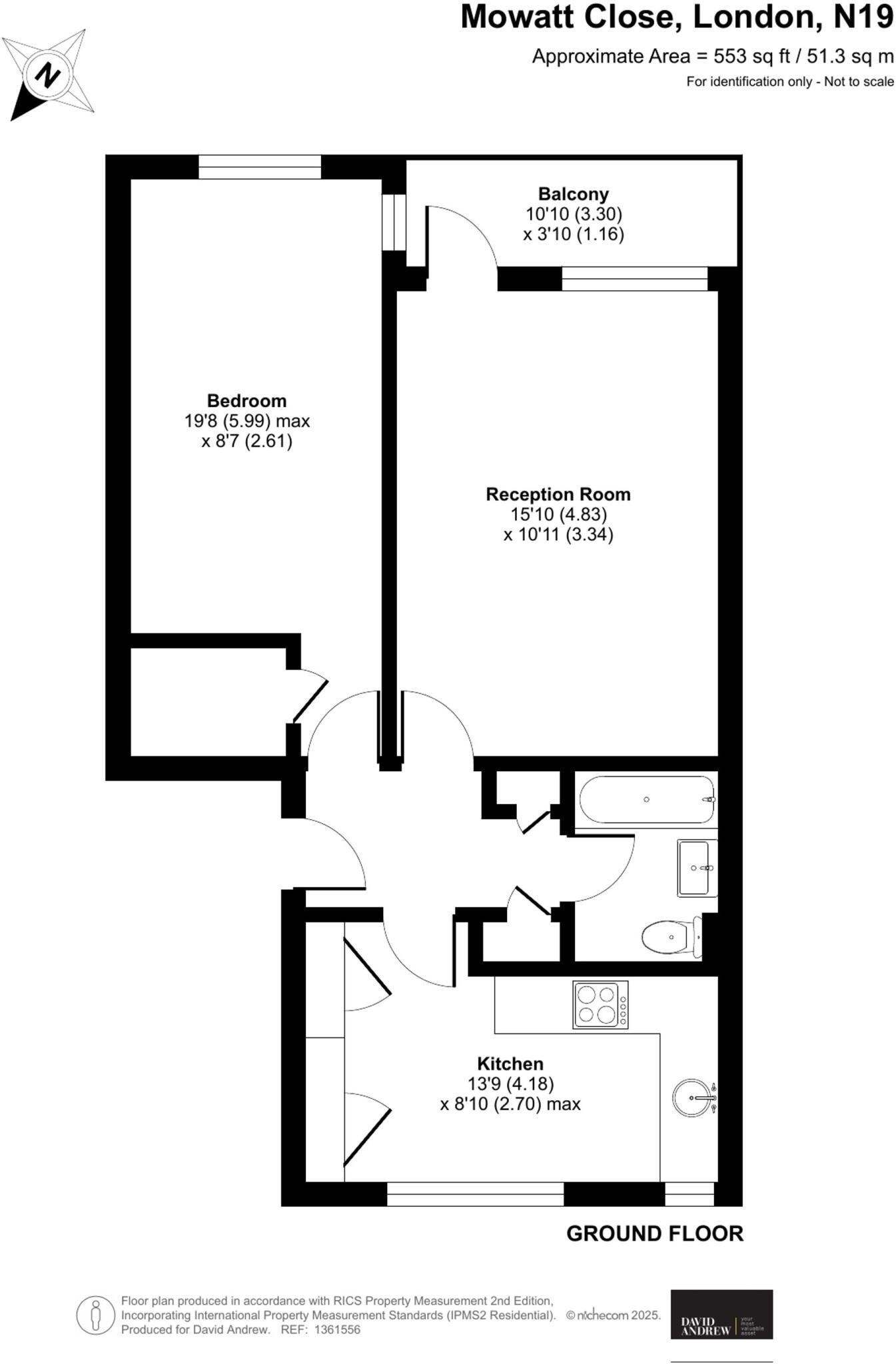
This stunning one-bedroom, flat is offered for sale with 553 square feet / 51.3 square metres of living space.
Property Oracle says ..
This is a one-bedroom flat in Hillrise, Islington. The property appears to be in good condition, with a modern kitchen and bathroom. It benefits from a balcony. The flat is located close to local amenities, schools and transportation links. The asking price of £350,000 seems reasonable given the location and condition of the property.
Therefore, we give this property 6 / 10. *Disclaimer: This is our option and does constitute a recommendation or financial advice. Do your own research. *
- Price
- 8
- Condition
- 8
- Location
- 7
- Land
- 4
- Bedrooms
- 1
- Bathrooms
- 1
- Sqft (est)
- 349.21
The heatmap indicates the level of crime in the area. The color of the heatmap indicates the crime severity and recency.
Metrics Year-on-Year
- Average area value
- 575,000.00 £Decreased by 30.23 %
- Est sale value
- 267,145.65 £Increased by 51.79 %
- Average area rental value
- 2,509.00 £/moIncreased by 9.42 %
- Est letting value
- 1,047.63 £/moIncreased by 200.00 %
- Est rental Yield
- 5.24 %Increased by 56.89 %
- Crime Rate
- 6.00 %Unchanged by 0.00 %
Agent Activity
David Andrew created the listing.
Nearby Schools
| Name | Type | Ofsted | Distance |
|---|---|---|---|
| City Of London Academy, Highgate Hill | Free Schools | 0.31 KM | |
| Duncombe Primary School | Community School | Good | 0.34 KM |
| Margaret Mcmillan Nursery School And Children'S Centre | Children's Centre | 0.57 KM | |
| Margaret Mcmillan Nursery School | Local Authority Nursery School | Good | 0.57 KM |
| St Mark'S Cofe Primary School | Voluntary Aided School | Good | 0.71 KM |
Images
Nearby Streets
| Name | Average Price | Average Sqft | Distance |
|---|---|---|---|
| Porter Square | £ 0 | 0 | 0.00 KM |
| Pegasus Court | £ 475,000 | 0 | 0.00 KM |
| Shaftesbury Road | £ 730,000 | 0 | 0.00 KM |
| Ivo Place | £ 0 | 0 | 0.00 KM |
| Hillrise Mansions | £ 425,000 | 0 | 0.00 KM |
Nearby Transport
| Name | NLC | TLC | Distance |
|---|---|---|---|
| Upper Holloway | 1524 | UHL | 0.48 KM |
| Crouch Hill | 7406 | CRH | 1.17 KM |
| Finsbury Park | 6119 | FPK | 2.29 KM |
| Kentish Town | 1553 | KTN | 2.38 KM |
| Harringay | 6012 | HGY | 2.65 KM |
Nearby Listings
| Address | Price | Type | Score | Distance |
|---|---|---|---|---|
| Mowatt Close, London, N19 | £ 350,000 | BUY | 6 / 10 | 0.00 KM |
| Mowatt Close, London, N19 | £ 550,000 | BUY | Unknown | 0.03 KM |
| Mowatt Close, Islington, London, N19 | £ 575,000 | BUY | 6 / 10 | 0.03 KM |
| Mowatt Close, Upper Holloway | £ 375,000 | BUY | 5 / 10 | 0.05 KM |
| Fairbridge Road, London, N19 | £ 1,450,000 | BUY | 7 / 10 | 0.07 KM |
Nearby Properties
| Address | Price | Distance |
|---|---|---|
| 51 Mowatt Close | £ 170,000 | 0.02 KM |
| 36 Mowatt Close | £ 430,000 | 0.02 KM |
| 42 Mowatt Close | £ 166,000 | 0.02 KM |
| 12 Mowatt Close | £ 194,000 | 0.02 KM |
| 2 Mowatt Close | £ 105,000 | 0.02 KM |