Brookside, Temple Ewell, CT16
By Lawrence & Co
£ 230,000
Reviews
2 out of 5 stars
Lawrence & Co says ..
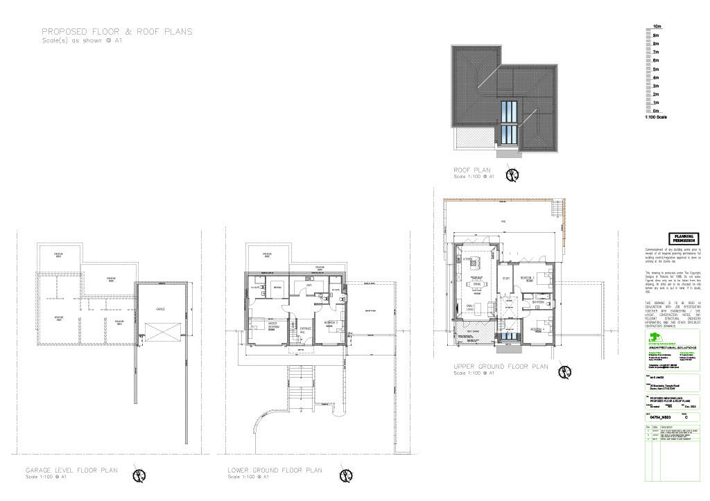
An exciting opportunity to acquire a plot of land, in an idyllic location, totalling approximately one third of an acre, with a 70ft frontage, with detailed planning consent for the erection of a four bedroom detached house under reference 21/00098 - full details can be viewed at
Property Oracle says ..
This property presents an opportunity to build a new home on a sizable plot of land in Temple Ewell, a village near Dover, Kent. The listing is for a plot of land with existing dilapidated structures which need significant attention or demolition. Planning permission has already been granted for a four-bedroom detached house, streamlining the development process. The location is positive, with a nearby primary school, secondary school, and train station. This convenient location combined with the large plot size creates a desirable opportunity for those interested in new construction. However, potential buyers should factor in the considerable costs associated with demolishing the existing structures and building a new home. The proximity to Dover also offers access to larger town amenities, balancing the convenience of a village setting with wider options for shopping and other services. The lack of current house data and existing property details in the dataset impacts the analysis, especially regarding the price per sqft metric. A comprehensive cost analysis factoring in the costs of demolition, construction, and planning fees would allow for a more precise evaluation of the property’s value and how it fits into the local market.
Therefore, we give this property 5 / 10. *Disclaimer: This is our option and does constitute a recommendation or financial advice. Do your own research. *
- Price
- 7
- Condition
- 3
- Location
- 7
- Land
- 6
- Bedrooms
- 0
- Bathrooms
- 0
The heatmap indicates the level of crime in the area. The color of the heatmap indicates the crime severity and recency.
Metrics Year-on-Year
- Average area value
- 420,000.00 £Decreased by 25.30 %
- Average area rental value
- 898.00 £/moDecreased by 22.79 %
- Est rental Yield
- 2.57 %Increased by 3.63 %
- Crime Rate
- 11.00 %Unchanged by 0.00 %
Agent Activity
Lawrence & Co marked this listing as sold.
Lawrence & Co created the listing.
Nearby Schools
| Name | Type | Ofsted | Distance |
|---|---|---|---|
| Temple Ewell Church Of England Primary School | Academy Sponsor Led | Outstanding | 0.09 KM |
| The Sallygate School | Other Independent Special School | Good | 0.75 KM |
| River Primary School | Community School | Outstanding | 1.38 KM |
| The Buttercup Children'S Centre | Children's Centre | 2.83 KM | |
| Snowdrop Children'S Centre | Children's Centre | 2.83 KM |
Images
Nearby Streets
| Name | Average Price | Average Sqft | Distance |
|---|---|---|---|
| Mill Street | £ 495,000 | 0 | 0.00 KM |
| Manor View | £ 0 | 0 | 0.00 KM |
| High Street | £ 260,000 | 0 | 0.00 KM |
| Chilton Avenue | £ 0 | 0 | 0.00 KM |
| Egerton Road | £ 0 | 0 | 0.00 KM |
Nearby Transport
| Name | NLC | TLC | Distance |
|---|---|---|---|
| Kearsney (Kent) | 5038 | KSN | 0.78 KM |
| Dover Priory | 5033 | DVP | 5.29 KM |
| Shepherds Well | 5186 | SPH | 5.63 KM |
| Snowdown | 5185 | SWO | 9.06 KM |
| Martin Mill | 5040 | MTM | 9.35 KM |
Nearby Listings
| Address | Price | Type | Score | Distance |
|---|---|---|---|---|
| Brookside, Temple Ewell, CT16 | £ 230,000 | BUY | 5 / 10 | 0.00 KM |
| Kyle Court, Dover, CT16 | £ 395,000 | BUY | 8 / 10 | 0.10 KM |
| Kyle Court, Waters End, Temple Ewell, Dover, CT16 | £ 350,000 | BUY | 6 / 10 | 0.12 KM |
| Church Hill, Temple Ewell, Dover, CT16 3DR | £ 320,000 | BUY | 7 / 10 | 0.13 KM |
| Church Hill, Dover, CT16 | £ 325,000 | BUY | 6 / 10 | 0.13 KM |
Nearby Properties
| Address | Price | Distance |
|---|---|---|
| 20 Brookside | £ 300,000 | 0.05 KM |
| 19 Brookside | £ 173,000 | 0.05 KM |
| 21 Brookside | £ 145,000 | 0.05 KM |
| 18 Brookside | £ 170,000 | 0.05 KM |
| 22 Brookside | £ 235,000 | 0.05 KM |