Wentworth Road, Croydon
By Oaks Estate Agents
£ 425,000
Reviews
3 out of 5 stars
Oaks Estate Agents says ..
Oaks Estate Agents is delighted to present this beautifully presented two/three-bedroom terraced home, located on the quiet and sought-after residential Wentworth Road.
Property Oracle says ..
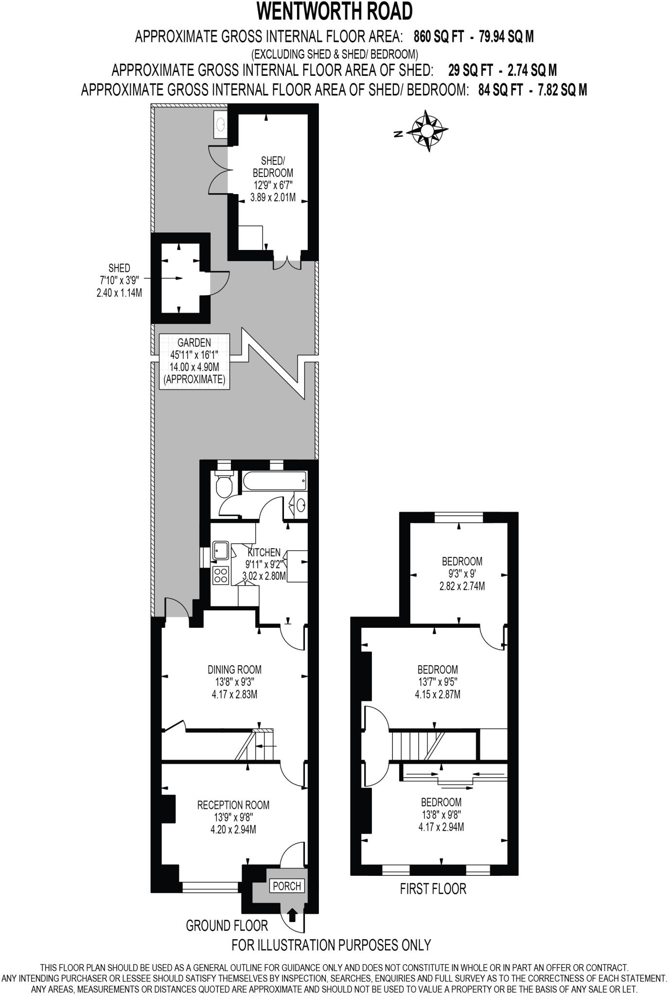
This is a three-bedroom end-of-terrace house in Broad Green, Croydon. The property offers 860 sqft of living space and includes a garden. The house is located within a reasonable distance of local schools and West Croydon station. The interior is well-presented, although the bathroom could use some modernisation. The asking price of £425,000 is in line with similar properties in the area.
Therefore, we give this property 7 / 10. *Disclaimer: This is our option and does constitute a recommendation or financial advice. Do your own research. *
- Price
- 7
- Condition
- 7
- Location
- 7
- Land
- 7
- Bedrooms
- 3
- Bathrooms
- 1
- Sqft (est)
- 860.00
The heatmap indicates the level of crime in the area. The color of the heatmap indicates the crime severity and recency.
Metrics Year-on-Year
- Average area value
- 299,286.00 £Decreased by 12.95 %
- Est sale value
- 371,520.00 £Increased by 3.60 %
- Average area rental value
- 1,709.00 £/moDecreased by 4.68 %
- Est letting value
- 1,720.00 £/moUnchanged by 0.00 %
- Est rental Yield
- 6.85 %Increased by 9.42 %
- Crime Rate
- 5.00 %Unchanged by 0.00 %
Agent Activity
Oaks Estate Agents created the listing.
Nearby Schools
| Name | Type | Ofsted | Distance |
|---|---|---|---|
| Broad Green Sure Start | Children's Centre Linked Site | 0.28 KM | |
| Addington Valley Academy | Free Schools Special | 0.29 KM | |
| Harris Primary Academy Croydon | Academy Sponsor Led | 0.48 KM | |
| West Thornton Primary School | Academy Sponsor Led | 0.85 KM | |
| Elmwood Infant School | Community School | Good | 0.99 KM |
Images
Nearby Streets
| Name | Average Price | Average Sqft | Distance |
|---|---|---|---|
| York Road | £ 0 | 0 | 0.00 KM |
| York Road | £ 0 | 0 | 0.00 KM |
| Campbell Road | £ 0 | 0 | 0.00 KM |
| Allen Road | £ 0 | 0 | 0.00 KM |
| Drake Road | £ 0 | 0 | 0.00 KM |
Nearby Transport
| Name | NLC | TLC | Distance |
|---|---|---|---|
| West Croydon | 5411 | WCY | 1.52 KM |
| Waddon | 5392 | WDO | 1.96 KM |
| Thornton Heath | 5388 | TTH | 2.22 KM |
| East Croydon | 5355 | ECR | 2.64 KM |
| Selhurst | 5434 | SRS | 3.02 KM |
Nearby Listings
| Address | Price | Type | Score | Distance |
|---|---|---|---|---|
| Wentworth Road, Croydon | £ 425,000 | BUY | 7 / 10 | 0.00 KM |
| Wentworth Road, Croydon, Surrey | £ 400,000 | BUY | Unknown | 0.02 KM |
| Wentworth Road, Croydon | £ 300,000 | BUY | 5 / 10 | 0.05 KM |
| Sutherland Road, Croydon, CR0 | £ 415,000 | BUY | 7 / 10 | 0.05 KM |
| Sutherland Road, Croydon, CR0 | £ 425,000 | BUY | 7 / 10 | 0.06 KM |
Nearby Properties
| Address | Price | Distance |
|---|---|---|
| 78 Wentworth Road | £ 226,000 | 0.03 KM |
| 28 Sutherland Road | £ 355,000 | 0.05 KM |
| 56 Sutherland Road | £ 198,000 | 0.05 KM |
| 16 Sutherland Road | £ 175,000 | 0.05 KM |
| 44 Sutherland Road | £ 275,000 | 0.05 KM |