Nunthorpe Road, York
By Churchills Estate Agents
£ 495,000
Reviews
3 out of 5 stars
Churchills Estate Agents says ..
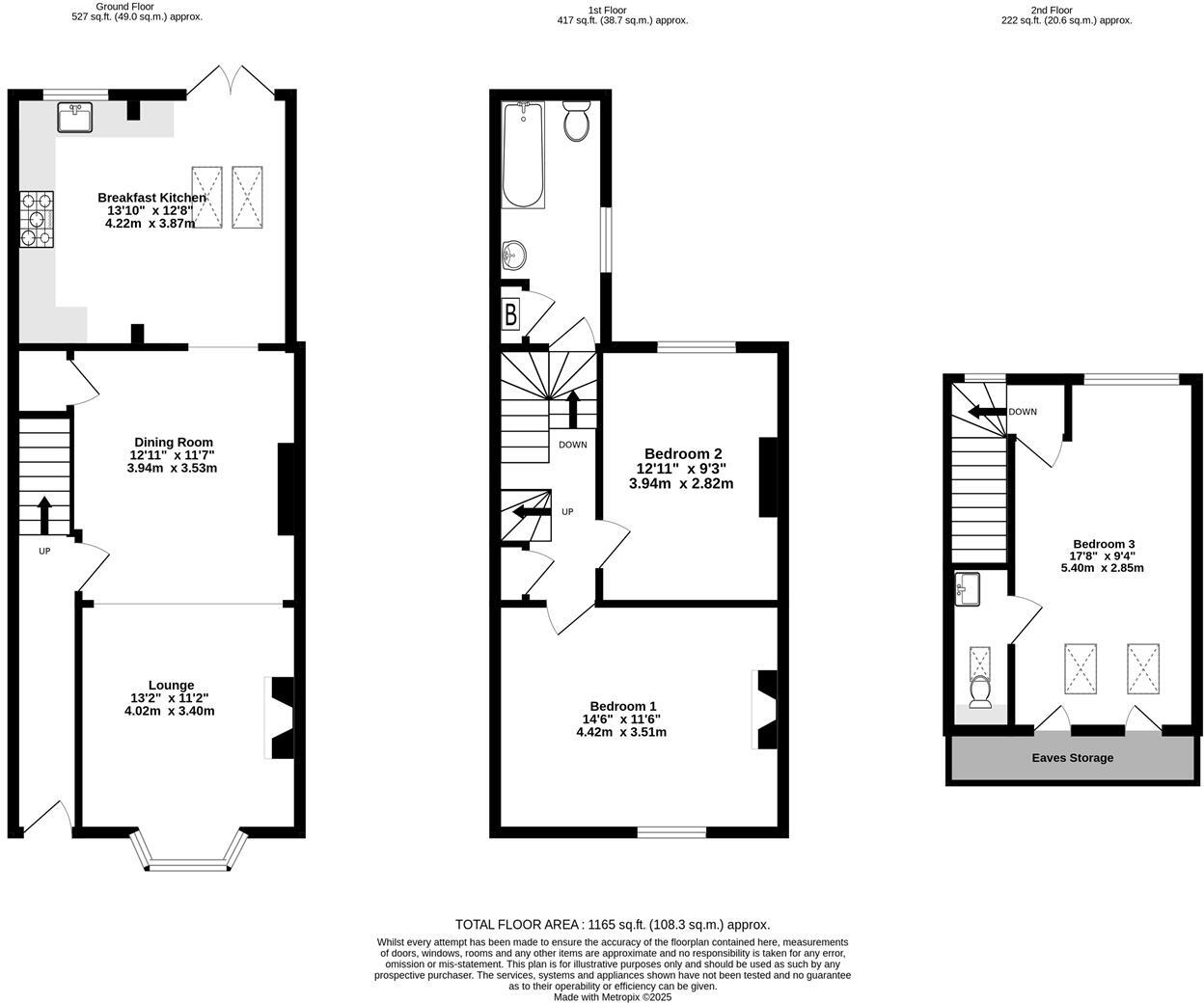
A Superb Three-Bedroom Period Terrace on a Highly Sought-After Street Beautifully arranged over three floors, this charming fore-courted period terrace is located just moments from the ever-popular Bishopthorpe Road parade and within easy reach of Rowntree Park, York city centre, and the rail...
Property Oracle says ..
This is a well-presented terraced property located in a desirable area of York. The house benefits from a modern kitchen and bathrooms, and a pleasant garden. While generally in good condition, some minor cosmetic improvements could further enhance the property. Its location near schools and transport links makes it an attractive option for families and commuters. The asking price appears reasonable in comparison to other properties in the area, making it a potentially good investment.
Therefore, we give this property 7 / 10. *Disclaimer: This is our option and does constitute a recommendation or financial advice. Do your own research. *
- Price
- 7
- Condition
- 7
- Location
- 8
- Land
- 6
- Bedrooms
- 3
- Bathrooms
- 2
The heatmap indicates the level of crime in the area. The color of the heatmap indicates the crime severity and recency.
Metrics Year-on-Year
- Average area value
- 542,496.00 £Increased by 34.28 %
- Average area rental value
- 1,435.00 £/moIncreased by 6.30 %
- Est rental Yield
- 3.17 %Decreased by 20.95 %
- Crime Rate
- 9.00 %Unchanged by 0.00 %
Agent Activity
Churchills Estate Agents created the listing.
Nearby Schools
| Name | Type | Ofsted | Distance |
|---|---|---|---|
| Scarcroft Primary School | Academy Converter | 0.36 KM | |
| Millthorpe School | Academy Converter | Good | 0.46 KM |
| Knavesmire Children'S Centre | Children's Centre | 0.83 KM | |
| Knavesmire Primary School | Academy Converter | 0.83 KM | |
| The Mount School (York) | Other Independent School | 1.18 KM |
Images
Nearby Streets
| Name | Average Price | Average Sqft | Distance |
|---|---|---|---|
| Drake Street | £ 180,000 | 0 | 0.00 KM |
| Bishopgate Street | £ 0 | 0 | 0.00 KM |
| Nunnery Lane | £ 0 | 0 | 0.00 KM |
| Bishops Court | £ 0 | 0 | 0.00 KM |
| Trinity Court | £ 282,500 | 0 | 0.00 KM |
Nearby Transport
| Name | NLC | TLC | Distance |
|---|---|---|---|
| York | 8263 | YRK | 1.00 KM |
| Poppleton | 8254 | POP | 7.33 KM |
Nearby Listings
| Address | Price | Type | Score | Distance |
|---|---|---|---|---|
| Nunthorpe Road, York | £ 495,000 | BUY | 7 / 10 | 0.00 KM |
| Nunthorpe Road, York | £ 429,500 | BUY | 7 / 10 | 0.02 KM |
| Nunthorpe Road, York, YO23 1BG | £ 365,000 | BUY | Unknown | 0.02 KM |
| Scarcroft Road, York | £ 200,000 | BUY | 6 / 10 | 0.05 KM |
| Nunthorpe Road, York | £ 650,000 | BUY | 7 / 10 | 0.05 KM |
Nearby Properties
| Address | Price | Distance |
|---|---|---|
| 39 Nunthorpe Road | £ 395,000 | 0.02 KM |
| 15 Nunthorpe Road | £ 320,000 | 0.02 KM |
| 29 Nunthorpe Road | £ 211,000 | 0.02 KM |
| 10 Nunthorpe Road | £ 265,000 | 0.02 KM |
| 34 Nunthorpe Road | £ 342,000 | 0.02 KM |