CH
Eastleaze Road, Eastleaze, Swindon
By Chappells
£ 250,000
Reviews
3 out of 5 stars
Chappells says ..
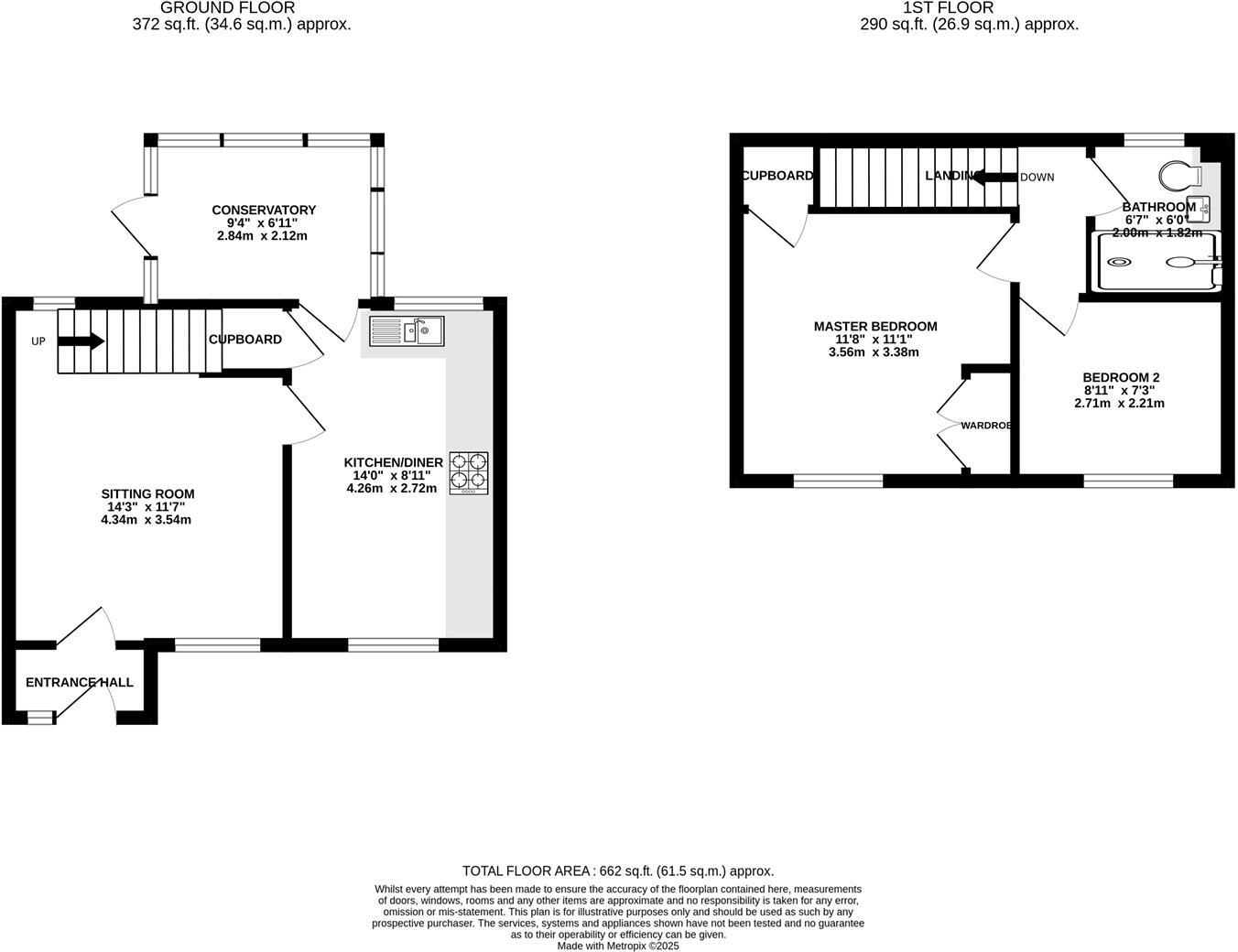
** NEW INSTRUCTION ** This spacious end of terrace house being sold with no onward chain is situated in a popular cul-de-sac in Eastleaze. This lovely home is well presented throughout and has accommodation including an entrance porch, lounge, a re-fitted kitchen/diner, a bright and sunny conser...
Property Oracle says ..
Therefore, we give this property 7 / 10. *Disclaimer: This is our option and does constitute a recommendation or financial advice. Do your own research. *
- Price
- 6
- Condition
- 8
- Location
- 7
- Land
- 7
- Bedrooms
- 2
- Bathrooms
- 1
- Sqft (est)
- 590.77
The heatmap indicates the level of crime in the area. The color of the heatmap indicates the crime severity and recency.
Metrics Year-on-Year
- Average area value
- 256,741.00 £Decreased by 11.11 %
- Est sale value
- 213,267.97 £Increased by 37.79 %
- Average area rental value
- 1,045.00 £/moIncreased by 8.52 %
- Est letting value
- 590.77 £/mo
- Est rental Yield
- 4.88 %Increased by 22.00 %
- Crime Rate
- 6.00 %Unchanged by 0.00 %
from 288,824.00 £
from 154,781.74 £
from 963.00 £/mo
from 0.00 £/mo
from 4.00 %
from 6.00 %
Agent Activity
Chappells marked this listing as sold.
Chappells created the listing.
Nearby Schools
| Name | Type | Ofsted | Distance |
|---|---|---|---|
| Westlea Primary School | Academy Converter | Good | 0.24 KM |
| Shaw Ridge Primary School | Academy Converter | Good | 0.55 KM |
| Oliver Tomkins Church Of England Infant And Nursery School | Voluntary Aided School | Good | 1.02 KM |
| Oliver Tomkins Church Of England Junior School | Voluntary Aided School | Good | 1.02 KM |
| Hazelwood Academy | Academy Sponsor Led | Good | 1.22 KM |
Images
Nearby Streets
| Name | Average Price | Average Sqft | Distance |
|---|---|---|---|
| Toothill | £ 0 | 0 | 0.00 KM |
| Magnolia Gardens | £ 0 | 0 | 0.00 KM |
| Heathcote Close | £ 0 | 0 | 0.00 KM |
| Redcap Close | £ 0 | 0 | 0.00 KM |
| Baird Close | £ 0 | 0 | 0.00 KM |
Nearby Transport
| Name | NLC | TLC | Distance |
|---|---|---|---|
| Swindon (Wilts) | 3333 | SWI | 4.53 KM |
Nearby Listings
| Address | Price | Type | Score | Distance |
|---|---|---|---|---|
| Eastleaze Road, Eastleaze, Swindon | £ 250,000 | BUY | 7 / 10 | 0.00 KM |
| Eastleaze Road, Eastleaze, Swindon, Wiltshire, SN5 | £ 220,000 | BUY | 6 / 10 | 0.05 KM |
| Aldborough Close, Westlea, Swindon | £ 70,000 | BUY | Unknown | 0.06 KM |
| Aldborough Close, Westlea, Swindon | £ 70,000 | BUY | 5 / 10 | 0.07 KM |
| Stonefield Close, Swindon, Wiltshire | £ 200,000 | BUY | Unknown | 0.09 KM |
Nearby Properties
| Address | Price | Distance |
|---|---|---|
| 21 Eastleaze Road | £ 85,000 | 0.01 KM |
| 4 Eastleaze Road | £ 170,000 | 0.01 KM |
| 15 Eastleaze Road | £ 190,000 | 0.01 KM |
| 12 Eastleaze Road | £ 165,000 | 0.01 KM |
| 11 Eastleaze Road | £ 172,000 | 0.01 KM |