Main Door 105 Queensborough Gardens, Hyndland, G12 9RS
By Corum
£ 335,000
Reviews
3 out of 5 stars
Corum says ..
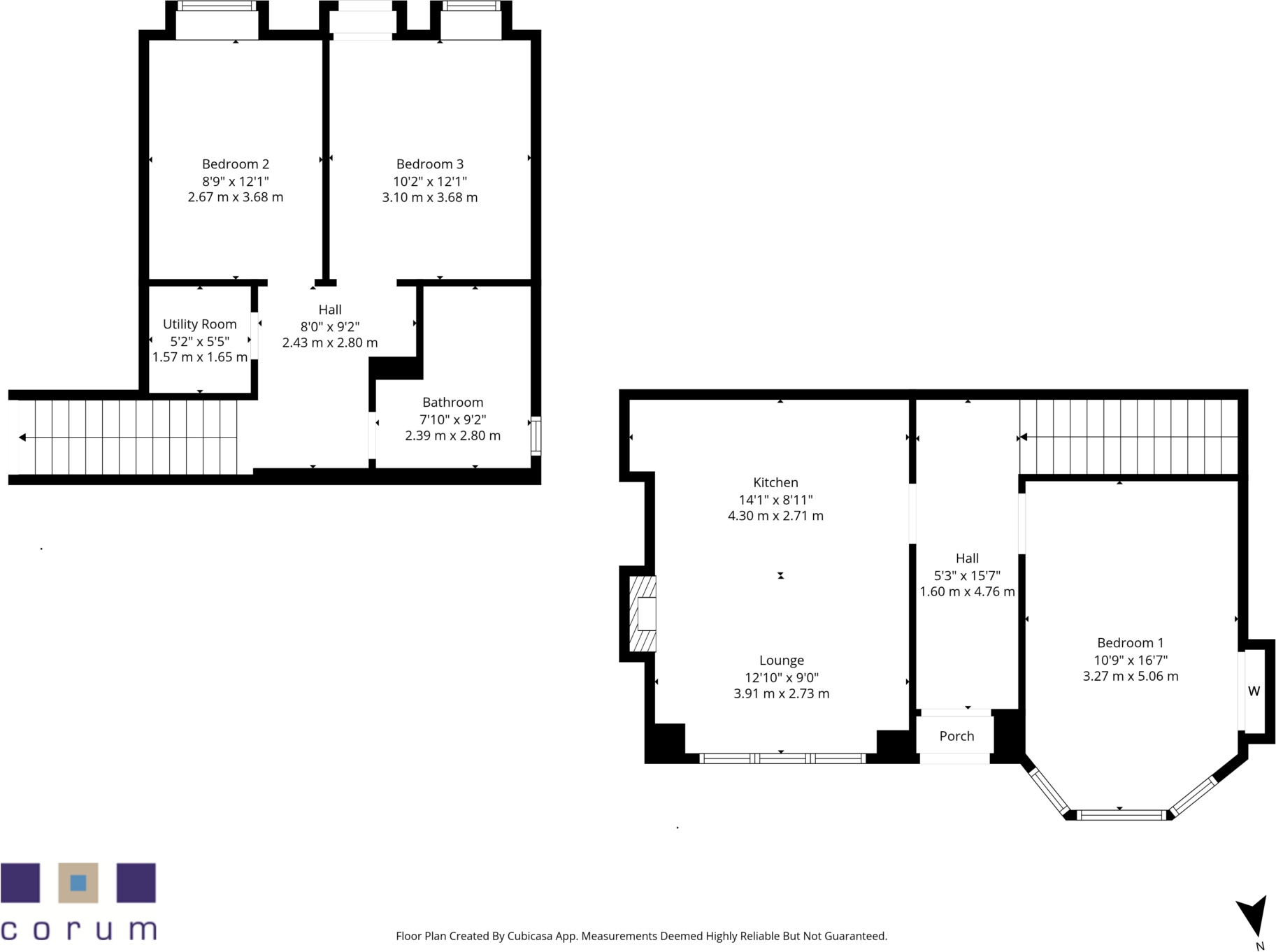
A superb and rarely available, elevated main door duplex apartment, located in the desirable Hyndland district.
Property Oracle says ..
This is a well-presented 3-bedroom flat located in the desirable Hyndland area of Glasgow. The property benefits from a modern interior, a private garden, and proximity to local amenities and transport links. While the property is in good condition and located in a sought-after area, the list price appears to be relatively high compared to the average price per square foot in the area. Potential buyers should consider this when making an offer.
Therefore, we give this property 7 / 10. *Disclaimer: This is our option and does constitute a recommendation or financial advice. Do your own research. *
- Price
- 6
- Condition
- 8
- Location
- 8
- Land
- 7
- Bedrooms
- 3
- Bathrooms
- 1
- Sqft (est)
- 902.23
The heatmap indicates the level of crime in the area. The color of the heatmap indicates the crime severity and recency.
Metrics Year-on-Year
- Average area value
- 273,565.00 £Increased by 3.79 %
- Est sale value
- 254,428.86 £Increased by 9.73 %
- Average area rental value
- 1,350.00 £/moDecreased by 11.01 %
- Est letting value
- 902.23 £/moUnchanged by 0.00 %
- Est rental Yield
- 5.92 %Decreased by 14.33 %
- Crime Rate
- 0.00 %
Agent Activity
Corum created the listing.
Images
Nearby Streets
| Name | Average Price | Average Sqft | Distance |
|---|---|---|---|
| Airlie Lane | £ 0 | 0 | 0.00 KM |
| Clarence Drive | £ 0 | 0 | 0.00 KM |
| Monkscroft Gardens | £ 0 | 0 | 0.00 KM |
| Turnberry Avenue | £ 1,025,000 | 0 | 0.00 KM |
| Hughenden Drive | £ 0 | 0 | 0.00 KM |
Nearby Transport
| Name | NLC | TLC | Distance |
|---|---|---|---|
| Hyndland | 9845 | HYN | 0.23 KM |
| Partick | 9917 | PTK | 1.09 KM |
| Jordanhill | 9995 | JOR | 1.41 KM |
| Anniesland | 9972 | ANL | 1.54 KM |
| Kelvindale | 1655 | KVD | 1.67 KM |
Nearby Listings
| Address | Price | Type | Score | Distance |
|---|---|---|---|---|
| Main Door 105 Queensborough Gardens, Hyndland, G12 9RS | £ 335,000 | BUY | 7 / 10 | 0.00 KM |
| 0/2 103 Queensborough Gardens, Hyndland, G12 9RS | £ 269,000 | BUY | 7 / 10 | 0.01 KM |
| 2/1 45 Dudley Drive, Hyndland, G12 | £ 225,000 | BUY | 6 / 10 | 0.04 KM |
| Apartment 2-2, 147 Hayburn Lane, Glasgow, G12 9FB | £ 290,000 | BUY | Unknown | 0.05 KM |
| Hayburn Lane, Hyndland, G12 | £ 450,000 | BUY | Unknown | 0.06 KM |