Knighton Road, Leicester, LE2
By Fine & Country
£ 775,000
Reviews
3 out of 5 stars
Fine & Country says ..
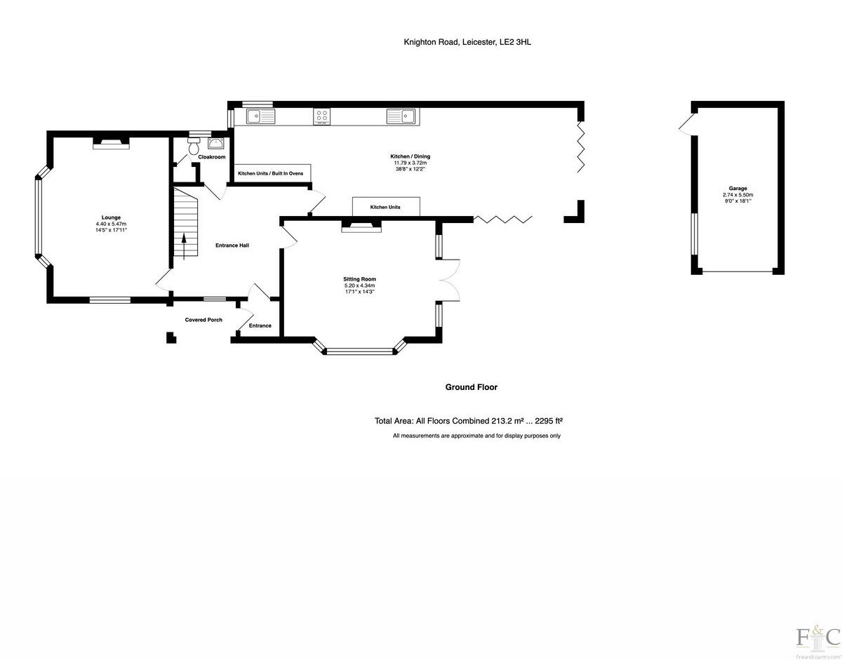
Nestled on a prime corner plot in Stoneygate, Garth is a beautifully extended 4-bed detached home blending elegance, privacy, and space. With wrap-around gardens, luxurious interiors, and a standout kitchen extension, this is family living at its finest
Property Oracle says ..
Therefore, we give this property 6 / 10. *Disclaimer: This is our option and does constitute a recommendation or financial advice. Do your own research. *
- Price
- 3
- Condition
- 7
- Location
- 8
- Land
- 7
- Bedrooms
- 4
- Bathrooms
- 2
- Sqft (est)
- 1,136.24
The heatmap indicates the level of crime in the area. The color of the heatmap indicates the crime severity and recency.
Metrics Year-on-Year
- Average area value
- 404,688.00 £Increased by 2.85 %
- Est sale value
- 419,272.56 £Increased by 17.52 %
- Average area rental value
- 788.00 £/moDecreased by 23.79 %
- Est letting value
- 0.00 £/mo
- Est rental Yield
- 2.34 %Decreased by 25.71 %
- Crime Rate
- 6.00 %Unchanged by 0.00 %
from 393,475.00 £
from 356,779.36 £
from 1,034.00 £/mo
from 0.00 £/mo
from 3.15 %
from 6.00 %
Agent Activity
Fine & Country created the listing.
Nearby Schools
| Name | Type | Ofsted | Distance |
|---|---|---|---|
| Leicester High School For Girls | Other Independent School | 0.38 KM | |
| St Thomas More Catholic Voluntary Academy | Academy Converter | 1.25 KM | |
| Leicester Partnership School | Pupil Referral Unit | Good | 1.25 KM |
| Leicester Islamic Academy | Other Independent School | Good | 1.36 KM |
| Overdale Junior School | Academy Converter | 1.40 KM |
Images
Nearby Streets
| Name | Average Price | Average Sqft | Distance |
|---|---|---|---|
| The Orchard | £ 0 | 0 | 0.00 KM |
| Knighton Grange Road | £ 129,950 | 0 | 0.00 KM |
| Stoughton Avenue | £ 0 | 0 | 0.00 KM |
| St. David's Crescent | £ 0 | 0 | 0.00 KM |
| Francis Walk | £ 0 | 0 | 0.00 KM |
Nearby Transport
| Name | NLC | TLC | Distance |
|---|---|---|---|
| Leicester | 1947 | LEI | 3.83 KM |
| South Wigston | 1949 | SWS | 4.67 KM |
| Syston | 1900 | SYS | 9.85 KM |
Nearby Listings
| Address | Price | Type | Score | Distance |
|---|---|---|---|---|
| Knighton Road, Leicester, LE2 | £ 775,000 | BUY | 6 / 10 | 0.00 KM |
| Holbrook Road, South Knighton, LE2 | £ 120,000 | BUY | Unknown | 0.03 KM |
| South Knighton Road, South Knighton, Leicester | £ 440,000 | BUY | Unknown | 0.06 KM |
| Egerton Houses, South Knighton Road, Leicester | £ 180,000 | BUY | 6 / 10 | 0.08 KM |
| Holbrook Road, Leicester LE2 3LG | £ 125,000 | BUY | 5 / 10 | 0.09 KM |
Nearby Properties
| Address | Price | Distance |
|---|---|---|
| 41a Holbrook Road | £ 100,000 | 0.07 KM |
| 25 Holbrook Road | £ 435,000 | 0.07 KM |
| 43 Holbrook Road | £ 215,000 | 0.07 KM |
| 15 Holbrook Road | £ 635,000 | 0.07 KM |
| 31 Holbrook Road | £ 397,000 | 0.08 KM |