Rosemary, Hollyshaw Lane, Leeds
By Land & New Homes
£ 675,000
Reviews
4 out of 5 stars
Land & New Homes says ..
Welcome to Rosemary, a brand new back to brick extended redevelopment which creates a modern classic. Completing in 2025, this four bedroom detached home offers more than the just a home it is a way of living. Get in touch early to find out more!
Property Oracle says ..
This property is a new build detached house located in the Temple Newsam area of Leeds. The area benefits from good local schools and transport links, including proximity to Cross Gates train station. The house itself is modern in design and appears to be finished to a high standard, based on the provided images. The plot size is not specified, however, the images suggest a garden is present. The list price of £675,000 is significantly higher than the average house price in the area (£440,715), but given the size of the property (39,308 sqft) and its modern, high-quality finish, it may be considered reasonable for this location. More information on the plot size would help to further assess the value.
Therefore, we give this property 8 / 10. *Disclaimer: This is our option and does constitute a recommendation or financial advice. Do your own research. *
- Price
- 7
- Condition
- 10
- Location
- 9
- Land
- 8
- Bedrooms
- 4
- Bathrooms
- 4
- Sqft (est)
- 39,308.00
The heatmap indicates the level of crime in the area. The color of the heatmap indicates the crime severity and recency.
Metrics Year-on-Year
- Average area value
- 260,997.00 £Decreased by 2.01 %
- Est sale value
- 18,238,912.00 £Increased by 62.81 %
- Average area rental value
- 1,210.00 £/moUnchanged by 0.00 %
- Est letting value
- 78,616.00 £/moIncreased by 100.00 %
- Est rental Yield
- 5.56 %Increased by 2.02 %
- Crime Rate
- 14.00 %Unchanged by 0.00 %
Agent Activity
Land & New Homes created the listing.
Nearby Schools
| Name | Type | Ofsted | Distance |
|---|---|---|---|
| Whitkirk Primary School | Academy Converter | 0.97 KM | |
| Temple Moor High School | Academy Converter | 1.35 KM | |
| Manston St James Primary Academy | Academy Converter | Good | 1.38 KM |
| Austhorpe Primary School | Academy Converter | 1.40 KM | |
| Cross Gates & Manston Children'S Centre | Children's Centre | 1.40 KM |
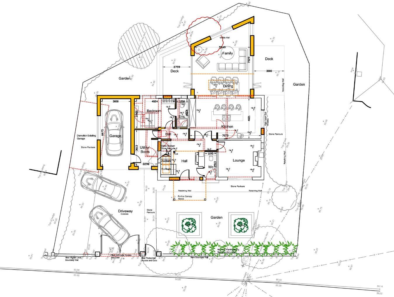
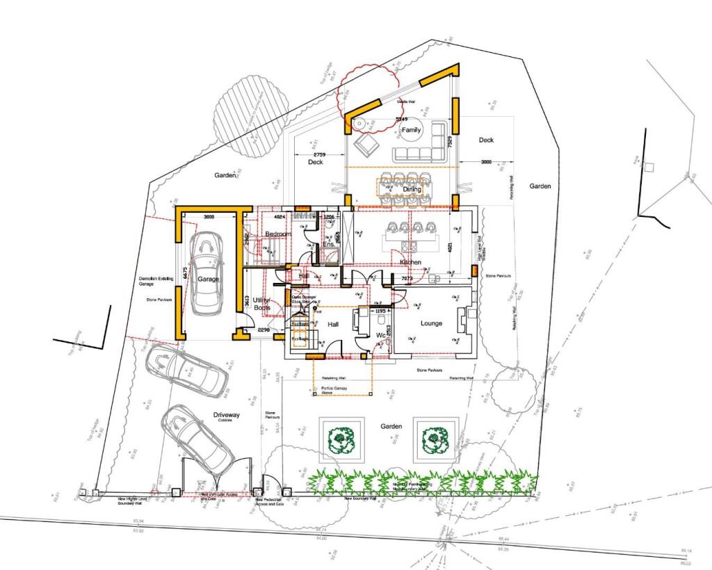
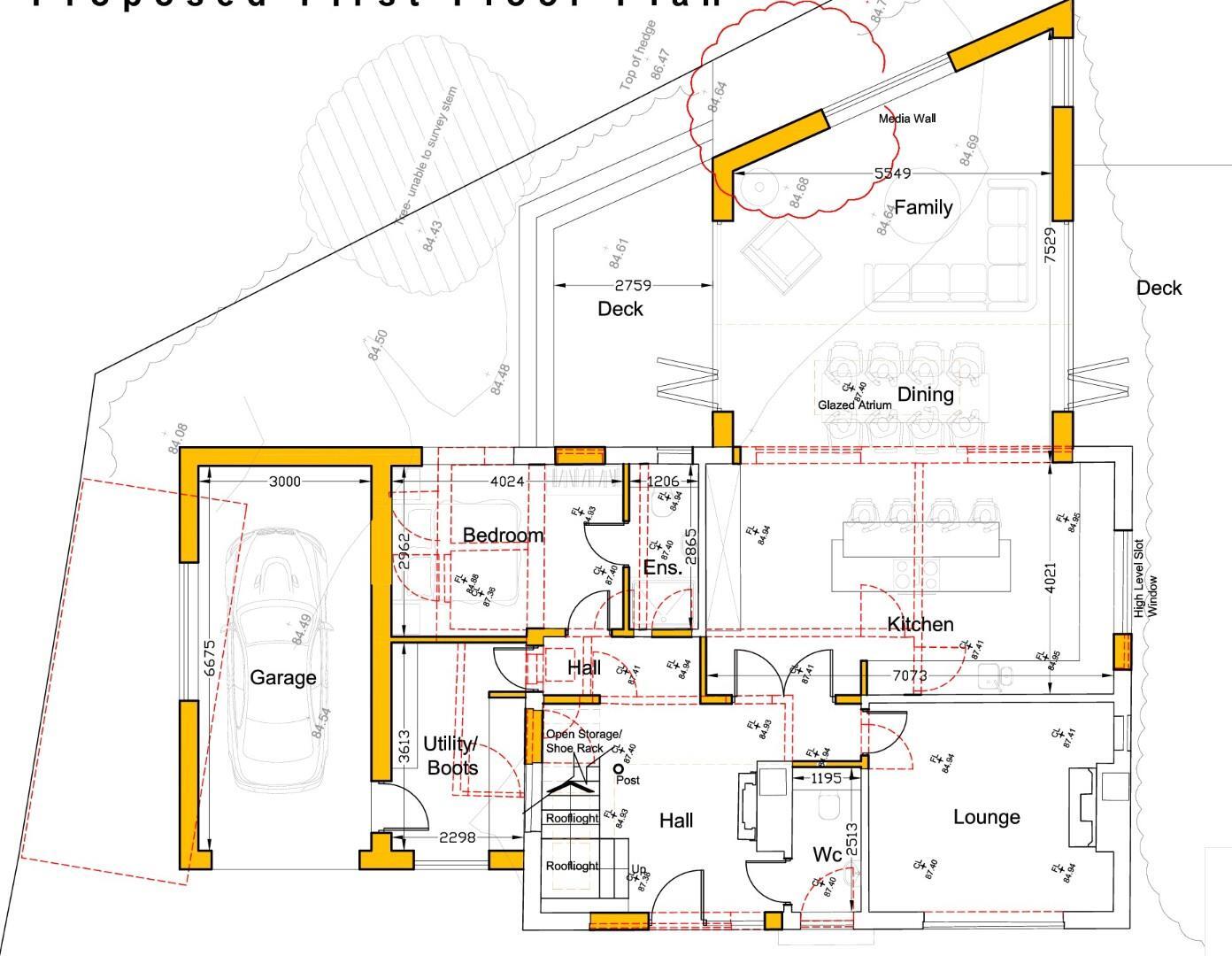
Images
Nearby Streets
| Name | Average Price | Average Sqft | Distance |
|---|---|---|---|
| Back Hollyshaw Terrace | £ 0 | 0 | 0.00 KM |
| Old Ring Road Halton | £ 0 | 0 | 0.00 KM |
| Kingsway | £ 400,000 | 0 | 0.00 KM |
| Station Road | £ 0 | 0 | 0.00 KM |
| Greenway | £ 0 | 0 | 0.00 KM |
Nearby Transport
| Name | NLC | TLC | Distance |
|---|---|---|---|
| Cross Gates | 8473 | CRG | 0.62 KM |
| Woodlesford | 8578 | WDS | 4.84 KM |
| Garforth | 8474 | GRF | 7.44 KM |
| East Garforth | 8472 | EGF | 8.78 KM |
Nearby Listings
| Address | Price | Type | Score | Distance |
|---|---|---|---|---|
| Rosemary, Hollyshaw Lane, Leeds | £ 675,000 | BUY | 8 / 10 | 0.00 KM |
| Hollyshaw Lane, Leeds, LS15 7BA | £ 300,000 | BUY | 6 / 10 | 0.09 KM |
| Hollyshaw Lane, Leeds, LS15 7BA | £ 280,000 | BUY | 6 / 10 | 0.09 KM |
| Hollyshaw Terrace, Leeds, LS15 7BG | £ 525,000 | BUY | 7 / 10 | 0.09 KM |
| Hollyshaw Terrace, Leeds | £ 300,000 | BUY | Unknown | 0.11 KM |
Nearby Properties
| Address | Price | Distance |
|---|---|---|
| 26 Hollyshaw Lane | £ 210,000 | 0.04 KM |
| 20 Hollyshaw Lane | £ 315,000 | 0.04 KM |
| 48 Hollyshaw Lane | £ 122,000 | 0.04 KM |
| 16 Hollyshaw Lane | £ 257,500 | 0.04 KM |
| 44 Hollyshaw Lane | £ 225,000 | 0.04 KM |