BR
Sark Tower, Erebus Drive, London
By Brothers Property Management Ltd
£ 2,200
Brothers Property Management Ltd says ..
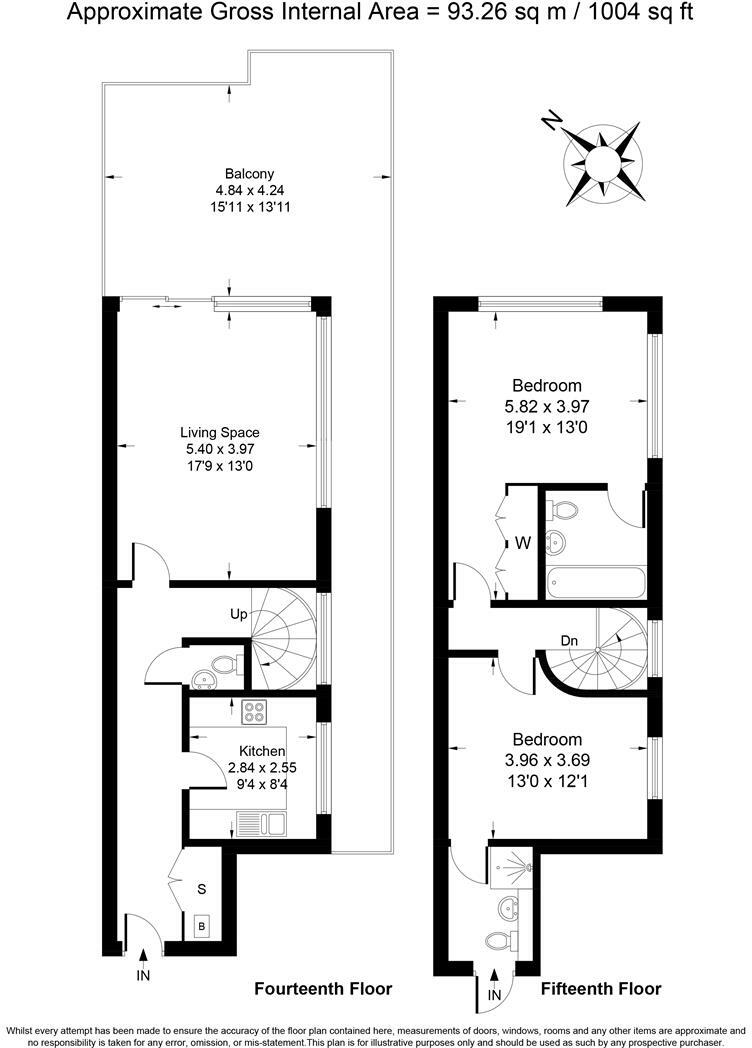
A stunning, split-level, two double bedroom, penthouse apartment with incredible views of London.
- Bedrooms
- 2
- Bathrooms
- 2
The heatmap indicates the level of crime in the area. The color of the heatmap indicates the crime severity and recency.
Metrics Year-on-Year
- Average area value
- 430,413.00 £Increased by 9.68 %
- Average area rental value
- 1,340.00 £/moDecreased by 32.05 %
- Est rental Yield
- 3.74 %Decreased by 37.98 %
- Crime Rate
- 2.00 %Unchanged by 0.00 %
from 392,431.00 £
from 1,972.00 £/mo
from 6.03 %
from 2.00 %
Agent Activity
Brothers Property Management Ltd created the listing.
Nearby Schools
| Name | Type | Ofsted | Distance |
|---|---|---|---|
| Heronsgate Primary School | Community School | Outstanding | 0.51 KM |
| Waterside School | Community Special School | Good | 1.14 KM |
| Foxfield Primary School | Academy Converter | Outstanding | 1.22 KM |
| St Patrick'S Catholic Primary School | Voluntary Aided School | Good | 1.22 KM |
| South Rise Primary School | Academy Converter | Good | 1.24 KM |
Images
Nearby Streets
| Name | Average Price | Average Sqft | Distance |
|---|---|---|---|
| Gallions View | £ 0 | 0 | 0.00 KM |
| Broadwater Road | £ 0 | 0 | 0.00 KM |
| Ivermore Place | £ 230,000 | 0 | 0.00 KM |
| Lenton Street | £ 0 | 0 | 0.00 KM |
| Cartridge Place | £ 322,500 | 0 | 0.00 KM |
Nearby Transport
| Name | NLC | TLC | Distance |
|---|---|---|---|
| Plumstead | 5208 | PLU | 0.97 KM |
| Woolwich Arsenal | 5152 | WWA | 1.32 KM |
| Woolwich Dockyard | 5153 | WWD | 2.76 KM |
| Falconwood | 5137 | FCN | 4.18 KM |
| Welling | 5128 | WLI | 4.35 KM |
Nearby Listings
| Address | Price | Type | Score | Distance |
|---|---|---|---|---|
| Erebus Drive, Woolwich, SE28 | £ 2,200 | RENT | Unknown | 0.00 KM |
| Sark Tower, Erebus Drive, SE28 | £ 2,200 | RENT | Unknown | 0.00 KM |
| Erebus Drive, Thamesmead, London, SE28 | £ 2,200 | RENT | Unknown | 0.01 KM |
| Erebus Drive, Thamesmead SE28 0GG | £ 2,000 | RENT | Unknown | 0.03 KM |
| Erebus Drive, Riverside, SE28 0GH | £ 1,800 | RENT | Unknown | 0.04 KM |
Nearby Properties
| Address | Price | Distance |
|---|---|---|
| 3 Livesey Close | £ 249,999 | 0.09 KM |
| 10 Livesey Close | £ 149,995 | 0.09 KM |
| 4 Livesey Close | £ 162,995 | 0.09 KM |
| 7 Livesey Close | £ 165,000 | 0.09 KM |
| 6 Livesey Close | £ 169,995 | 0.09 KM |