Clarence Road, Bollington
By Gascoigne Halman
£ 265,000
Reviews
3 out of 5 stars
Gascoigne Halman says ..
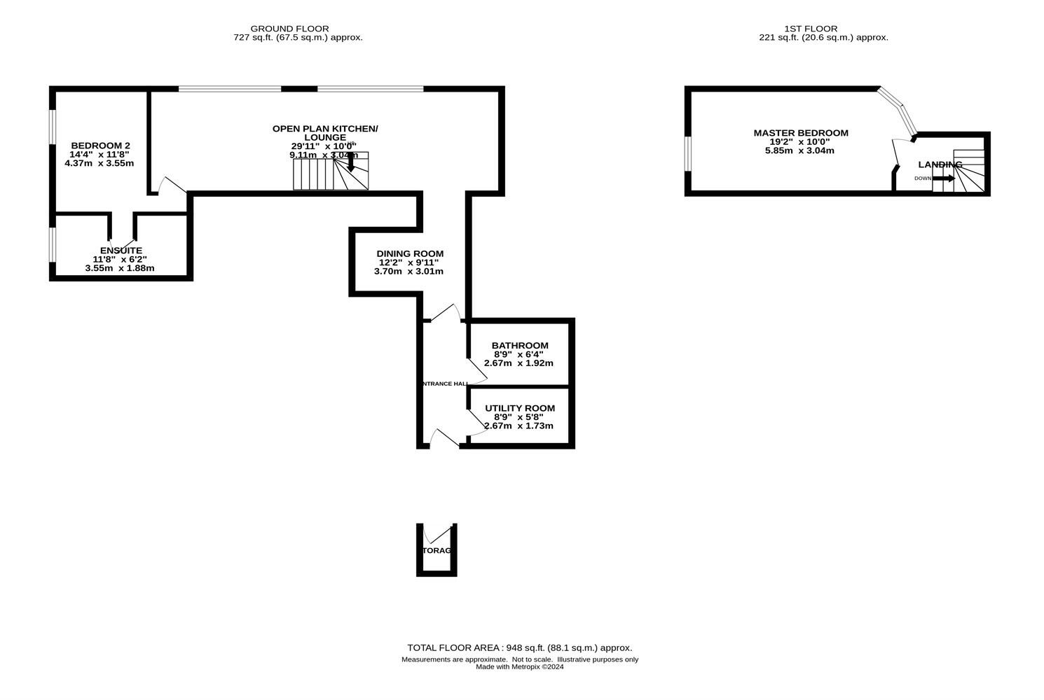
An impressive two double bedroom, two bathroom duplex apartment forming part of this fabulous mill conversion. Finished to very high standards in 2019 the property is in immaculate condition throughout.
Property Oracle says ..
This two-bedroom, two-bathroom apartment is situated in the desirable Cheshire town of Bollington. The property is part of a converted mill building, offering a unique and stylish living space. Photos reveal a modern, high-quality finish throughout, suggesting recent refurbishment. The interior is characterized by a contemporary design aesthetic, featuring an open-plan living area, modern kitchen, and well-appointed bathrooms. The apartment benefits from an abundance of natural light due to large windows. The proximity to the Macclesfield Canal adds to the appeal of the location. While the lack of outdoor space is a notable factor, its central location and good condition make it suitable for a range of buyers, particularly those seeking a low-maintenance, stylish property in a sought-after area. Comparable properties in the area are listed at a similar price range indicating that the listing price is competitive. Access to nearby schools and transport links enhances the property’s overall livability and desirability. However, additional details such as the precise location within Bollington and the specifics of the building’s amenities would allow for a more comprehensive evaluation.
Therefore, we give this property 6 / 10. *Disclaimer: This is our option and does constitute a recommendation or financial advice. Do your own research. *
- Price
- 7
- Condition
- 9
- Location
- 7
- Land
- 1
- Bedrooms
- 2
- Bathrooms
- 2
- Sqft (est)
- 948.30
The heatmap indicates the level of crime in the area. The color of the heatmap indicates the crime severity and recency.
Metrics Year-on-Year
- Average area value
- 382,485.00 £Increased by 0.15 %
- Est sale value
- 385,009.80 £Increased by 38.10 %
- Average area rental value
- 895.00 £/moDecreased by 38.61 %
- Est letting value
- 0.00 £/moDecreased by 100.00 %
- Est rental Yield
- 2.81 %Decreased by 38.65 %
- Crime Rate
- 17.00 %Unchanged by 0.00 %
Agent Activity
Gascoigne Halman created the listing.
Nearby Schools
| Name | Type | Ofsted | Distance |
|---|---|---|---|
| Arnfield Independent School | Other Independent Special School | Good | 0.67 KM |
| Bollington St John'S Cofe Primary School | Voluntary Aided School | Good | 0.72 KM |
| St Gregory'S Catholic Primary School | Voluntary Aided School | Good | 1.53 KM |
| Dean Valley Community Primary School | Community School | Good | 1.84 KM |
| Pott Shrigley Church School | Voluntary Aided School | Good | 2.02 KM |
Images
Nearby Streets
| Name | Average Price | Average Sqft | Distance |
|---|---|---|---|
| Hole in the Wall | £ 525,000 | 0 | 0.00 KM |
| Poplar Grove | £ 399,000 | 0 | 0.00 KM |
| Store Street | £ 0 | 0 | 0.00 KM |
| Fairfield Avenue | £ 0 | 0 | 0.00 KM |
| Beeston Close | £ 375,000 | 0 | 0.00 KM |
Nearby Transport
| Name | NLC | TLC | Distance |
|---|---|---|---|
| Adlington (Cheshire) | 2939 | ADC | 4.33 KM |
| Prestbury | 2875 | PRB | 5.13 KM |
| Macclesfield | 2871 | MAC | 5.17 KM |
| Poynton | 2874 | PYT | 6.79 KM |
| Middlewood | 2971 | MDL | 6.89 KM |
Nearby Listings
| Address | Price | Type | Score | Distance |
|---|---|---|---|---|
| Clarence Road, Bollington | £ 265,000 | BUY | 6 / 10 | 0.00 KM |
| Bollington, Macclesfield | £ 289,950 | BUY | 6 / 10 | 0.05 KM |
| Clarence Road, Bollington, Macclesfield, SK10 | £ 255,000 | BUY | 6 / 10 | 0.07 KM |
| Clarence Road, Bollington, Macclesfield, SK10 | £ 280,000 | BUY | 6 / 10 | 0.07 KM |
| Flat 9, Carter Bench House, Bollington, SK10 5JZ | £ 325,000 | BUY | 6 / 10 | 0.10 KM |
Nearby Properties
| Address | Price | Distance |
|---|---|---|
| 30 Clarence Terrace | £ 270,000 | 0.14 KM |
| 18 Clarence Terrace | £ 430,000 | 0.14 KM |
| 29 Clarence Terrace | £ 355,000 | 0.14 KM |
| 3 Clarence Terrace | £ 192,000 | 0.14 KM |
| 23 Clarence Terrace | £ 400,000 | 0.14 KM |