Burn & Warne says ..
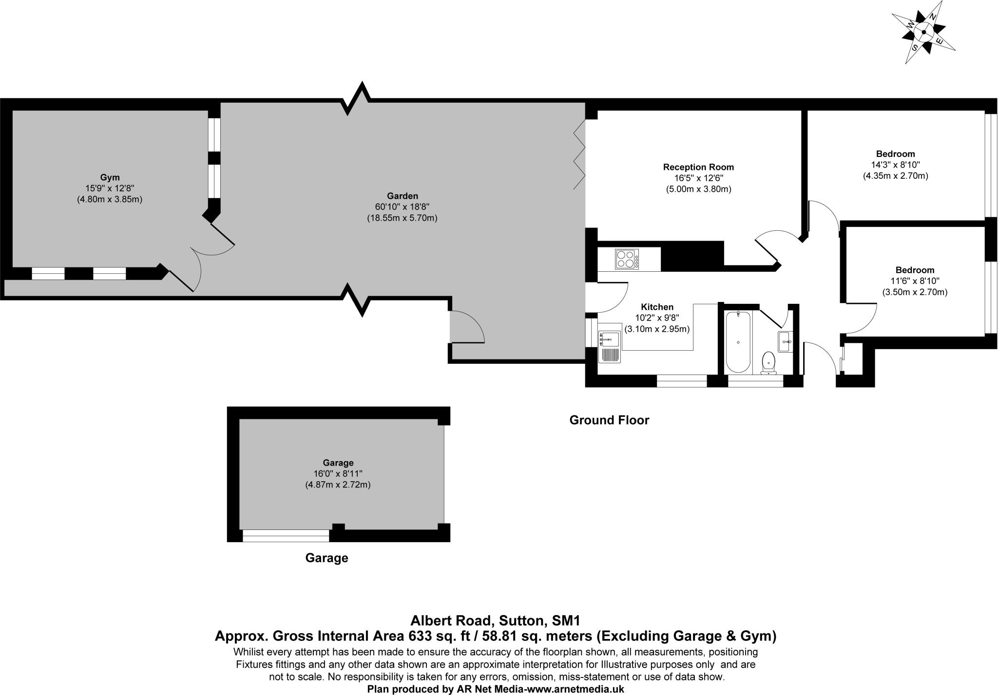
*GROUND FLOOR MAISONETTE *TWO DOUBLE BEDROOMS *GARAGE & OFF-STREET PARKING FOR 2 CARS *60FT WEST FACING GARDEN *16'5 X 12'6 LOUNGE/DINER *SUMMER CABIN/GYM *932 YEAR LEASE *LOW SERVICE CHARGES A STUNNING 2 DOUBLE BEDROOM GROUND FLOOR GARDEN MAISONETTE WITH A 932 YEAR LEASE located w...
Property Oracle says ..
Therefore, we give this property 8 / 10. *Disclaimer: This is our option and does constitute a recommendation or financial advice. Do your own research. *
- Price
- 9
- Condition
- 8
- Location
- 8
- Land
- 7
- Bedrooms
- 2
- Bathrooms
- 2
- Sqft (est)
- 2,010.81
The heatmap indicates the level of crime in the area. The color of the heatmap indicates the crime severity and recency.
Metrics Year-on-Year
- Average area value
- 404,917.00 £Increased by 11.82 %
- Est sale value
- 862,637.49 £Decreased by 12.63 %
- Average area rental value
- 1,930.00 £/moIncreased by 5.12 %
- Est letting value
- 4,021.62 £/moUnchanged by 0.00 %
- Est rental Yield
- 5.72 %Decreased by 5.92 %
- Crime Rate
- 3.00 %Unchanged by 0.00 %
from 362,131.00 £
from 987,307.71 £
from 1,836.00 £/mo
from 4,021.62 £/mo
from 6.08 %
from 3.00 %
Agent Activity
Burn & Warne created the listing.
Nearby Schools
| Name | Type | Ofsted | Distance |
|---|---|---|---|
| Manor Park Primary Academy | Academy Converter | 0.73 KM | |
| Manor Park Children'S Centre (Sutton Central East) | Children's Centre | 0.73 KM | |
| Sutton Grammar School | Academy Converter | 0.93 KM | |
| Orchard Hill College Of Further Education | Special Post 16 Institution | Outstanding | 0.95 KM |
| Devonshire Primary School | Community School | Good | 1.21 KM |
Images
Nearby Streets
| Name | Average Price | Average Sqft | Distance |
|---|---|---|---|
| Waterloo Road | £ 590,000 | 0 | 0.00 KM |
| Bishop's Place | £ 0 | 0 | 0.00 KM |
| Upland Road | £ 0 | 0 | 0.00 KM |
| Florian Avenue | £ 0 | 0 | 0.00 KM |
| Wells Place | £ 250,000 | 0 | 0.00 KM |
Nearby Transport
| Name | NLC | TLC | Distance |
|---|---|---|---|
| Sutton | 5385 | SUO | 1.06 KM |
| Carshalton Beeches | 5406 | CSB | 1.44 KM |
| Carshalton | 5405 | CSH | 1.87 KM |
| Sutton Common | 5436 | SUC | 2.15 KM |
| West Sutton | 5293 | WSU | 2.60 KM |
Nearby Listings
| Address | Price | Type | Score | Distance |
|---|---|---|---|---|
| Albert Road, Sutton, SM1 | £ 425,000 | BUY | 8 / 10 | 0.00 KM |
| ALBERT ROAD, SUTTON | £ 335,000 | BUY | Unknown | 0.03 KM |
| Carshalton Road, Sutton, SM1 | £ 375,000 | BUY | 7 / 10 | 0.06 KM |
| Carshalton Road, Sutton | £ 260,000 | BUY | 7 / 10 | 0.08 KM |
| 8 Osborne Place, Sutton, Surrey, SM1 4RJ | £ 80,000 | BUY | 6 / 10 | 0.11 KM |
Nearby Properties
| Address | Price | Distance |
|---|---|---|
| 36 Albert Road | £ 515,000 | 0.04 KM |
| 12 Albert Road | £ 326,000 | 0.04 KM |
| 22a Albert Road | £ 385,000 | 0.04 KM |
| 22 Albert Road | £ 189,950 | 0.04 KM |
| 20a Albert Road | £ 185,000 | 0.04 KM |