PA
Richmond Avenue, Bill Quay, Gateshead, Tyne and Wear, NE10 0TA
By Pattinson Estate Agents
£ 110,000
Reviews
3 out of 5 stars
Pattinson Estate Agents says ..
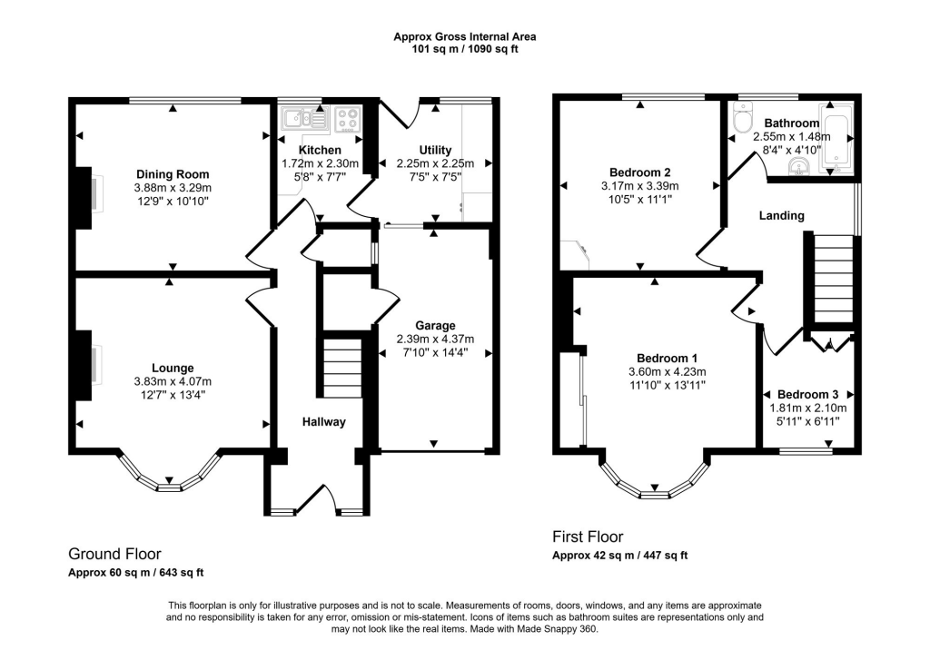
*** TO BE SOLD VIA ONLINE AUCTION - FEES APPLY *** In need of renovation, and located on a popular cul de sac, there is great potential for a great family home. The location is close to a metro station and on the main bus route, so public transport is easy, plus road links allow for easy commu...
Property Oracle says ..
Therefore, we give this property 6 / 10. *Disclaimer: This is our option and does constitute a recommendation or financial advice. Do your own research. *
- Price
- 8
- Condition
- 4
- Location
- 7
- Land
- 7
- Bedrooms
- 3
- Bathrooms
- 1
- Sqft (est)
- 875.64
The heatmap indicates the level of crime in the area. The color of the heatmap indicates the crime severity and recency.
Metrics Year-on-Year
- Average area value
- 265,000.00 £Increased by 2.60 %
- Est sale value
- 232,044.60 £Increased by 9.05 %
- Average area rental value
- 1,270.00 £/moDecreased by 15.05 %
- Est letting value
- 875.64 £/moUnchanged by 0.00 %
- Est rental Yield
- 5.75 %Decreased by 17.27 %
- Crime Rate
- 5.00 %Unchanged by 0.00 %
from 258,279.00 £
from 212,780.52 £
from 1,495.00 £/mo
from 875.64 £/mo
from 6.95 %
from 5.00 %
Agent Activity
Pattinson Estate Agents marked this listing as sold.
Pattinson Estate Agents created the listing.
Nearby Schools
| Name | Type | Ofsted | Distance |
|---|---|---|---|
| Bill Quay Primary School | Community School | Good | 0.37 KM |
| Wardley Primary School | Community School | Good | 1.09 KM |
| St Joseph'S Catholic Academy | Academy Converter | Requires improvement | 1.23 KM |
| St Alban'S Catholic Primary School, Pelaw | Academy Converter | 1.38 KM | |
| Lingey House Primary School | Community School | Outstanding | 1.48 KM |
Images
Nearby Streets
| Name | Average Price | Average Sqft | Distance |
|---|---|---|---|
| Woods Green | £ 144,975 | 0 | 0.00 KM |
| Davidson Road | £ 0 | 0 | 0.00 KM |
| Standfield Gardens | £ 0 | 0 | 0.00 KM |
| The Mews | £ 0 | 0 | 0.00 KM |
| A195 | £ 157,500 | 0 | 0.00 KM |
Nearby Transport
| Name | NLC | TLC | Distance |
|---|---|---|---|
| Heworth | 7766 | HEW | 2.56 KM |
| Manors | 7603 | MAS | 8.13 KM |
| Newcastle | 7728 | NCL | 9.40 KM |
Nearby Listings
| Address | Price | Type | Score | Distance |
|---|---|---|---|---|
| Richmond Avenue, Bill Quay, Gateshead, Tyne and Wear, NE10 0TA | £ 110,000 | BUY | 6 / 10 | 0.00 KM |
| Wellfield Terrace, Bill Quay, Gateshead, Tyne and Wear, NE10 | £ 110,000 | BUY | Unknown | 0.02 KM |
| Hylton Terrace, Bill Quay, NE10 | £ 330,000 | BUY | 7 / 10 | 0.05 KM |
| Plantation Grove, Bill Quay, NE10 | £ 169,950 | BUY | 7 / 10 | 0.10 KM |
| Woodgate Gardens, Bill Quay, NE10 | £ 185,000 | BUY | Unknown | 0.10 KM |
Nearby Properties
| Address | Price | Distance |
|---|---|---|
| 4 Hylton Terrace | £ 203,000 | 0.05 KM |
| 6 Hylton Terrace | £ 226,000 | 0.05 KM |
| 8 Wellfield Terrace | £ 123,000 | 0.07 KM |
| 1 Wellfield Terrace | £ 103,000 | 0.07 KM |
| 13 Wellfield Terrace | £ 70,000 | 0.07 KM |