TH
Unicorn Walk, Greenhithe, DA9
By The Agency UK
£ 200,000
Reviews
2 out of 5 stars
The Agency UK says ..
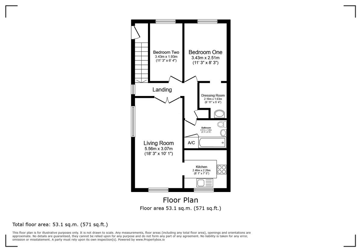
Ideal for first time buyers or investors, this apartment offers a private entrance, bright living space, fitted kitchen, two double bedrooms, modern bathroom, allocated parking and access to communal gardens, all close to excellent transport links
Property Oracle says ..
Therefore, we give this property 5 / 10. *Disclaimer: This is our option and does constitute a recommendation or financial advice. Do your own research. *
- Price
- 8
- Condition
- 5
- Location
- 7
- Land
- 3
- Bedrooms
- 2
- Bathrooms
- 1
- Sqft (est)
- 571.56
The heatmap indicates the level of crime in the area. The color of the heatmap indicates the crime severity and recency.
Metrics Year-on-Year
- Average area value
- 335,611.00 £Increased by 6.01 %
- Est sale value
- 269,776.32 £Increased by 36.42 %
- Average area rental value
- 1,744.00 £/moDecreased by 0.85 %
- Est letting value
- 1,143.12 £/moIncreased by 100.00 %
- Est rental Yield
- 6.24 %Decreased by 6.45 %
- Crime Rate
- 16.00 %Unchanged by 0.00 %
from 316,591.00 £
from 197,759.76 £
from 1,759.00 £/mo
from 571.56 £/mo
from 6.67 %
from 16.00 %
Agent Activity
The Agency UK created the listing.
Nearby Schools
| Name | Type | Ofsted | Distance |
|---|---|---|---|
| Stone St Mary'S Cofe Primary School | Academy Converter | Good | 0.87 KM |
| Stone Lodge School | Free Schools | 2.02 KM | |
| The Brent Primary School | Academy Converter | Outstanding | 2.28 KM |
| Knockhall Primary School | Academy Sponsor Led | Requires improvement | 2.55 KM |
| Fleetdown Primary Academy | Academy Converter | 2.64 KM |
Images
Nearby Streets
| Name | Average Price | Average Sqft | Distance |
|---|---|---|---|
| Upper Church Hill | £ 0 | 0 | 0.00 KM |
| Church Road | £ 325,000 | 0 | 0.00 KM |
| Saint James Lane | £ 580,000 | 0 | 0.00 KM |
| Orchard Terrace | £ 325,000 | 0 | 0.00 KM |
| Barley Close | £ 190,000 | 0 | 0.00 KM |
Nearby Transport
| Name | NLC | TLC | Distance |
|---|---|---|---|
| Stone Crossing | 5248 | SCG | 0.36 KM |
| Greenhithe For Bluewater | 5138 | GNH | 1.62 KM |
| Chafford Hundred | 7447 | CFH | 4.75 KM |
| Purfleet | 7453 | PFL | 4.81 KM |
| Swanscombe | 5156 | SWM | 4.84 KM |
Nearby Listings
| Address | Price | Type | Score | Distance |
|---|---|---|---|---|
| Unicorn Walk, Greenhithe, DA9 | £ 200,000 | BUY | 5 / 10 | 0.00 KM |
| Unicorn Walk, Greenhithe | £ 230,000 | BUY | Unknown | 0.05 KM |
| Unicorn Walk, GREENHITHE, Kent, DA9 | £ 240,000 | BUY | 6 / 10 | 0.05 KM |
| Unicorn Walk, Greenhithe, Kent, DA9 | £ 170,000 | BUY | 5 / 10 | 0.05 KM |
| Unicorn Walk, Greenhithe, Kent, DA9 | £ 230,000 | BUY | 6 / 10 | 0.06 KM |
Nearby Properties
| Address | Price | Distance |
|---|---|---|
| 48 Unicorn Walk | £ 148,000 | 0.05 KM |
| 28 Unicorn Walk | £ 210,000 | 0.05 KM |
| 17 Unicorn Walk | £ 195,000 | 0.05 KM |
| 27 Unicorn Walk | £ 195,000 | 0.05 KM |
| 33 Unicorn Walk | £ 125,000 | 0.05 KM |