Tudor Close, Bromham, Bedford
By Goodacres Residential
£ 450,000
Reviews
3 out of 5 stars
Goodacres Residential says ..
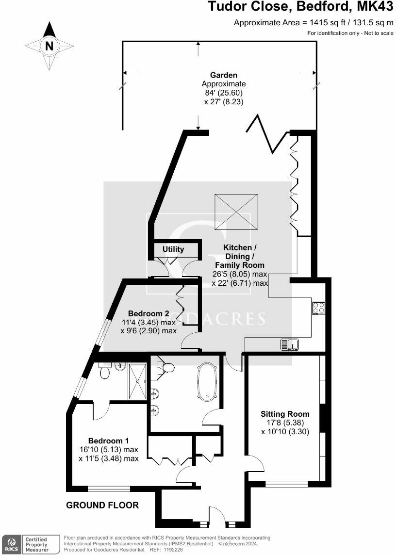
A gorgeous and heavily extended 2/3 bedroom bungalow situated in the north Bedfordshire village of Bromham. Highlights include a open plan kitchen/family room with bi-folds and lantern, separate utility room, en suite to master, landscaped rear garden plus driveway to front for numerous cars.
Property Oracle says ..
This 2-bedroom bungalow in Bromham, Bedford, presents as a well-maintained and recently improved property. The photos showcase a contemporary, open-plan kitchen/diner extension, which is a significant selling point. The property benefits from modern fixtures and fittings and tasteful décor throughout. The garden is a nice feature, offering a usable space for outdoor activities. Location-wise, it benefits from the desirable village setting of Bromham. Bromham C of E Primary School is very close by. The proximity to Bedford town provides access to broader amenities and transport links including the railway station. Overall, the property appears well-priced given the recent renovations and desirable location. However, buyers should independently verify the plot size and conduct a thorough survey before purchasing. The absence of information about council tax and other related costs needs to be considered. The lack of precise sqft data for comparable properties also affects the final overall judgment.
Therefore, we give this property 7 / 10. *Disclaimer: This is our option and does constitute a recommendation or financial advice. Do your own research. *
- Price
- 7
- Condition
- 9
- Location
- 7
- Land
- 6
- Bedrooms
- 2
- Bathrooms
- 2
- Sqft (est)
- 1,415.00
The heatmap indicates the level of crime in the area. The color of the heatmap indicates the crime severity and recency.
Metrics Year-on-Year
- Average area value
- 420,000.00 £Decreased by 29.69 %
- Est sale value
- 639,580.00 £Increased by 23.84 %
- Average area rental value
- 1,755.00 £/moDecreased by 29.77 %
- Est letting value
- 1,415.00 £/moUnchanged by 0.00 %
- Est rental Yield
- 5.01 %Decreased by 0.20 %
- Crime Rate
- 23.00 %Unchanged by 0.00 %
Agent Activity
Goodacres Residential marked this listing as sold.
Goodacres Residential created the listing.
Nearby Schools
| Name | Type | Ofsted | Distance |
|---|---|---|---|
| Bromham Cofe Primary School | Voluntary Controlled School | Good | 0.19 KM |
| Bluebells Cc (Bedford Borough) | Children's Centre | 0.22 KM | |
| Lincroft Academy | Academy Converter | Good | 2.29 KM |
| Oakley Primary Academy | Academy Converter | Good | 2.40 KM |
| Great Denham Primary School | Foundation School | Good | 3.51 KM |
Images
Nearby Streets
| Name | Average Price | Average Sqft | Distance |
|---|---|---|---|
| Bromham Mill Path | £ 500,000 | 0 | 0.00 KM |
| Grange Court | £ 1,150,000 | 0 | 0.00 KM |
| Millfield | £ 950,000 | 0 | 0.00 KM |
| Manor Close | £ 0 | 0 | 0.00 KM |
| Southview | £ 121,550 | 0 | 0.00 KM |
Nearby Transport
| Name | NLC | TLC | Distance |
|---|---|---|---|
| Bedford | 1512 | BDM | 5.97 KM |
| Kempston Hardwick | 1384 | KMH | 7.25 KM |
| Bedford St Johns | 1510 | BSJ | 7.46 KM |
| Stewartby | 1386 | SWR | 9.23 KM |
Nearby Listings
| Address | Price | Type | Score | Distance |
|---|---|---|---|---|
| Tudor Close, Bromham, Bedford | £ 450,000 | BUY | 7 / 10 | 0.00 KM |
| Tudor Close, Bromham, Bedford, MK43 | £ 600,000 | BUY | 7 / 10 | 0.01 KM |
| Tudor Close, Bromham, Bedford | £ 330,000 | BUY | Unknown | 0.03 KM |
| Tudor Close, Bromham, Bedford | £ 440,000 | BUY | 7 / 10 | 0.03 KM |
| Molivers Lane, Bromham, Bedfordshire, MK43 | £ 700,000 | BUY | 8 / 10 | 0.09 KM |
Nearby Properties
| Address | Price | Distance |
|---|---|---|
| 28 Tudor Close | £ 180,000 | 0.01 KM |
| 32 Tudor Close | £ 245,250 | 0.01 KM |
| 16 Tudor Close | £ 400,000 | 0.01 KM |
| 22 Tudor Close | £ 175,000 | 0.01 KM |
| 27 Tudor Close | £ 228,000 | 0.01 KM |