Farnaby Road, Bromley, Kent, BR1
By Capital Estate Agents
£ 355,000
Reviews
3 out of 5 stars
Capital Estate Agents says ..
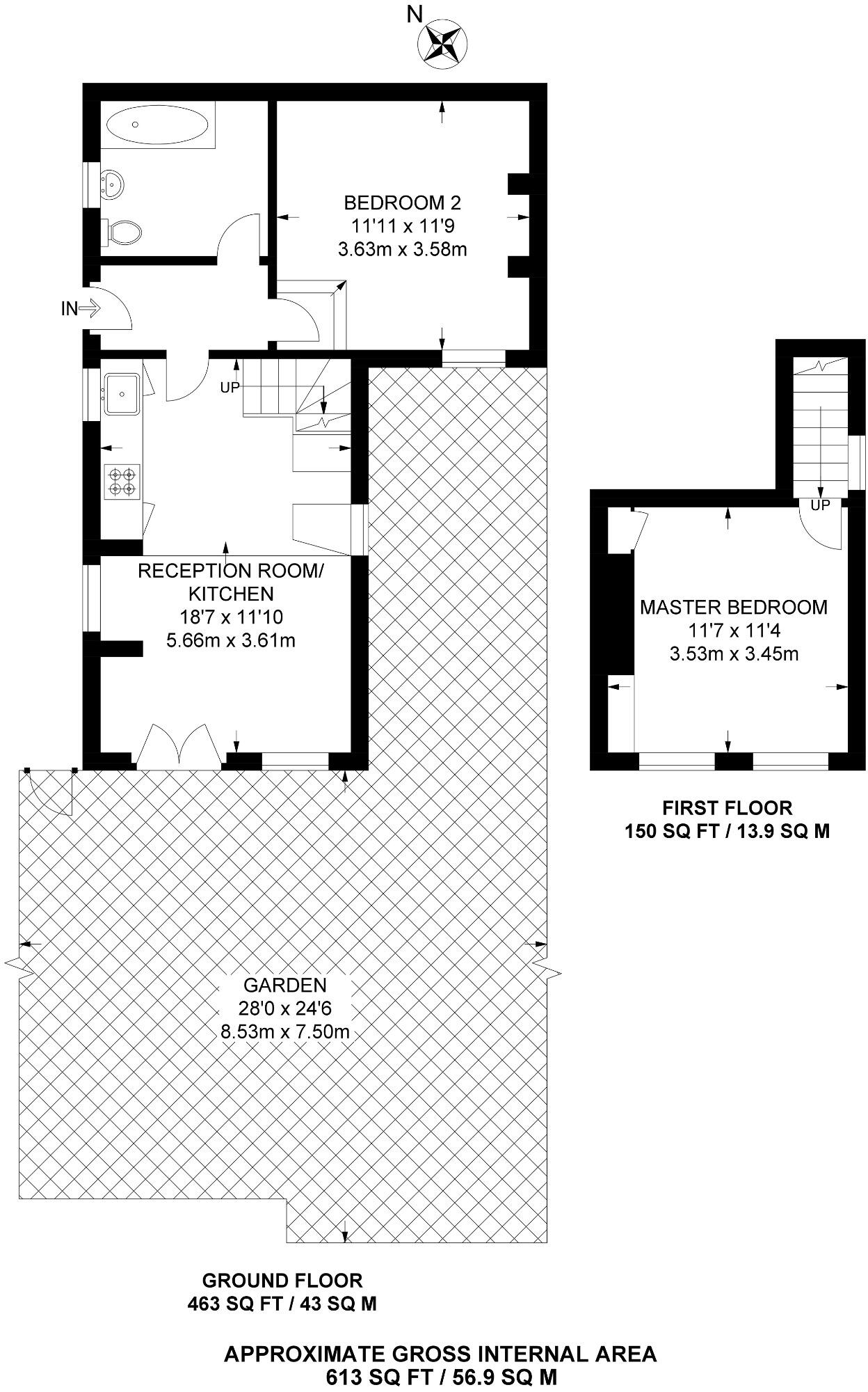
Capital Estate Agents are pleased to offer to the market this one/two bedroom split level Victorian conversion, it must be seen, please call our Bromley Branch for more details.
Property Oracle says ..
This is a one-bedroom ground floor flat located on Farnaby Road in Bromley. The property is in a good location, close to schools and transport links. The property has a good sized garden. The property is in reasonable condition, but could benefit from some modernisation. The property is reasonably priced.
Therefore, we give this property 6 / 10. *Disclaimer: This is our option and does constitute a recommendation or financial advice. Do your own research. *
- Price
- 7
- Condition
- 6
- Location
- 7
- Land
- 7
- Bedrooms
- 1
- Bathrooms
- 1
- Sqft (est)
- 612.47
- Lot (est)
- 687.81
The heatmap indicates the level of crime in the area. The color of the heatmap indicates the crime severity and recency.
Metrics Year-on-Year
- Average area value
- 591,923.00 £Increased by 11.40 %
- Est sale value
- 368,706.94 £Increased by 7.89 %
- Average area rental value
- 1,705.00 £/moDecreased by 9.16 %
- Est letting value
- 612.47 £/moUnchanged by 0.00 %
- Est rental Yield
- 3.46 %Decreased by 18.40 %
- Crime Rate
- 2.00 %Unchanged by 0.00 %
Agent Activity
Capital Estate Agents created the listing.
Nearby Schools
| Name | Type | Ofsted | Distance |
|---|---|---|---|
| Valley Primary School | Academy Converter | Good | 0.10 KM |
| Harris Primary Academy Shortlands | Free Schools | Outstanding | 0.63 KM |
| Bishop Challoner School | Other Independent School | 0.99 KM | |
| St Mark'S Church Of England Primary School | Academy Converter | Good | 1.18 KM |
| Highfield Infants' School | Academy Converter | 1.23 KM |
Images
Nearby Streets
| Name | Average Price | Average Sqft | Distance |
|---|---|---|---|
| Queen's Mead Road | £ 299,995 | 0 | 0.00 KM |
| Treversh Court | £ 0 | 0 | 0.00 KM |
| Glebe Knoll | £ 0 | 0 | 0.00 KM |
| Cawston Court | £ 325,000 | 0 | 0.00 KM |
| The Glen | £ 0 | 0 | 0.00 KM |
Nearby Transport
| Name | NLC | TLC | Distance |
|---|---|---|---|
| Shortlands | 5084 | SRT | 0.44 KM |
| Bromley North | 5096 | BMN | 1.30 KM |
| Ravensbourne | 5083 | RVB | 1.58 KM |
| Bromley South | 5064 | BMS | 1.60 KM |
| Sundridge Park | 5155 | SUP | 1.92 KM |
Nearby Listings
| Address | Price | Type | Score | Distance |
|---|---|---|---|---|
| Farnaby Road, Bromley, Kent, BR1 | £ 355,000 | BUY | 6 / 10 | 0.00 KM |
| 3 Farnaby Road, Bromley | £ 285,000 | BUY | Unknown | 0.03 KM |
| Glaston Court, 3 Farnaby Road, Bromley, Kent, BR1 | £ 275,000 | BUY | 6 / 10 | 0.03 KM |
| Glaston Court, 3 Farnaby Road, Bromley, Kent, BR1 | £ 285,000 | BUY | 7 / 10 | 0.03 KM |
| Farnaby Road, Bromley, Kent, BR1 | £ 259,995 | BUY | 6 / 10 | 0.07 KM |
Nearby Properties
| Address | Price | Distance |
|---|---|---|
| 36 Farnaby Road | £ 499,995 | 0.06 KM |
| 4 Farnaby Road | £ 640,000 | 0.06 KM |
| 46 Farnaby Road | £ 480,000 | 0.06 KM |
| 14 Farnaby Road | £ 581,000 | 0.06 KM |
| 10a Farnaby Road | £ 180,000 | 0.06 KM |