Brayton Lane, Brayton, North Yorkshire YO8
PR

Brayton Lane, Brayton, North Yorkshire YO8

By Preston Baker

£ 495,000

Reviews

3 out of 5 stars

Preston Baker says ..

Holmefield Cottage, a beautifully renovated character property with modern touches. Open plan kitchen with high-end appliances, spacious lounge with log burner, dining area and Bi-folding Doors to the rear courtyard, three double bedrooms, exquisite en-suite, and a family bathroom. Energy efficie...

Property Oracle says ..

This is a well-presented, modern detached property in the desirable village of Brayton. The house benefits from a recently renovated interior, a good-sized garden, and proximity to local amenities and schools. The property offers three bedrooms and two bathrooms, making it suitable for families. The price is higher than the average price per square foot for the area, but this is justified by the excellent condition and desirable location. Overall, this property represents a good opportunity for buyers looking for a modern family home in a sought-after location.

Therefore, we give this property 7 / 10. *Disclaimer: This is our option and does constitute a recommendation or financial advice. Do your own research. *

Price
7
Condition
9
Location
7
Land
7
Bedrooms
3
Bathrooms
2
Sqft (est)
1,153.63

The heatmap indicates the level of crime in the area. The color of the heatmap indicates the crime severity and recency.

Metrics Year-on-Year

Average area value
227,143.00 £
Decreased by 21.02 %
from 287,585.00 £
Est sale value
287,253.87 £
Decreased by 24.55 %
from 380,697.90 £
Average area rental value
1,237.00 £/mo
Increased by 11.34 %
from 1,111.00 £/mo
Est letting value
1,153.63 £/mo
Unchanged by 0.00 %
from 1,153.63 £/mo
Est rental Yield
6.54 %
Increased by 40.95 %
from 4.64 %
Crime Rate
9.00 %
Unchanged by 0.00 %
from 9.00 %

Agent Activity

  • Preston Baker created the listing.

Nearby Schools

NameTypeOfstedDistance
Brayton Church Of England Primary SchoolAcademy Sponsor Led0.20 KM
St Mary'S Catholic Primary School, A Voluntary AcademyAcademy Converter0.72 KM
Brayton AcademyAcademy Sponsor LedOutstanding0.86 KM
Selby, Longman'S Hill Community Primary SchoolCommunity SchoolGood1.36 KM
Selby High School Specialist School For The Arts And ScienceCommunity SchoolGood1.75 KM

Images

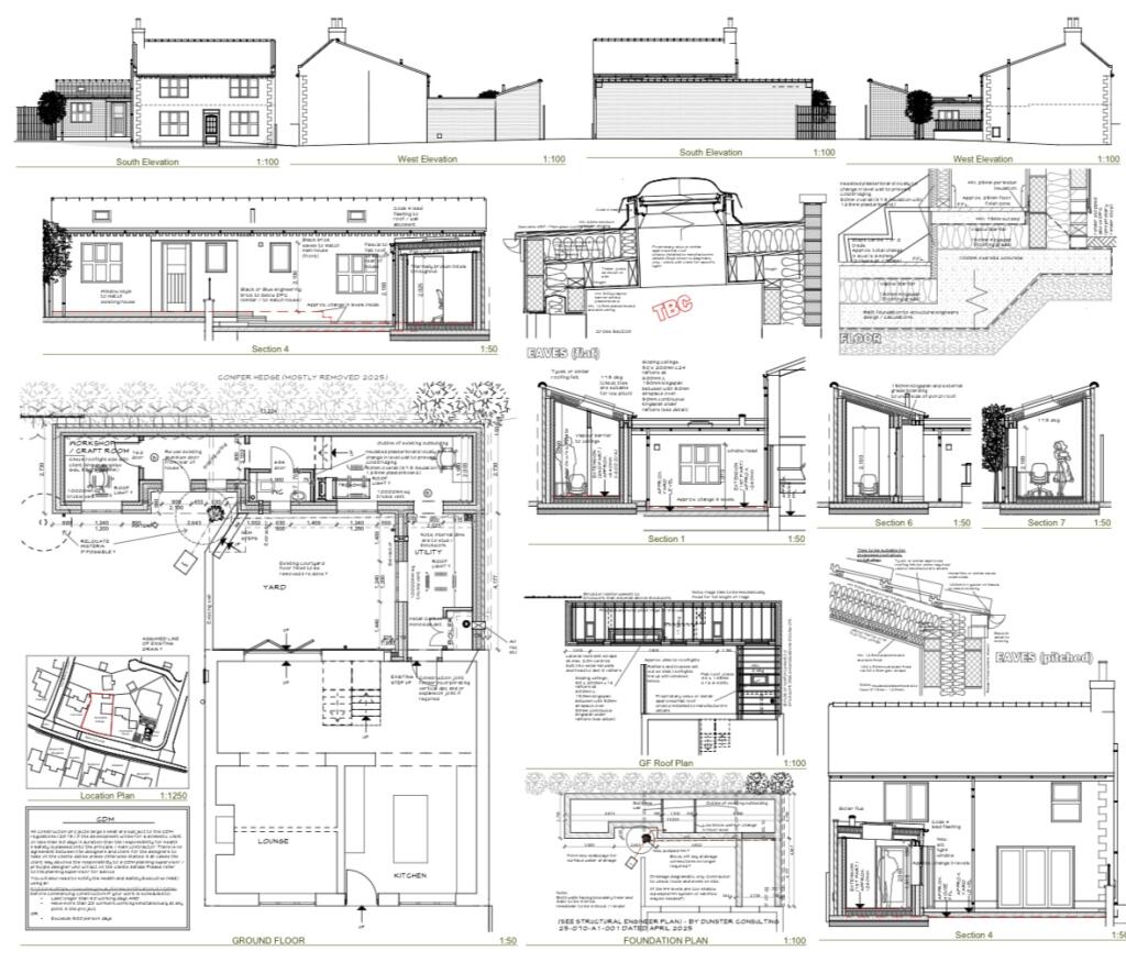
kitchen4 kitchen5 kitchen7 kitchen8 lounge1 front kitchen1 kitchen2 kitchen3 kitchen6 lounge3 lounge4 outside10 lounge2 lounge5 lounge6 lounge7 lounge8 landing bedroom1a bedroom1b bedroom1c bedroom1d bedroom2a bedroom2b bedroom3a bedroom3b showerroom outside1 outside2 outside3 outside4 outside5 outside6 outside7a outside8 outside9 Planning Approval

Nearby Streets

NameAverage PriceAverage SqftDistance
Chapel Lane £ 475,00000.00 KM
Manor Farm Close £ 000.00 KM
Oakfield £ 000.00 KM
St Marys View £ 390,00000.00 KM
Maple Grove £ 302,50000.00 KM

Nearby Transport

NameNLCTLCDistance
Selby8201SBY3.04 KM
Hensall8129HEL8.23 KM

Nearby Listings

AddressPriceTypeScoreDistance
Brayton Lane, Brayton, North Yorkshire YO8 £ 495,000BUY7 / 100.00 KM
Brayton Lane, Brayton, Nr Selby, YO8 9DZ £ 575,000BUY5 / 100.01 KM
Brayton Lane, Brayton, YO8 £ 475,000BUYUnknown0.17 KM
Chilvers Court, Brayton, Selby £ 340,000BUY7 / 100.22 KM
Spring Walk, Brayton, YO8 £ 400,000BUYUnknown0.23 KM

Nearby Properties

AddressPriceDistance
Green Lodge £ 88,0000.01 KM
Littlemead £ 210,0000.01 KM
Silvertrees £ 340,0000.01 KM
Maple Trees £ 320,0000.01 KM
Thorpe Water £ 370,0000.01 KM