Fells Gulliver says ..
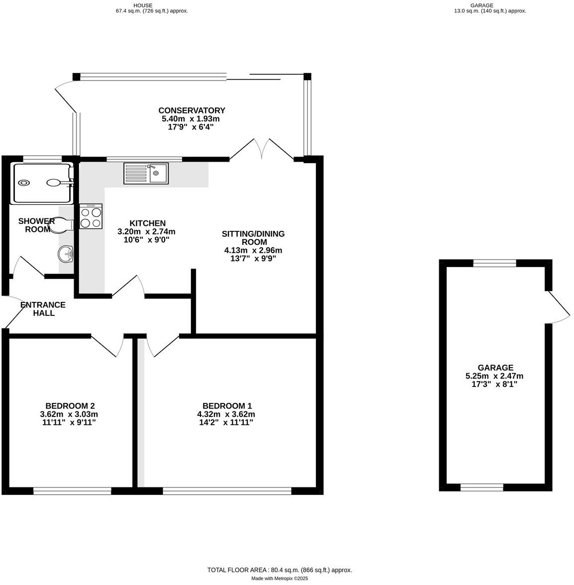
Located in a quiet road within easy reach of New Milton town centre, this semi-detached bungalow offers spacious accommodation and benefits from two double bedrooms, open plan kitchen/sitting/dining room, a conservatory, good size garden, detached garage ideal for use as a workshop, studio or ...
Property Oracle says ..
Therefore, we give this property 7 / 10. *Disclaimer: This is our option and does constitute a recommendation or financial advice. Do your own research. *
- Price
- 7
- Condition
- 8
- Location
- 7
- Land
- 7
- Bedrooms
- 2
- Bathrooms
- 1
- Sqft (est)
- 624.54
The heatmap indicates the level of crime in the area. The color of the heatmap indicates the crime severity and recency.
Metrics Year-on-Year
- Average area value
- 661,980.00 £Increased by 1.76 %
- Est sale value
- 226,083.48 £Decreased by 22.15 %
- Average area rental value
- 1,250.00 £/moDecreased by 8.69 %
- Est letting value
- 0.00 £/mo
- Est rental Yield
- 2.27 %Decreased by 10.28 %
- Crime Rate
- 4.00 %Unchanged by 0.00 %
from 650,526.00 £
from 290,411.10 £
from 1,369.00 £/mo
from 0.00 £/mo
from 2.53 %
from 4.00 %
Agent Activity
Fells Gulliver created the listing.
Nearby Schools
| Name | Type | Ofsted | Distance |
|---|---|---|---|
| Ashley Junior School | Foundation School | Good | 0.52 KM |
| Ashley Infant School | Community School | Good | 1.01 KM |
| Ballard School | Other Independent School | 1.57 KM | |
| New Milton Junior School | Community School | Good | 2.11 KM |
| New Milton Infant School | Community School | Outstanding | 2.12 KM |
Images
Nearby Streets
| Name | Average Price | Average Sqft | Distance |
|---|---|---|---|
| Meadow Road | £ 0 | 0 | 0.00 KM |
| Willowdene Close | £ 372,475 | 0 | 0.00 KM |
| Hilton Road | £ 0 | 0 | 0.00 KM |
| Park Road | £ 0 | 0 | 0.00 KM |
| Hermitage Close | £ 1,000,000 | 0 | 0.00 KM |
Nearby Transport
| Name | NLC | TLC | Distance |
|---|---|---|---|
| New Milton | 5881 | NWM | 1.47 KM |
| Sway | 5884 | SWY | 4.81 KM |
| Hinton Admiral | 5880 | HNA | 7.69 KM |
Nearby Listings
| Address | Price | Type | Score | Distance |
|---|---|---|---|---|
| Oak Road, New Milton, BH25 | £ 425,000 | BUY | 7 / 10 | 0.00 KM |
| Oak Road, New Milton, Hampshire, BH25 | £ 699,950 | BUY | 6 / 10 | 0.08 KM |
| Oak Road, New Milton, Hampshire, BH25 | £ 475,000 | BUY | 7 / 10 | 0.10 KM |
| Oak Road, New Milton, Hampshire, BH25 | £ 499,950 | BUY | 7 / 10 | 0.10 KM |
| Litchford Road, New Milton, Hampshire, BH25 | £ 609,950 | BUY | 7 / 10 | 0.13 KM |
Nearby Properties
| Address | Price | Distance |
|---|---|---|
| 8 Pilgrims Close | £ 194,000 | 0.06 KM |
| 2 Pilgrims Close | £ 243,000 | 0.06 KM |
| 6 Pilgrims Close | £ 185,000 | 0.06 KM |
| 87 Manor Road | £ 272,000 | 0.13 KM |
| 126 Manor Road | £ 190,000 | 0.13 KM |