PLM says ..
Are you looking for the chance to build your own home in Lostock ? Then arrange to view by appointment only. A rare opportunity presents itself to create a home to ones' own taste. Potential to modernise the exiting bungalow “as is” or further develop STPP. Planning granted ...
Property Oracle says ..
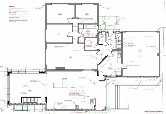
This property at 8 St. Leonards Avenue, Lostock, Bolton, is listed for £499,950. It’s described as a detached bungalow with the potential for modernisation or redevelopment. The listing highlights the opportunity to create a custom home. The area is well-regarded, with nearby schools receiving ‘Good’ Ofsted ratings and convenient rail links to Horwich Parkway. However, the images reveal the property is currently undergoing or scheduled for extensive renovation. The architectural plans detail a substantial extension and remodelling. Therefore, the current market value may not reflect the £499,950 asking price. A thorough survey and assessment would be needed to determine the actual cost of completion. Nearby properties on St Leonards Avenue show a range of prices, some considerably lower, while others are higher but usually larger. The lack of square footage data for the comparable properties is a limitation in accurate evaluation. The existence of a garden is positive, but the lack of precise plot size makes evaluating the land value challenging. In summary, the property’s potential value after the renovation is likely to be more accurately reflected in the final price than the current list price. Buyers should factor in the substantial costs and time involved in the renovation before making a decision.
Therefore, we give this property 5 / 10. *Disclaimer: This is our option and does constitute a recommendation or financial advice. Do your own research. *
- Price
- 6
- Condition
- 4
- Location
- 7
- Land
- 6
- Bedrooms
- 3
- Bathrooms
- 2
- Sqft (est)
- 1,000.00
The heatmap indicates the level of crime in the area. The color of the heatmap indicates the crime severity and recency.
Metrics Year-on-Year
- Average area value
- 347,530.00 £Increased by 38.09 %
- Est sale value
- 514,000.00 £Increased by 111.52 %
- Average area rental value
- 1,079.00 £/moDecreased by 12.21 %
- Est letting value
- 1,000.00 £/moUnchanged by 0.00 %
- Est rental Yield
- 3.73 %Decreased by 36.35 %
- Crime Rate
- 23.00 %Unchanged by 0.00 %
Agent Activity
PLM created the listing.
Nearby Schools
| Name | Type | Ofsted | Distance |
|---|---|---|---|
| Claypool Primary School | Community School | Good | 0.65 KM |
| St Joseph'S Rc High School | Voluntary Aided School | Requires improvement | 1.32 KM |
| St Mary'S Rc Primary School | Voluntary Aided School | Good | 2.11 KM |
| Chorley New Road Primary Academy | Academy Converter | 2.21 KM | |
| Lever Park School | Academy Special Sponsor Led | Good | 2.71 KM |
Images
Nearby Streets
| Name | Average Price | Average Sqft | Distance |
|---|---|---|---|
| Cranborne Close | £ 340,000 | 0 | 0.00 KM |
| Wimborne Close | £ 435,000 | 0 | 0.00 KM |
| Avebury Close | £ 0 | 0 | 0.00 KM |
| Bakers Lane | £ 210,000 | 0 | 0.00 KM |
| High Rid Lane | £ 0 | 0 | 0.00 KM |
Nearby Transport
| Name | NLC | TLC | Distance |
|---|---|---|---|
| Horwich Parkway | 8720 | HWI | 2.74 KM |
| Lostock | 2598 | LOT | 2.89 KM |
| Westhoughton | 2619 | WHG | 3.54 KM |
| Daisy Hill | 2777 | DSY | 5.25 KM |
| Blackrod | 2732 | BLK | 5.89 KM |
Nearby Listings
| Address | Price | Type | Score | Distance |
|---|---|---|---|---|
| 8 St. Leonards Avenue, Lostock, BL6 4JE | £ 499,950 | BUY | 5 / 10 | 0.00 KM |
| St. Leonards Avenue, Lostock, Bolton | £ 450,000 | BUY | Unknown | 0.01 KM |
| Blandford Rise, Lostock, Bolton, BL6 | £ 390,000 | BUY | 6 / 10 | 0.17 KM |
| Silver Birch Close, Lostock, BL6 | £ 285,000 | BUY | 8 / 10 | 0.19 KM |
| Purbeck Drive, Lostock, Bolton, BL6 | £ 450,000 | BUY | 7 / 10 | 0.23 KM |
Nearby Properties
| Address | Price | Distance |
|---|---|---|
| 2 St Leonards Avenue | £ 262,000 | 0.00 KM |
| 71 St Leonards Avenue | £ 355,000 | 0.00 KM |
| 44 St Leonards Avenue | £ 200,000 | 0.00 KM |
| 6 St Leonards Avenue | £ 295,000 | 0.00 KM |
| 40 St Leonards Avenue | £ 250,000 | 0.00 KM |