Next Move says ..
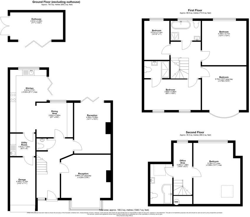
VIEWING DAY - Saturday 12th April - Email for details. This stunning loft converted 5 bedroom semi detached house is situated in one of North Chingford's premier roads and offers a perfect blend of modern living and charm, ideal for a growing family or those who enjoy spacious, contemporary surro...
Property Oracle says ..
Therefore, we give this property 7 / 10. *Disclaimer: This is our option and does constitute a recommendation or financial advice. Do your own research. *
- Price
- 6
- Condition
- 8
- Location
- 8
- Land
- 7
- Bedrooms
- 5
- Bathrooms
- 3
- Sqft (est)
- 1,584.45
The heatmap indicates the level of crime in the area. The color of the heatmap indicates the crime severity and recency.
Metrics Year-on-Year
- Average area value
- 695,833.00 £Increased by 4.28 %
- Est sale value
- 1,207,350.90 £Increased by 30.48 %
- Average area rental value
- 1,857.00 £/moIncreased by 3.17 %
- Est letting value
- 3,168.90 £/moIncreased by 100.00 %
- Est rental Yield
- 3.20 %Decreased by 1.23 %
- Crime Rate
- 10.00 %Unchanged by 0.00 %
from 667,300.00 £
from 925,318.80 £
from 1,800.00 £/mo
from 1,584.45 £/mo
from 3.24 %
from 10.00 %
Agent Activity
Next Move created the listing.
Nearby Schools
| Name | Type | Ofsted | Distance |
|---|---|---|---|
| St Mary'S Catholic Primary School | Voluntary Aided School | Outstanding | 0.29 KM |
| Normanhurst School | Other Independent School | 0.42 KM | |
| Chingford Cofe Primary School | Voluntary Controlled School | Good | 0.57 KM |
| Chingford Children'S Centre | Children's Centre | 1.17 KM | |
| Hawkswood (Therapeutic) | Pupil Referral Unit | Good | 1.22 KM |
Images
Nearby Streets
| Name | Average Price | Average Sqft | Distance |
|---|---|---|---|
| Buxton Road | £ 1,200,000 | 0 | 0.00 KM |
| St Theresa's Court | £ 350,000 | 0 | 0.00 KM |
| Doncel Crescent | £ 469,167 | 0 | 0.00 KM |
| Richmond Road | £ 669,990 | 0 | 0.00 KM |
| Shaftesbury Road | £ 707,500 | 0 | 0.00 KM |
Nearby Transport
| Name | NLC | TLC | Distance |
|---|---|---|---|
| Chingford | 6914 | CHI | 0.75 KM |
| Highams Park | 6919 | HIP | 2.85 KM |
| Ponders End | 6819 | PON | 4.33 KM |
| Brimsdown | 6810 | BMD | 4.47 KM |
| Wood Street | 6954 | WST | 5.28 KM |
Nearby Listings
| Address | Price | Type | Score | Distance |
|---|---|---|---|---|
| Eglington Road, Chingford, E4 | £ 1,295,000 | BUY | 7 / 10 | 0.00 KM |
| Eglington Road, North Chingford, E4 | £ 1,200,000 | BUY | 8 / 10 | 0.02 KM |
| Eglington Road, Chingford | £ 1,600,000 | BUY | Unknown | 0.05 KM |
| Buxton Road, Chingford | £ 1,000,000 | BUY | 7 / 10 | 0.09 KM |
| Mornington Road, London, E4 | £ 775,000 | BUY | 6 / 10 | 0.14 KM |
Nearby Properties
| Address | Price | Distance |
|---|---|---|
| 4 Eglington Road | £ 745,000 | 0.08 KM |
| 12 Eglington Road | £ 915,000 | 0.08 KM |
| 5 Eglington Road | £ 420,000 | 0.08 KM |
| 1 Eglington Road | £ 905,000 | 0.08 KM |
| 11 Eglington Road | £ 1,025,000 | 0.08 KM |