Minors & Brady says ..
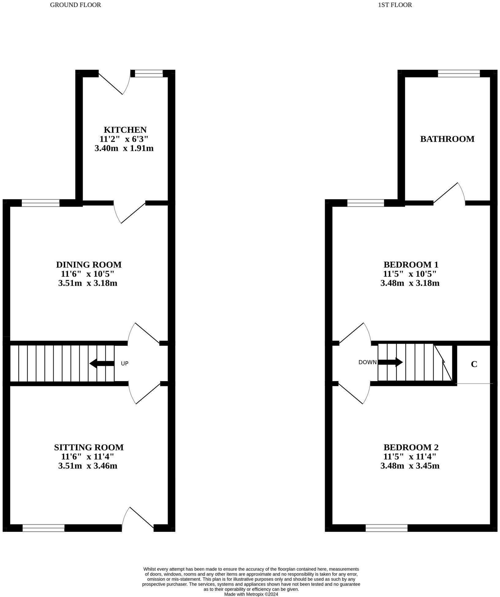
This beautifully presented 2-bedroom terraced house, situated in the highly sought-after NR3 district, presents a rare opportunity for those seeking a modern home in a convenient location. Boasting a contemporary interior that has been tastefully refurbished, this property is a testament to style...
Property Oracle says ..
This 2-bedroom terraced house on Magpie Road in Norwich presents a well-maintained and stylish living space. The property has clearly undergone recent renovations or refurbishment, resulting in a modern and updated interior. The kitchen and bathroom showcase high-quality finishes and fixtures. The photos depict a tastefully decorated home with a neutral color palette that creates a bright and airy ambiance.
The property’s location in the NR3 district and its proximity to Magdalen Gates Primary School make it attractive to families. While close to Norwich City Centre, specific details about local shops, transportation links, and other amenities are not available for a more comprehensive assessment. The included rear garden, while not extensive, does provide additional outdoor space.
The list price of £210,000 needs further analysis, particularly concerning the lack of detailed comparable sales data. The average price of £225,000 for Magpie Road suggests the property is priced slightly below the average, making it relatively competitive. Nevertheless, a more precise price-per-square-foot comparison with similar properties would allow for a more accurate assessment of value. The absence of precise plot size also hinders complete evaluation.
Therefore, we give this property 6 / 10. *Disclaimer: This is our option and does constitute a recommendation or financial advice. Do your own research. *
- Price
- 7
- Condition
- 9
- Location
- 7
- Land
- 4
- Bedrooms
- 2
- Bathrooms
- 1
- Sqft (est)
- 825.27
The heatmap indicates the level of crime in the area. The color of the heatmap indicates the crime severity and recency.
Metrics Year-on-Year
- Average area value
- 226,667.00 £Increased by 0.36 %
- Est sale value
- 256,658.97 £Increased by 16.48 %
- Average area rental value
- 1,053.00 £/moIncreased by 3.74 %
- Est letting value
- 825.27 £/moUnchanged by 0.00 %
- Est rental Yield
- 5.57 %Increased by 3.34 %
- Crime Rate
- 8.00 %Unchanged by 0.00 %
Agent Activity
Minors & Brady marked this listing as sold.
Minors & Brady created the listing.
Nearby Schools
| Name | Type | Ofsted | Distance |
|---|---|---|---|
| Magdalen Gates Primary School | Community School | Good | 0.23 KM |
| Angel Road Junior School | Academy Sponsor Led | 0.54 KM | |
| Angel Road Infant School | Academy Converter | 0.62 KM | |
| North City Children'S Centre | Children's Centre | 0.63 KM | |
| Jane Austen College | Free Schools | Good | 0.76 KM |
Images
Nearby Streets
| Name | Average Price | Average Sqft | Distance |
|---|---|---|---|
| Magpie Road | £ 225,000 | 0 | 0.00 KM |
| Old Whitings Court | £ 0 | 0 | 0.00 KM |
| Saint Pauls Square | £ 0 | 0 | 0.00 KM |
| Taylors Buildings | £ 0 | 0 | 0.00 KM |
| Sackville Place | £ 0 | 0 | 0.00 KM |
Nearby Transport
| Name | NLC | TLC | Distance |
|---|---|---|---|
| Norwich | 7309 | NRW | 1.78 KM |
Nearby Listings
| Address | Price | Type | Score | Distance |
|---|---|---|---|---|
| Magpie Road, Norwich | £ 185,000 | BUY | Unknown | 0.06 KM |
| Magdalen Road, Norwich | £ 230,000 | BUY | 5 / 10 | 0.07 KM |
| Magdalen Road, Norwich, Norfolk, NR3 | £ 260,000 | BUY | 5 / 10 | 0.08 KM |
| Magdalen Road, Norwich | £ 220,000 | BUY | 5 / 10 | 0.09 KM |
| Stacy Road, Norwich | £ 230,000 | BUY | 7 / 10 | 0.09 KM |
Nearby Properties
| Address | Price | Distance |
|---|---|---|
| 12 Magdalen Road | £ 217,500 | 0.04 KM |
| 10 Magdalen Road | £ 139,000 | 0.04 KM |
| 4 Magdalen Road | £ 90,000 | 0.04 KM |
| 6 Magdalen Road | £ 134,950 | 0.04 KM |
| 14a Magdalen Road | £ 125,000 | 0.04 KM |