BR
Edgehill Road, Moreton, Wirral, CH46
By Bradshaw Farnham & Lea
£ 175,000
Reviews
3 out of 5 stars
Bradshaw Farnham & Lea says ..
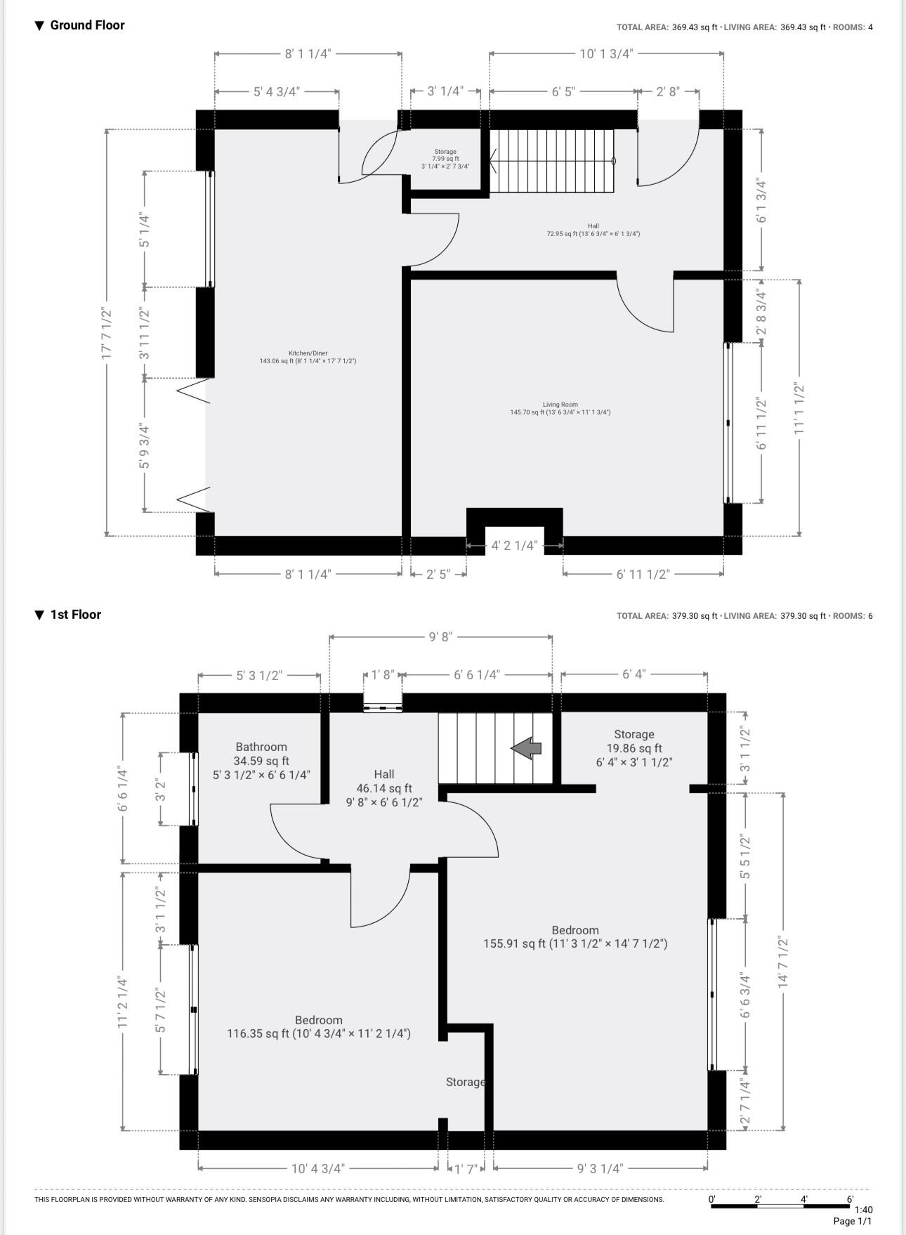
Welcome to this beautifully presented two-bedroom home, offering a perfect blend of comfort, character, and charm. Situated in a peaceful residential setting with stunning views across open green fields, this property is ideal for first-time buyers, small families, or those looking to downsize wi...
Property Oracle says ..
Therefore, we give this property 6 / 10. *Disclaimer: This is our option and does constitute a recommendation or financial advice. Do your own research. *
- Price
- 4
- Condition
- 6
- Location
- 7
- Land
- 7
- Bedrooms
- 2
- Bathrooms
- 1
- Sqft (est)
- 369.43
The heatmap indicates the level of crime in the area. The color of the heatmap indicates the crime severity and recency.
Metrics Year-on-Year
- Average area value
- 217,778.00 £Decreased by 2.80 %
- Est sale value
- 62,803.10 £Decreased by 25.11 %
- Average area rental value
- 1,039.00 £/moIncreased by 54.15 %
- Est letting value
- 0.00 £/mo
- Est rental Yield
- 5.73 %Increased by 58.73 %
- Crime Rate
- 3.00 %Unchanged by 0.00 %
from 224,058.00 £
from 83,860.61 £
from 674.00 £/mo
from 0.00 £/mo
from 3.61 %
from 3.00 %
Agent Activity
Bradshaw Farnham & Lea created the listing.
Nearby Schools
| Name | Type | Ofsted | Distance |
|---|---|---|---|
| Lingham Primary School | Community School | Good | 0.52 KM |
| Moreton Christ Church Cofe Primary School | Academy Converter | 1.19 KM | |
| Eastway Primary School | Community School | Requires improvement | 1.79 KM |
| Sacred Heart Catholic Primary School | Voluntary Aided School | Good | 2.16 KM |
| Orrets Meadow School | Community Special School | Outstanding | 2.35 KM |
Images
Nearby Streets
| Name | Average Price | Average Sqft | Distance |
|---|---|---|---|
| Millers Way | £ 234,975 | 0 | 0.00 KM |
| Inglewood Avenue | £ 220,000 | 0 | 0.00 KM |
| Hill Grove | £ 0 | 0 | 0.00 KM |
| Rosslyn Crescent | £ 0 | 0 | 0.00 KM |
| Saint Kilda's Road | £ 340,000 | 0 | 0.00 KM |
Nearby Transport
| Name | NLC | TLC | Distance |
|---|---|---|---|
| Moreton (Merseyside) | 2151 | MRT | 1.23 KM |
| Leasowe | 2237 | LSW | 2.62 KM |
| Meols | 2254 | MEO | 3.60 KM |
| Upton (Merseyside) | 2141 | UPT | 4.41 KM |
| Bidston | 2136 | BID | 4.89 KM |
Nearby Listings
| Address | Price | Type | Score | Distance |
|---|---|---|---|---|
| Edgehill Road, Moreton, Wirral, CH46 | £ 175,000 | BUY | 6 / 10 | 0.00 KM |
| Edgehill Road, Moreton, Wirral, CH46 | £ 175,000 | BUY | 7 / 10 | 0.02 KM |
| Kestrel Road, Moreton, Wirral | £ 255,000 | BUY | Unknown | 0.10 KM |
| Edgehill Road, Moreton, Wirral, CH46 | £ 210,000 | BUY | 7 / 10 | 0.14 KM |
| Douglas Drive, Moreton, Wirral | £ 180,000 | BUY | 6 / 10 | 0.16 KM |
Nearby Properties
| Address | Price | Distance |
|---|---|---|
| 62 Edgehill Road | £ 105,000 | 0.09 KM |
| 78 Edgehill Road | £ 122,000 | 0.09 KM |
| 48 Edgehill Road | £ 115,000 | 0.09 KM |
| 38 Edgehill Road | £ 95,000 | 0.09 KM |
| 40 Edgehill Road | £ 115,000 | 0.09 KM |