WH
Marriott Road, Sandbach
By Wheatcroft & Lloyd
£ 220,000
Reviews
3 out of 5 stars
Wheatcroft & Lloyd says ..
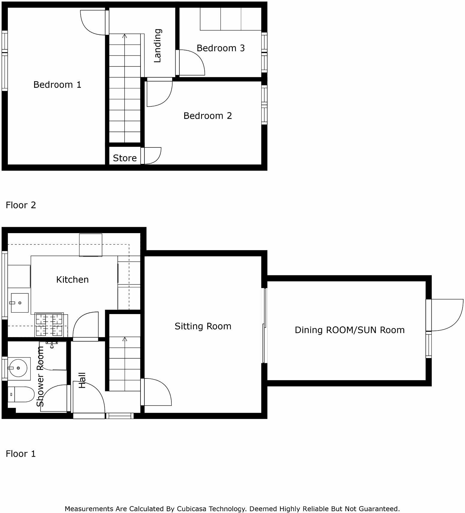
Three bedroom semi-detached property in a popular location with ample off road parking and private rear garden.
Property Oracle says ..
Therefore, we give this property 6 / 10. *Disclaimer: This is our option and does constitute a recommendation or financial advice. Do your own research. *
- Price
- 6
- Condition
- 6
- Location
- 7
- Land
- 7
- Bedrooms
- 3
- Bathrooms
- 1
- Sqft (est)
- 936.00
The heatmap indicates the level of crime in the area. The color of the heatmap indicates the crime severity and recency.
Metrics Year-on-Year
- Average area value
- 358,750.00 £Increased by 32.67 %
- Est sale value
- 208,728.00 £Decreased by 16.48 %
- Average area rental value
- 1,413.00 £/moIncreased by 43.74 %
- Est letting value
- 0.00 £/mo
- Est rental Yield
- 4.73 %Increased by 8.49 %
- Crime Rate
- 2.00 %Unchanged by 0.00 %
from 270,398.00 £
from 249,912.00 £
from 983.00 £/mo
from 0.00 £/mo
from 4.36 %
from 2.00 %
Agent Activity
Wheatcroft & Lloyd marked this listing as sold.
Wheatcroft & Lloyd created the listing.
Nearby Schools
| Name | Type | Ofsted | Distance |
|---|---|---|---|
| Wheelock Primary School | Academy Converter | 0.73 KM | |
| Sandbach Primary Academy | Academy Converter | Good | 1.62 KM |
| Sandbach School | Free Schools | Good | 1.63 KM |
| Sandbach Children'S Centre | Children's Centre | 1.67 KM | |
| Sandbach High School And Sixth Form College | Academy Converter | 1.80 KM |
Images
Nearby Streets
| Name | Average Price | Average Sqft | Distance |
|---|---|---|---|
| Game Street | £ 0 | 0 | 0.00 KM |
| Chapel Street | £ 0 | 0 | 0.00 KM |
| Cotton Lane | £ 270,000 | 0 | 0.00 KM |
| Moorland Road | £ 500,000 | 0 | 0.00 KM |
| Glebe Road | £ 318,000 | 0 | 0.00 KM |
Nearby Transport
| Name | NLC | TLC | Distance |
|---|---|---|---|
| Sandbach | 1261 | SDB | 2.78 KM |
| Crewe | 1243 | CRE | 7.54 KM |
| Holmes Chapel | 1221 | HCH | 8.21 KM |
| Alsager | 1223 | ASG | 9.70 KM |
Nearby Listings
| Address | Price | Type | Score | Distance |
|---|---|---|---|---|
| Marriott Road, Sandbach | £ 220,000 | BUY | 6 / 10 | 0.00 KM |
| Marriott Road, Sandbach | £ 230,000 | BUY | 7 / 10 | 0.05 KM |
| Telford Gardens, Sandbach | £ 400,000 | BUY | 6 / 10 | 0.09 KM |
| Oldfield Road, Sandbach | £ 290,000 | BUY | 7 / 10 | 0.23 KM |
| Oldfield Road, Sandbach | £ 220,000 | BUY | 7 / 10 | 0.26 KM |
Nearby Properties
| Address | Price | Distance |
|---|---|---|
| 41 Marriott Road | £ 147,500 | 0.02 KM |
| 42 Marriott Road | £ 160,000 | 0.02 KM |
| 55 Marriott Road | £ 245,000 | 0.02 KM |
| 31 Marriott Road | £ 145,000 | 0.02 KM |
| 57 Marriott Road | £ 178,000 | 0.02 KM |