Manor Road, Abersychan, NP4
By Number One Real Estate
£ 190,000
Reviews
3 out of 5 stars
Number One Real Estate says ..
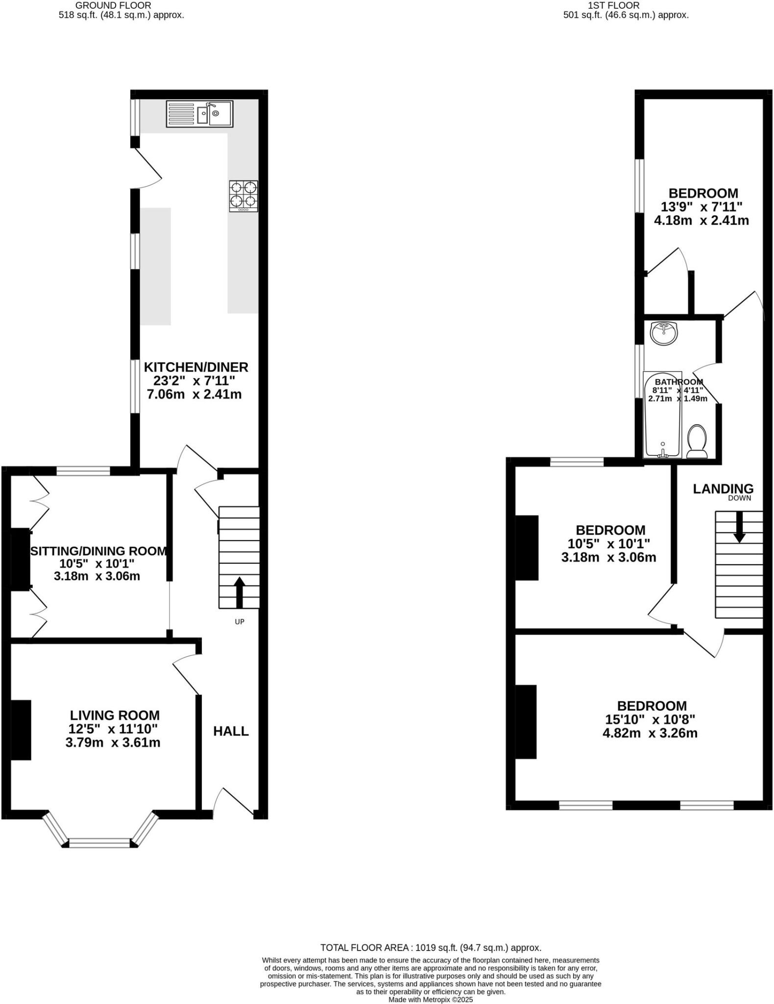
**BEAUTIFULLY PRESENTED**THREE DOUBLE BEDROOMS**TWO RECEPTION ROOMS**KITCHEN/DINER**FAMILY BATHROOM**REAR GARDEN**LOVELY VIEWS**
Property Oracle says ..
This property is a 3-bedroom, 1-bathroom terraced house located on Manor Road in Abersychan, Torfaen, Wales. The list price is £190,000, and the property has 818.36 sqft of living space and a 1,019 sqft plot. The average house price in the area is £305,948 with an average price per sqft of £364. The property appears to be well-maintained and recently renovated, with a modern kitchen and updated bathrooms. The location is convenient, with nearby schools and transportation options. The small garden is a pleasant addition. Considering the condition, location, and size of the plot, the list price appears to be reasonable, especially given that similar properties in the area have sold for higher prices. However, it is worth noting that the average price per sqft in the area is significantly higher than the price per sqft of this property.
Therefore, we give this property 7 / 10. *Disclaimer: This is our option and does constitute a recommendation or financial advice. Do your own research. *
- Price
- 8
- Condition
- 9
- Location
- 7
- Land
- 4
- Bedrooms
- 3
- Bathrooms
- 1
- Sqft (est)
- 818.36
- Lot (est)
- 1,019.00
The heatmap indicates the level of crime in the area. The color of the heatmap indicates the crime severity and recency.
Metrics Year-on-Year
- Average area value
- 283,000.00 £Decreased by 21.70 %
- Est sale value
- 310,976.80 £Increased by 38.69 %
- Average area rental value
- 1,134.00 £/moIncreased by 19.24 %
- Est letting value
- 818.36 £/mo
- Est rental Yield
- 4.81 %Increased by 52.22 %
- Crime Rate
- 9.00 %Unchanged by 0.00 %
Agent Activity
Number One Real Estate marked this listing as sold.
Number One Real Estate created the listing.
Nearby Schools
| Name | Type | Ofsted | Distance |
|---|---|---|---|
| Abersychan Comprehensive School | Welsh Establishment | 0.45 KM | |
| Garnteg Primary School | Welsh Establishment | 1.28 KM | |
| Ysgol Bryn Onnen | Welsh Establishment | 1.68 KM | |
| Cwmffrwdoer Primary School | Welsh Establishment | 1.70 KM | |
| George Street Primary School | Welsh Establishment | 3.12 KM |
Images
Nearby Streets
| Name | Average Price | Average Sqft | Distance |
|---|---|---|---|
| Manor Road | £ 198,413 | 0 | 0.00 KM |
| Waterloo Road | £ 192,121 | 0 | 0.00 KM |
| Factory Lane | £ 0 | 0 | 0.00 KM |
| Picton Road | £ 185,000 | 0 | 0.00 KM |
| Foundry Road | £ 190,000 | 0 | 0.00 KM |
Nearby Transport
| Name | NLC | TLC | Distance |
|---|---|---|---|
| Pontypool And New Inn | 3744 | PPL | 6.41 KM |
| Llanhilleth | 9916 | LTH | 8.30 KM |
| Cwmbran | 3738 | CWM | 9.42 KM |
Nearby Listings
| Address | Price | Type | Score | Distance |
|---|---|---|---|---|
| Manor Road, Abersychan, NP4 | £ 190,000 | BUY | 7 / 10 | 0.00 KM |
| Manor Road, Abersychan, Pontypool | £ 165,000 | BUY | Unknown | 0.05 KM |
| Swan Square, Abersychan, NP4 | £ 100,000 | BUY | 5 / 10 | 0.10 KM |
| Mount Pleasant, Waterloo Road | £ 130,000 | BUY | Unknown | 0.10 KM |
| Pleasant View, Talywain, Pontypool | £ 150,000 | BUY | 6 / 10 | 0.12 KM |
Nearby Properties
| Address | Price | Distance |
|---|---|---|
| 109 Manor Road | £ 80,000 | 0.05 KM |
| 91 Manor Road | £ 152,000 | 0.05 KM |
| 123 Manor Road | £ 39,950 | 0.05 KM |
| 95 Manor Road | £ 69,000 | 0.05 KM |
| 105 Manor Road | £ 125,000 | 0.05 KM |