School Road, Rubery, Rednal, Birmingham, B45
OA

School Road, Rubery, Rednal, Birmingham, B45

By Oakmans Estate Agents

£ 325,000

Reviews

3 out of 5 stars

Oakmans Estate Agents says ..

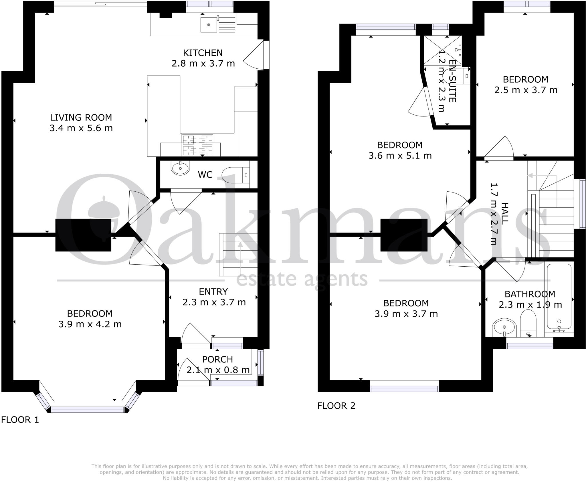
This beautifully presented three-bedroom semi-detached home has been finished to an exceptionally high standard throughout and is situated in a highly sought-after location close to local amenities. Upon entering, you are greeted by a bright and spacious hallway filled with natural lig...

Property Oracle says ..

This is a three-bedroom semi-detached property located on School Road, Rubery. The property benefits from a recently renovated kitchen and bathrooms, giving it a modern feel in these areas. However, some rooms appear to need finishing, and the garden requires significant landscaping. The property is located close to local amenities and schools, although the Ofsted ratings of nearby schools are not ideal. The asking price of £325,000 seems reasonable given the renovations and location, but potential buyers should factor in the cost of completing the remaining work, especially in the garden. Overall, this property offers a good opportunity for buyers willing to invest some time and effort into completing the renovations.

Therefore, we give this property 6 / 10. *Disclaimer: This is our option and does constitute a recommendation or financial advice. Do your own research. *

Price
7
Condition
6
Location
6
Land
5
Bedrooms
3
Bathrooms
2
Sqft (est)
319.69

The heatmap indicates the level of crime in the area. The color of the heatmap indicates the crime severity and recency.

Metrics Year-on-Year

Average area value
235,000.00 £
Decreased by 26.06 %
from 317,813.00 £
Est sale value
67,134.90 £
Decreased by 18.92 %
from 82,799.71 £
Average area rental value
1,450.00 £/mo
Increased by 70.99 %
from 848.00 £/mo
Est letting value
319.69 £/mo
from 0.00 £/mo
Est rental Yield
7.40 %
Increased by 131.25 %
from 3.20 %
Crime Rate
8.00 %
Unchanged by 0.00 %
from 8.00 %

Agent Activity

  • Oakmans Estate Agents created the listing.

Nearby Schools

NameTypeOfstedDistance
Waseley Hills High SchoolAcademy ConverterRequires improvement0.14 KM
Holywell Primary And Nursery SchoolCommunity SchoolRequires improvement0.40 KM
Beaconside Primary And Nursery SchoolCommunity SchoolGood0.78 KM
Reaside AcademyAcademy Sponsor LedGood1.31 KM
St James Catholic Primary SchoolAcademy Converter2.02 KM

Images

Picture No. 46 Picture No. 04 Picture No. 06 Picture No. 07 Picture No. 08 Picture No. 09 Picture No. 10 Picture No. 14 Picture No. 11 Picture No. 01 Picture No. 17 Picture No. 37 Picture No. 39 Picture No. 36 Picture No. 34 Picture No. 30 Picture No. 32 Picture No. 43 Picture No. 44 Picture No. 28 Picture No. 29 Picture No. 21 Picture No. 22 Picture No. 24 Picture No. 25 Picture No. 26 Picture No. 27 Picture No. 47 Picture No. 19 Picture No. 20 Picture No. 18 Picture No. 49

Nearby Streets

NameAverage PriceAverage SqftDistance
Bowes Road £ 000.00 KM
Barrington Road £ 235,00000.00 KM
Bowes Road £ 000.00 KM
Richmond Road £ 309,50000.00 KM
Barrington Road £ 211,50000.00 KM

Nearby Transport

NameNLCTLCDistance
Barnt Green1096BTG5.32 KM
Longbridge1110LOB5.43 KM
Northfield1111NFD7.37 KM
Bromsgrove4715BMV7.86 KM
Alvechurch1198ALV8.51 KM

Nearby Listings

AddressPriceTypeScoreDistance
School Road, Rubery, Rednal, Birmingham, B45 £ 325,000BUY6 / 100.00 KM
Holywell Lane, Rednal, Birmingham, West Midlands, B45 £ 400,000BUY6 / 100.05 KM
Plot 16, Lot 1, Gunner Lane, Rubery, Rednal, Birmingham, West Midlands, B45 9EP £ 100BUY6 / 100.16 KM
Gunner Lane, Rednal, B45 £ 335,000BUY7 / 100.16 KM
Gannow Road, Rednal, B45 £ 400,000BUY6 / 100.19 KM

Nearby Properties

AddressPriceDistance
2 Holywell Lane £ 90,0000.06 KM
15 Holywell Lane £ 115,0000.06 KM
34 Holywell Lane £ 410,0000.06 KM
3 Holywell Lane £ 165,0000.06 KM
7 Holywell Lane £ 262,5000.06 KM