Kings Road West, Swanage, Dorset, BH19
By Miles & Son
£ 239,950
Reviews
3 out of 5 stars
Miles & Son says ..
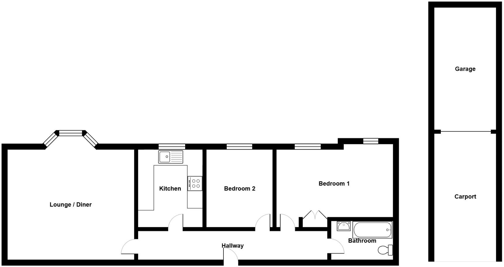
* GOOD-SIZE purpose-built FIRST FLOOR FLAT in a convenient LEVEL POSITION * 2 bedrooms, lounge/diner with bay window, re-fitted kitchen, bathroom/W.C., gas central heating, double glazed windows, communal grounds, CAR PORT PARKING and GARAGE. Being sold with NO FORWARD CHAIN!
Property Oracle says ..
This property is a 2-bedroom flat located in Swanage, Dorset. Swanage is a popular coastal town with good local amenities and schools, giving it a desirable location. The property itself appears to be in reasonable condition, though some updating might enhance its appeal. The images show a functional interior, but a more modern aesthetic could increase market value. The inclusion of a garage is a definite plus. While the property’s square footage is not provided, the list price of £239,950 seems slightly higher than comparable properties in the area, especially considering the average price per square foot is £430. However, the garage and desirable location could justify this price to some buyers.
Therefore, we give this property 6 / 10. *Disclaimer: This is our option and does constitute a recommendation or financial advice. Do your own research. *
- Price
- 6
- Condition
- 7
- Location
- 8
- Land
- 5
- Bedrooms
- 2
- Bathrooms
- 1
The heatmap indicates the level of crime in the area. The color of the heatmap indicates the crime severity and recency.
Metrics Year-on-Year
- Average area value
- 370,787.00 £Decreased by 15.08 %
- Average area rental value
- 1,017.00 £/moDecreased by 0.49 %
- Est rental Yield
- 3.29 %Increased by 17.08 %
- Crime Rate
- 9.00 %Unchanged by 0.00 %
Agent Activity
Miles & Son marked this listing as sold.
Miles & Son created the listing.
Nearby Schools
| Name | Type | Ofsted | Distance |
|---|---|---|---|
| Swanage | Children's Centre | 0.40 KM | |
| Swanage Primary School | Community School | Good | 0.44 KM |
| Purbeck View School | Other Independent Special School | Good | 0.58 KM |
| St Mary'S Catholic Primary School, Swanage | Academy Converter | Requires improvement | 1.36 KM |
| The Swanage School | Free Schools | Good | 2.23 KM |
Images
Nearby Streets
| Name | Average Price | Average Sqft | Distance |
|---|---|---|---|
| Church Close | £ 450,000 | 0 | 0.00 KM |
| Alma Terrace | £ 395,000 | 0 | 0.00 KM |
| Foxhill Close | £ 0 | 0 | 0.00 KM |
| The Square | £ 425,000 | 0 | 0.00 KM |
| Cow Lane | £ 175,000 | 0 | 0.00 KM |
Nearby Listings
| Address | Price | Type | Score | Distance |
|---|---|---|---|---|
| Kings Road West, Swanage, Dorset, BH19 | £ 239,950 | BUY | 6 / 10 | 0.00 KM |
| Kings Road West, Swanage, Dorset, BH19 | £ 237,500 | BUY | Unknown | 0.00 KM |
| Kings Road West, Swanage, BH19 | £ 405,000 | BUY | 5 / 10 | 0.00 KM |
| Swanage | £ 210,000 | BUY | 5 / 10 | 0.03 KM |
| KINGS ROAD WEST, SWANAGE | £ 185,000 | BUY | Unknown | 0.04 KM |
Nearby Properties
| Address | Price | Distance |
|---|---|---|
| 90 Kings Road West | £ 235,000 | 0.00 KM |
| 88 Kings Road West | £ 235,000 | 0.00 KM |
| 64 Kings Road West | £ 73,000 | 0.00 KM |
| 84 Kings Road West | £ 280,000 | 0.00 KM |
| 78 Kings Road West | £ 355,000 | 0.00 KM |