Beacon Lane Cramlington Northumberland NE23 8FP
DA

Beacon Lane Cramlington Northumberland NE23 8FP

By David Wilson Homes North East

£ 244,995

Reviews

3 out of 5 stars

David Wilson Homes North East says ..

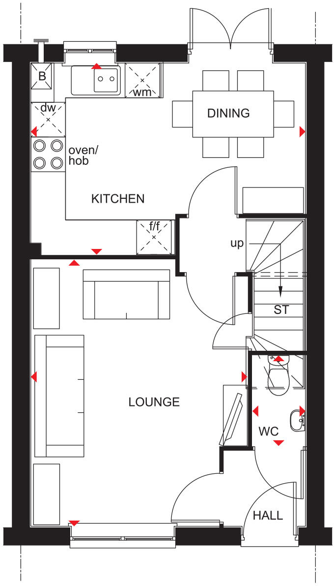
Your new home in a CUL-DE-SAC LOCATION offers FRONT PARKING for 2 cars and rear OPEN SPACE VIEWS | Discover an OPEN-PLAN kitchen diner, complete with FRENCH DOORS opening onto your garden. There's also a bright and spacious lounge that's perfect to unwind in after a busy day. Upstairs, bedroom 1 ...

Property Oracle says ..

This is a modern, end-of-terrace property located in Cramlington West, Northumberland. The property is in excellent condition and appears to be newly built. It features a garden and is located in a family-friendly area with good transport links and nearby schools. The price seems reasonable compared to the local average price per square foot. The property is an ideal purchase for a small family or first-time buyer. The proximity to schools and transport links make it a desirable location.

Therefore, we give this property 7 / 10. *Disclaimer: This is our option and does constitute a recommendation or financial advice. Do your own research. *

Price
7
Condition
9
Location
7
Land
6
Bedrooms
3
Bathrooms
0
Sqft (est)
590.00

The heatmap indicates the level of crime in the area. The color of the heatmap indicates the crime severity and recency.

Metrics Year-on-Year

Average area value
625,000.00 £
Increased by 9.15 %
from 572,608.00 £
Est sale value
390,580.00 £
Increased by 24.67 %
from 313,290.00 £
Average area rental value
1,525.00 £/mo
Increased by 1.26 %
from 1,506.00 £/mo
Est letting value
590.00 £/mo
Unchanged by 0.00 %
from 590.00 £/mo
Est rental Yield
2.93 %
Decreased by 7.28 %
from 3.16 %
Crime Rate
14.00 %
Unchanged by 0.00 %
from 14.00 %

Agent Activity

  • David Wilson Homes North East created the listing.

Nearby Schools

NameTypeOfstedDistance
Cramlington Children'S CentreChildren's Centre1.04 KM
Beaconhill Community Primary SchoolCommunity SchoolGood1.16 KM
Cramlington Learning VillageAcademy ConverterGood2.77 KM
North Gosforth AcademyAcademy Sponsor Led2.93 KM
Hareside Primary SchoolCommunity SchoolGood2.95 KM

Images

DWH EM Archford Kitchen DWH EM Archford Kitchen Ashtree Grove Archford home DWH EM Archford Lounge DWH EM Archford Lounge DWH EM Archford Bedroom DWH EM Archford Bedroom DWH EM Archford En Suite Bathroom DWH EM ARCHFORD BATHROOM Outside view of 4 bedroom homes at West Meadows

Nearby Streets

NameAverage PriceAverage SqftDistance
Azalea Court £ 000.00 KM
Mayflower Gardens £ 375,00000.00 KM
Wisteria Place £ 440,00000.00 KM
Bluebell Close £ 000.00 KM
Lavender Way £ 126,00000.00 KM

Nearby Transport

NameNLCTLCDistance
Cramlington7579CRM1.89 KM

Nearby Listings

AddressPriceTypeScoreDistance
Beacon Lane Cramlington Northumberland NE23 8FP £ 237,995BUY7 / 100.00 KM
Beacon Lane Cramlington Northumberland NE23 8FP £ 380,000BUY7 / 100.00 KM
Beacon Lane Cramlington Northumberland NE23 8FP £ 244,995BUY7 / 100.00 KM
Beacon Lane Cramlington Northumberland NE23 8FP £ 309,000BUYUnknown0.00 KM
Beacon Lane Cramlington Northumberland NE23 8FP £ 237,995BUY7 / 100.00 KM

Nearby Properties

AddressPriceDistance
22 Kielder Avenue £ 308,0000.17 KM
1 Kielder Avenue £ 155,0000.17 KM
27 Kielder Avenue £ 60,0000.17 KM
21 Kielder Avenue £ 220,0000.17 KM
11 Kielder Avenue £ 325,0000.17 KM