Dethick Lane, Matlock, Dethick DE4 5GG
By Fine & Country
£ 1,500,000
Reviews
3 out of 5 stars
Fine & Country says ..
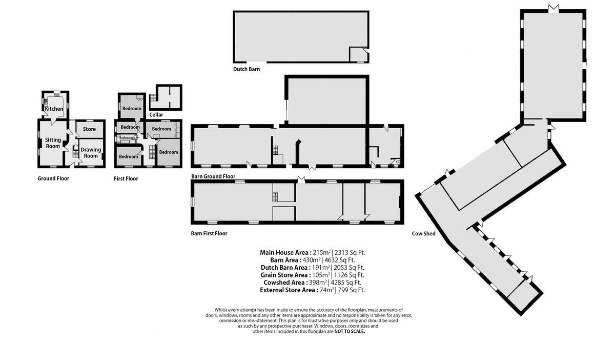
Church Farm presents a significant redevelopment prospect (subject to planning permission), encompassing a 3.5-acre site with a five-bedroom farmhouse offering picturesque views, and nearly 13,000 square feet of additional buildings
Property Oracle says ..
The property is a detached house located in Dethick Lane, Matlock, Dethick DE4 5GG. It has 5 bedrooms and 1 bathroom, with a total area of 1,200 sqft. The list price is £1,500,000. The property is situated in a rural location with nearby transportation options and several primary schools within a reasonable distance. Based on the images provided, the property appears to be a period property, possibly a converted barn or farmhouse. It requires significant renovation and modernisation throughout. The property benefits from extensive land, including outbuildings and a garden. Considering the average house price in the area is £221,234 and the average price per sqft is £236, the list price of £1,500,000 for this property appears high, even considering its size and land. However, the unique character of the property as a period property with extensive grounds could justify a higher price compared to average properties in the area. A full survey and professional valuation would be needed to determine a fair market price.
Therefore, we give this property 6 / 10. *Disclaimer: This is our option and does constitute a recommendation or financial advice. Do your own research. *
- Price
- 4
- Condition
- 3
- Location
- 7
- Land
- 10
- Bedrooms
- 5
- Bathrooms
- 1
- Sqft (est)
- 1,200.00
The heatmap indicates the level of crime in the area. The color of the heatmap indicates the crime severity and recency.
Metrics Year-on-Year
- Average area value
- 200,000.00 £Decreased by 67.48 %
- Est sale value
- 318,000.00 £Decreased by 45.47 %
- Average area rental value
- 1,295.00 £/moIncreased by 23.33 %
- Est letting value
- 1,200.00 £/mo
- Est rental Yield
- 7.77 %Increased by 279.02 %
- Crime Rate
- 0.00 %
Agent Activity
Fine & Country created the listing.
Nearby Schools
| Name | Type | Ofsted | Distance |
|---|---|---|---|
| Lea Primary School | Community School | Outstanding | 1.25 KM |
| Tansley Primary School | Community School | Good | 1.96 KM |
| Crich Carr Cofe Primary School | Voluntary Controlled School | Good | 3.91 KM |
| Highfields School | Academy Converter | 4.09 KM | |
| St Joseph'S Catholic Voluntary Academy | Academy Sponsor Led | Good | 4.32 KM |
Images
Nearby Streets
| Name | Average Price | Average Sqft | Distance |
|---|---|---|---|
| Hillside | £ 0 | 0 | 0.00 KM |
| Matlock Road | £ 0 | 0 | 0.00 KM |
| Holme Close | £ 510,000 | 0 | 0.00 KM |
| Chapel Lane | £ 350,000 | 0 | 0.00 KM |
| Tansley House Gardens | £ 260,200 | 0 | 0.00 KM |
Nearby Transport
| Name | NLC | TLC | Distance |
|---|---|---|---|
| Whatstandwell | 1585 | WTS | 4.00 KM |
| Cromford | 1822 | CMF | 4.13 KM |
| Matlock Bath | 1582 | MTB | 4.94 KM |
| Matlock | 1581 | MAT | 5.62 KM |
| Ambergate | 1678 | AMB | 7.32 KM |
Nearby Listings
| Address | Price | Type | Score | Distance |
|---|---|---|---|---|
| Dethick Lane, Matlock, Dethick DE4 5GG | £ 1,500,000 | BUY | 6 / 10 | 0.00 KM |
| Dethick Lane, Dethick Matlock Derbyshire DE4 5GG | £ 1,700,000 | BUY | 7 / 10 | 0.00 KM |
| Main Road, Lea, DE4 5GJ | £ 425,000 | BUY | 6 / 10 | 0.49 KM |
| Main Road, Lea, DE4 5GJ | £ 375,000 | BUY | Unknown | 0.49 KM |
| Sledgegate Lane, DE4 | £ 775,000 | BUY | 7 / 10 | 0.58 KM |
Nearby Properties
| Address | Price | Distance |
|---|---|---|
| Coppersmith House | £ 299,950 | 0.46 KM |
| 4 Main Road | £ 240,000 | 0.46 KM |
| 2 Main Road | £ 59,950 | 0.46 KM |
| Springfield | £ 300,000 | 0.46 KM |
| Blacksmith Cottage | £ 140,000 | 0.46 KM |