Flat 4 Vernon Court, Marple Road, Offerton
By Joules Estate Agency
£ 125,000
Reviews
3 out of 5 stars
Joules Estate Agency says ..
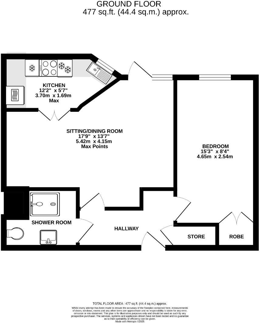
Delightful One Bedroom Ground Floor Apartment. Strictly Over 60'S Retirement Living. Private Living Room with Dining Area. Door Opening onto Communal Garden. Modern Kitchen with Integrated Appliances. Good Sized Double Bedroom with Built in Wardrobe. Modern Shower Room. No Vendor Chain. Mus...
Property Oracle says ..
This property is a one-bedroom apartment located in Offerton, Stockport. The apartment is part of a well-maintained retirement development, as evidenced by the provided photographs, which show a clean and modern interior and exterior. The property includes a small garden area for residents. The location is convenient, with nearby schools and transportation options (multiple train stations within a 3km radius). However, the list price of £125,000 is significantly below the average price for the area (£305,855), and the average price per square foot is also considerably lower than the area average (£286.00 vs. an implied £256.00 for this property). This discrepancy may be due to the property being part of a retirement development, which could affect its overall value compared to other properties in the area. More information on comparable properties within the development would be helpful in determining a more accurate assessment of its value.
Therefore, we give this property 6 / 10. *Disclaimer: This is our option and does constitute a recommendation or financial advice. Do your own research. *
- Price
- 4
- Condition
- 8
- Location
- 7
- Land
- 7
- Bedrooms
- 1
- Bathrooms
- 1
- Sqft (est)
- 487.00
- Lot (est)
- 477.00
The heatmap indicates the level of crime in the area. The color of the heatmap indicates the crime severity and recency.
Metrics Year-on-Year
- Average area value
- 317,857.00 £Increased by 3.47 %
- Est sale value
- 141,230.00 £Decreased by 7.64 %
- Average area rental value
- 791.00 £/moDecreased by 43.26 %
- Est letting value
- 0.00 £/moDecreased by 100.00 %
- Est rental Yield
- 2.99 %Decreased by 45.14 %
- Crime Rate
- 0.00 %
Agent Activity
Joules Estate Agency marked this listing as sold.
Joules Estate Agency created the listing.
Nearby Schools
| Name | Type | Ofsted | Distance |
|---|---|---|---|
| St Philip'S Catholic Primary School | Voluntary Aided School | Good | 0.64 KM |
| Fairway Primary School | Community School | Good | 0.69 KM |
| Castle Hill High School | Community Special School | Outstanding | 0.82 KM |
| Lisburne School | Community Special School | Outstanding | 1.10 KM |
| Dial Park Primary School | Community School | Good | 1.23 KM |
Images
Nearby Streets
| Name | Average Price | Average Sqft | Distance |
|---|---|---|---|
| Gipsy Lane | £ 0 | 0 | 0.00 KM |
| Elder Close | £ 0 | 0 | 0.00 KM |
| Radford Close | £ 0 | 0 | 0.00 KM |
| Filey Road | £ 325,000 | 0 | 0.00 KM |
| Crosswaite Road | £ 165,000 | 0 | 0.00 KM |
Nearby Transport
| Name | NLC | TLC | Distance |
|---|---|---|---|
| Woodsmoor | 2773 | WSR | 2.34 KM |
| Hazel Grove | 2768 | HAZ | 2.56 KM |
| Bredbury | 2779 | BDY | 3.08 KM |
| Davenport | 2770 | DVN | 3.15 KM |
| Brinnington | 2603 | BNT | 3.69 KM |
Nearby Listings
| Address | Price | Type | Score | Distance |
|---|---|---|---|---|
| Flat 4 Vernon Court, Marple Road, Offerton | £ 125,000 | BUY | 6 / 10 | 0.00 KM |
| Marple Road, Offerton, Stockport, SK2 5EL | £ 125,000 | BUY | 8 / 10 | 0.00 KM |
| Flat , Vernon Court, Marple Rd, Offerton, Stockport, Offerton | £ 140,000 | BUY | 7 / 10 | 0.01 KM |
| Vernon Court 47-4, Marple Road, Marple Road, Stockport | £ 135,000 | BUY | 7 / 10 | 0.01 KM |
| Flat , Vernon Court, Marple Rd, Offerton, Stockport, Offerton | £ 110,000 | BUY | 7 / 10 | 0.01 KM |
Nearby Properties
| Address | Price | Distance |
|---|---|---|
| 37 Marple Road | £ 175,000 | 0.00 KM |
| 59 Marple Road | £ 540,000 | 0.00 KM |
| 67 Marple Road | £ 307,900 | 0.00 KM |
| 43 Marple Road | £ 700,000 | 0.00 KM |
| 53 Marple Road | £ 278,000 | 0.00 KM |