haart says ..
Introducing this exceptional 5-bedroom detached residence, perfectly positioned in the highly sought-after area of Kesgrave
Property Oracle says ..
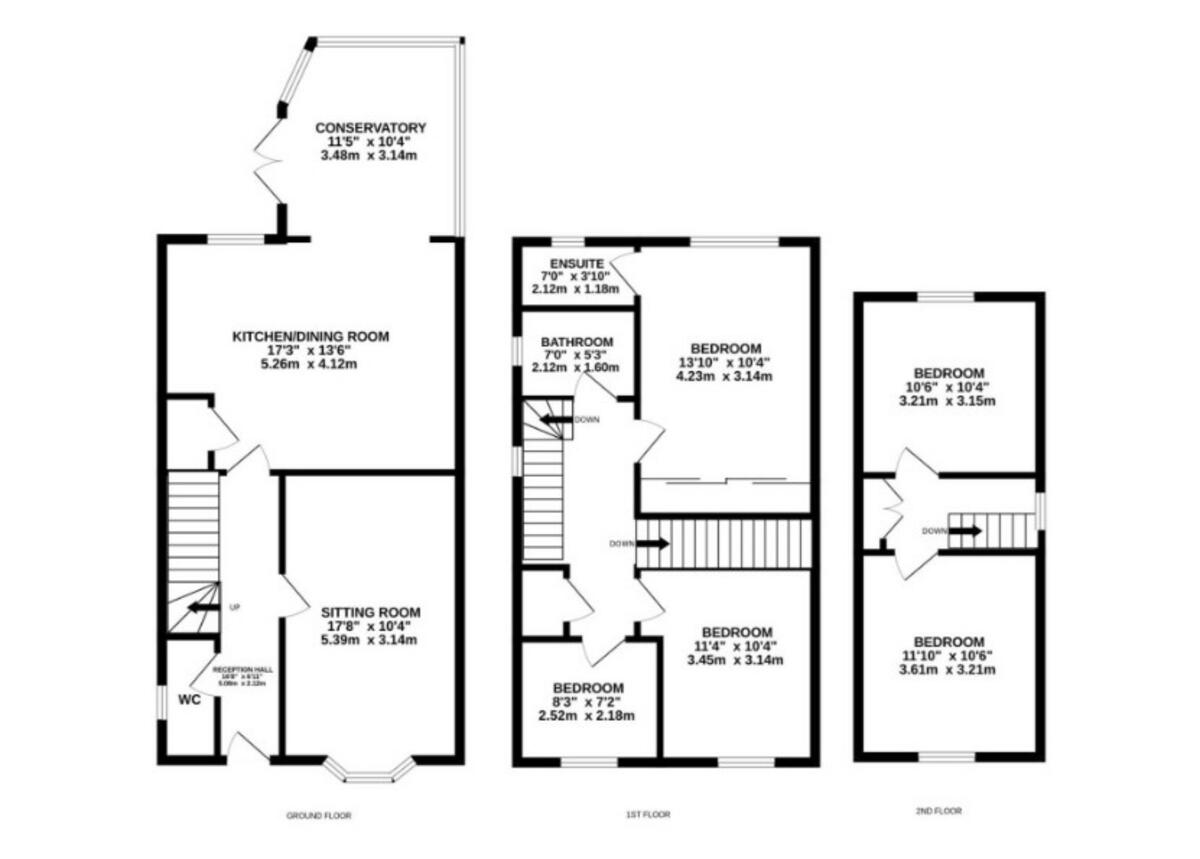
This five-bedroom detached house in Kesgrave, Suffolk is marketed by haart Ipswich and is listed at £440,000. The property boasts a modern interior with a well-equipped kitchen, two bathrooms, and five bedrooms, offering ample living space. The kitchen is contemporary, featuring grey cabinets and brick-effect tiling. The photos showcase a clean and tidy property, suggesting it is in good condition and would require minimal work before occupation. The presence of a garden, patio, and a covered seating area in the back garden provides external space for relaxation and entertaining.
Kesgrave’s reputation for good schools and relatively easy access to Ipswich is attractive. The location provides a balance between suburban tranquillity and convenient access to amenities and transport links. Potential buyers should consider the proximity to main roads and the distance to Ipswich town centre based on their individual needs and preferences. The price may seem somewhat high compared to some other properties in the area, but the larger size and modern fit-out of this property, as well as its location, may justify the higher price point. More information on the precise plot size would assist in a more detailed valuation.
Therefore, we give this property 6 / 10. *Disclaimer: This is our option and does constitute a recommendation or financial advice. Do your own research. *
- Price
- 7
- Condition
- 8
- Location
- 7
- Land
- 4
- Bedrooms
- 5
- Bathrooms
- 2
- Sqft (est)
- 1,752.04
The heatmap indicates the level of crime in the area. The color of the heatmap indicates the crime severity and recency.
Metrics Year-on-Year
- Average area value
- 417,115.00 £Increased by 15.53 %
- Est sale value
- 706,072.12 £Increased by 0.25 %
- Average area rental value
- 1,184.00 £/moIncreased by 3.59 %
- Est letting value
- 1,752.04 £/moUnchanged by 0.00 %
- Est rental Yield
- 3.41 %Decreased by 10.26 %
- Crime Rate
- 26.00 %Unchanged by 0.00 %
Agent Activity
haart created the listing.
Nearby Schools
| Name | Type | Ofsted | Distance |
|---|---|---|---|
| Cedarwood Primary School | Community School | Good | 0.26 KM |
| Kesgrave Children'S Centre | Children's Centre | 0.83 KM | |
| Heath Primary School, Kesgrave | Community School | Good | 0.99 KM |
| Kesgrave High School | Academy Converter | Good | 1.14 KM |
| Gorseland Primary School | Community School | Outstanding | 2.64 KM |
Images
Nearby Streets
| Name | Average Price | Average Sqft | Distance |
|---|---|---|---|
| Doctor Watsons Lane | £ 1,195,000 | 0 | 0.00 KM |
| Monument Farm Road | £ 0 | 0 | 0.00 KM |
| Bodmin Close | £ 0 | 0 | 0.00 KM |
| Pilbroughs Walk | £ 235,000 | 0 | 0.00 KM |
Nearby Transport
| Name | NLC | TLC | Distance |
|---|---|---|---|
| Derby Road (Ipswich) | 7212 | DBR | 6.33 KM |
| Westerfield | 7226 | WFI | 8.53 KM |
| Woodbridge | 7228 | WDB | 9.40 KM |
Nearby Listings
| Address | Price | Type | Score | Distance |
|---|---|---|---|---|
| Walker Chase, IPSWICH | £ 440,000 | BUY | 6 / 10 | 0.00 KM |
| Walker Chase, IP5 | £ 195,000 | BUY | 7 / 10 | 0.04 KM |
| Walker Chase, Kesgrave | £ 570,000 | BUY | 8 / 10 | 0.04 KM |
| Walker Chase, Kesgrave | £ 165,000 | BUY | 6 / 10 | 0.04 KM |
| Wilkinson Drive, Kesgrave | £ 325,000 | BUY | 6 / 10 | 0.04 KM |
Nearby Properties
| Address | Price | Distance |
|---|---|---|
| 14 Walker Chase | £ 151,995 | 0.04 KM |
| 10 Walker Chase | £ 162,995 | 0.04 KM |
| 1 Walker Chase | £ 218,000 | 0.04 KM |
| 23 Walker Chase | £ 405,000 | 0.04 KM |
| 18 Walker Chase | £ 142,000 | 0.04 KM |