Gascoigne Halman says ..
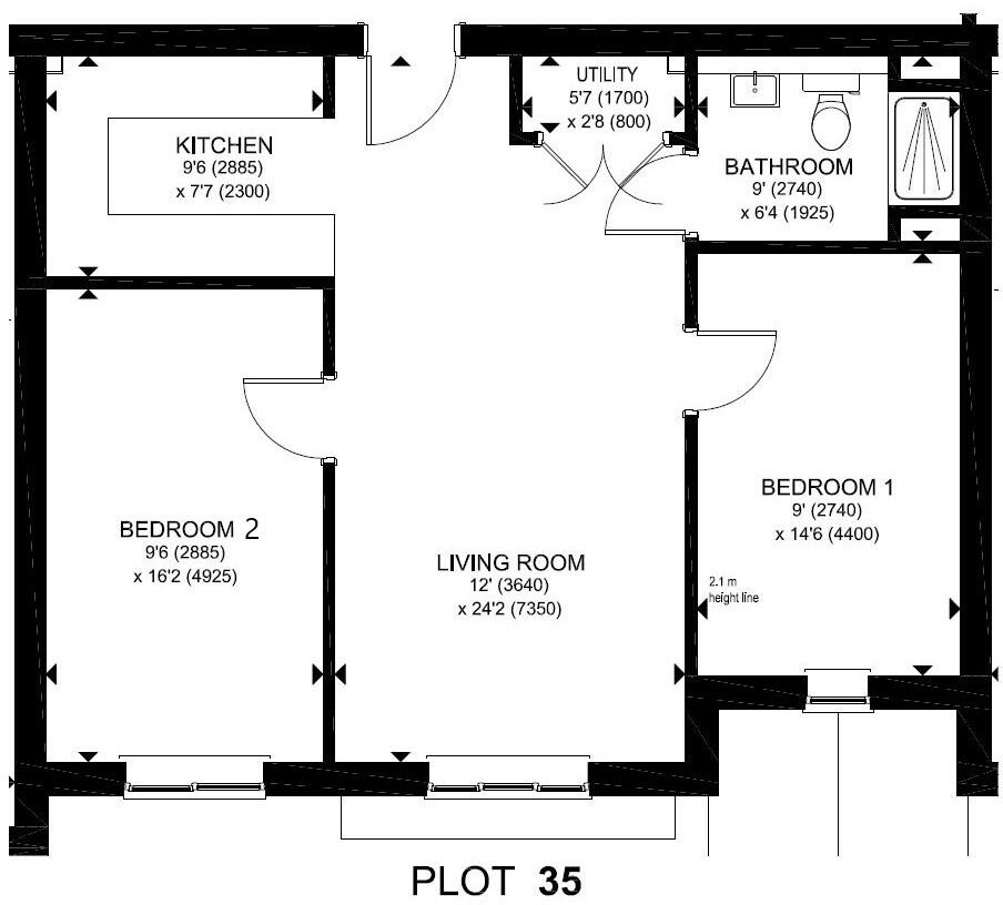
A spacious two bedroom luxury retirement apartment situated in the fantastic Minerva Place development, within walking distance of the thriving village centre of Lymm. Offering open plan living/dining/kitchen with integrated appliances, utility/storage cupboard. Beautifully kept communal gardens ...
Property Oracle says ..
Therefore, we give this property 6 / 10. *Disclaimer: This is our option and does constitute a recommendation or financial advice. Do your own research. *
- Price
- 5
- Condition
- 9
- Location
- 7
- Land
- 6
- Bedrooms
- 2
- Bathrooms
- 1
- Sqft (est)
- 719.67
The heatmap indicates the level of crime in the area. The color of the heatmap indicates the crime severity and recency.
Metrics Year-on-Year
- Average area value
- 415,495.00 £Increased by 10.96 %
- Est sale value
- 368,471.04 £Increased by 57.06 %
- Average area rental value
- 1,617.00 £/moIncreased by 34.75 %
- Est letting value
- 719.67 £/moUnchanged by 0.00 %
- Est rental Yield
- 4.67 %Increased by 21.30 %
- Crime Rate
- 7.00 %Unchanged by 0.00 %
from 374,440.00 £
from 234,612.42 £
from 1,200.00 £/mo
from 719.67 £/mo
from 3.85 %
from 7.00 %
Agent Activity
Gascoigne Halman created the listing.
Nearby Schools
| Name | Type | Ofsted | Distance |
|---|---|---|---|
| Lymm Children'S Centre | Children's Centre Linked Site | 0.34 KM | |
| Cherry Tree Primary School | Community School | Outstanding | 1.11 KM |
| Statham Primary School | Academy Converter | 1.47 KM | |
| Ravenbank Primary School | Academy Converter | 1.55 KM | |
| Bright Futures | Other Independent Special School | Outstanding | 2.37 KM |
Images
Nearby Streets
| Name | Average Price | Average Sqft | Distance |
|---|---|---|---|
| Meadow View | £ 250,000 | 0 | 0.00 KM |
| Rectory Gardens | £ 0 | 0 | 0.00 KM |
| The Poplars | £ 0 | 0 | 0.00 KM |
| Wayside Close | £ 750,000 | 0 | 0.00 KM |
| May Queen Field Drive | £ 0 | 0 | 0.00 KM |
Nearby Transport
| Name | NLC | TLC | Distance |
|---|---|---|---|
| Glazebrook | 2301 | GLZ | 5.59 KM |
| Birchwood | 2304 | BWD | 5.61 KM |
| Irlam | 2817 | IRL | 7.89 KM |
| Padgate | 2387 | PDG | 8.46 KM |
Nearby Listings
| Address | Price | Type | Score | Distance |
|---|---|---|---|---|
| Minerva Place, Lymm | £ 325,000 | BUY | 6 / 10 | 0.00 KM |
| Minerva Place, Lymm | £ 210,000 | BUY | 6 / 10 | 0.01 KM |
| Minerva Place, Lymm | £ 265,000 | BUY | 6 / 10 | 0.01 KM |
| Minerva Place, Lymm | £ 265,000 | BUY | 6 / 10 | 0.01 KM |
| Minerva Place, Whitbarrow Road, Lymm | £ 185,000 | BUY | Unknown | 0.04 KM |
Nearby Properties
| Address | Price | Distance |
|---|---|---|
| 18 Whitbarrow Road | £ 902,500 | 0.09 KM |
| 12 Whitbarrow Road | £ 1,650,000 | 0.09 KM |
| 21 Whitbarrow Road | £ 440,000 | 0.10 KM |
| 25 Whitbarrow Road | £ 220,000 | 0.10 KM |
| 14 Whitbarrow Road | £ 1,400,000 | 0.10 KM |