Angel Waterside, Graham Street, Islington, London, N1
By Scotts
£ 750,000
Reviews
3 out of 5 stars
Scotts says ..
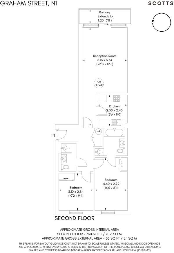
A contemporary two-bedroom, two-bathroom apartment fronting the picturesque City Road Basin, offering a sleek modern design and a wealth of amenities. This secure, concierge-serviced development boasts a spacious balcony with stunning water views, perfectly blending comfort and tranquility within...
Property Oracle says ..
This is a modern two-bedroom apartment in a sought-after Islington location. The property benefits from a balcony with canal views. While it doesn’t have a garden, its location near transportation and schools makes it appealing. The condition appears good, and the price is in line with the local market, although slightly above the average price per square foot.
Therefore, we give this property 6 / 10. *Disclaimer: This is our option and does constitute a recommendation or financial advice. Do your own research. *
- Price
- 6
- Condition
- 8
- Location
- 8
- Land
- 3
- Bedrooms
- 2
- Bathrooms
- 2
- Sqft (est)
- 618.53
The heatmap indicates the level of crime in the area. The color of the heatmap indicates the crime severity and recency.
Metrics Year-on-Year
- Average area value
- 489,766.00 £Increased by 6.36 %
- Est sale value
- 428,641.29 £Increased by 54.34 %
- Average area rental value
- 2,264.00 £/moIncreased by 11.14 %
- Est letting value
- 1,855.59 £/moIncreased by 200.00 %
- Est rental Yield
- 5.55 %Increased by 4.52 %
- Crime Rate
- 4.00 %Unchanged by 0.00 %
Agent Activity
Scotts created the listing.
Nearby Schools
| Name | Type | Ofsted | Distance |
|---|---|---|---|
| Hanover Primary School | Community School | Good | 0.25 KM |
| Moreland Primary School | Community School | Good | 0.34 KM |
| Moreland Children'S Centre | Children's Centre | 0.36 KM | |
| Packington Children'S Centre | Children's Centre | 0.55 KM | |
| Richard Cloudesley School | Community Special School | Outstanding | 0.58 KM |
Images
Nearby Streets
| Name | Average Price | Average Sqft | Distance |
|---|---|---|---|
| Saint Peter's Street | £ 0 | 0 | 0.00 KM |
| Macclesfield Road | £ 0 | 0 | 0.00 KM |
| President Street | £ 425,000 | 0 | 0.00 KM |
| Baldwin Terrace | £ 0 | 0 | 0.00 KM |
| New Charles Street | £ 0 | 0 | 0.00 KM |
Nearby Transport
| Name | NLC | TLC | Distance |
|---|---|---|---|
| Essex Road | 6004 | EXR | 1.10 KM |
| Old Street | 6003 | OLD | 1.16 KM |
| Farringdon | 577 | ZFD | 1.46 KM |
| Moorgate | 6005 | MOG | 1.69 KM |
| Highbury And Islington | 6009 | HHY | 1.83 KM |
Nearby Listings
| Address | Price | Type | Score | Distance |
|---|---|---|---|---|
| Angel Waterside, Graham Street, Islington, London, N1 | £ 850,000 | BUY | 7 / 10 | 0.00 KM |
| Angel Waterside, Graham Street, Islington, London, N1 | £ 750,000 | BUY | 6 / 10 | 0.00 KM |
| Angel Waterside, Graham Street, Islington, N1 | £ 750,000 | BUY | Unknown | 0.01 KM |
| Angel Waterside, Graham Street, London, N1 | £ 380,000 | BUY | 5 / 10 | 0.03 KM |
| Graham Street, Islington | £ 25,000 | BUY | 5 / 10 | 0.06 KM |
Nearby Properties
| Address | Price | Distance |
|---|---|---|
| 79 City Garden Row | £ 740,000 | 0.12 KM |
| 1 Haverstock Place | £ 277,000 | 0.13 KM |
| 10 Haverstock Place | £ 234,500 | 0.13 KM |
| 9 Haverstock Place | £ 160,000 | 0.13 KM |
| 5 Haverstock Place | £ 160,000 | 0.13 KM |