Tavern Park, Forden, Welshpool
By Halls Estate Agents
£ 185,000
Reviews
3 out of 5 stars
Halls Estate Agents says ..
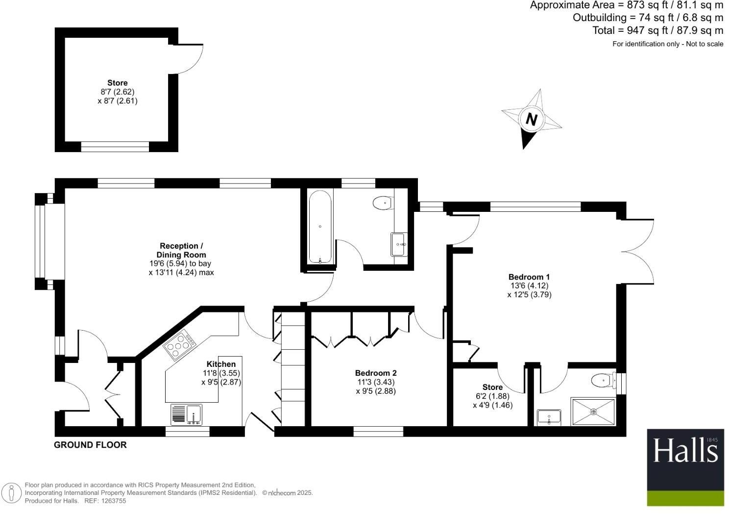
Over 50's - Situated on one of the largest plots on Tavern Park, this large two bedroom detached bungalow offers spacious living accommodation finished to a high standard with farmland views to the rear. The property benefits from off road parking for 3 cars, EV charger, gas fired central heating...
Property Oracle says ..
This property is a 2 bedroom, 2 bathroom mobile home located in Forden, Powys. It is listed at £185,000 with a plot size of 947 sqft and internal living space of 684 sqft. The average house price in the area is £342,050, with an average price per sqft of £272. This mobile home is significantly smaller than the average property in the area. The property appears to be in good condition and well-maintained based on the provided images. It benefits from a patio area, which is a desirable feature. The location is in a rural setting, with a train station approximately 7km away. There are several primary schools within a reasonable distance. The price seems reasonable in comparison to other mobile homes in the area, although it is higher than some nearby properties. However, the condition and size of the property should be considered.
Therefore, we give this property 7 / 10. *Disclaimer: This is our option and does constitute a recommendation or financial advice. Do your own research. *
- Price
- 7
- Condition
- 9
- Location
- 7
- Land
- 6
- Bedrooms
- 2
- Bathrooms
- 2
- Sqft (est)
- 684.17
- Lot (est)
- 947.00
The heatmap indicates the level of crime in the area. The color of the heatmap indicates the crime severity and recency.
Metrics Year-on-Year
- Average area value
- 311,704.00 £Increased by 34.17 %
- Est sale value
- 250,406.22 £Increased by 10.57 %
- Average area rental value
- 1,067.00 £/moDecreased by 19.35 %
- Est letting value
- 684.17 £/moUnchanged by 0.00 %
- Est rental Yield
- 4.11 %Decreased by 39.82 %
- Crime Rate
- 361.00 %Unchanged by 0.00 %
Agent Activity
Halls Estate Agents created the listing.
Nearby Schools
| Name | Type | Ofsted | Distance |
|---|---|---|---|
| Forden C.I.W. School | Welsh Establishment | 1.67 KM | |
| Montgomery C.I.W. School | Welsh Establishment | 3.74 KM | |
| Berriew C.P. School | Welsh Establishment | 5.76 KM | |
| Welshpool Church In Wales Primary School | Welsh Establishment | 6.85 KM | |
| Leighton C.P. School | Welsh Establishment | 6.90 KM |
Images
Nearby Streets
| Name | Average Price | Average Sqft | Distance |
|---|---|---|---|
| Tavern Park | £ 0 | 0 | 0.00 KM |
| St. Michael's Crescent | £ 0 | 0 | 0.00 KM |
| Can-y-Lan Oaklands | £ 0 | 0 | 0.00 KM |
Nearby Transport
| Name | NLC | TLC | Distance |
|---|---|---|---|
| Welshpool | 4434 | WLP | 7.06 KM |
Nearby Listings
| Address | Price | Type | Score | Distance |
|---|---|---|---|---|
| Welshpool, Wales, SY21 | £ 142,500 | BUY | 6 / 10 | 0.00 KM |
| Tavern Park, Forden, Welshpool | £ 185,000 | BUY | 7 / 10 | 0.00 KM |
| 91a Two Bed Stately Albion Goodwood , Tavern Park, Forden, Welshpool, Powys, SY21 8FG | £ 167,950 | BUY | 7 / 10 | 0.05 KM |
| 27 Tavern Park, 42x20 Stately Woburn, Tavern Park, Forden, Welshpool, Powys, SY21 8FG | £ 155,000 | BUY | 7 / 10 | 0.05 KM |
| 92 Tavern Park, Stately Hardwick, Tavern Park, Forden, Welshpool, Powys, SY21 8FG | £ 169,950 | BUY | 6 / 10 | 0.05 KM |
Nearby Properties
| Address | Price | Distance |
|---|---|---|
| 1 Maes Y Felin | £ 158,000 | 0.59 KM |
| 12 St Michaels Crescent | £ 82,000 | 1.26 KM |
| 13 St Michaels Crescent | £ 158,500 | 1.26 KM |
| 23 St Michaels Crescent | £ 118,000 | 1.27 KM |
| 32 St Michaels Crescent | £ 131,000 | 1.27 KM |