Southon House, Station Approach, Edenbridge
By Milestone Sales & Lettings Ltd
£ 1,400,000
Reviews
2 out of 5 stars
Milestone Sales & Lettings Ltd says ..
Milestone Group is Delighted to Present Southon House in Edenbridge: A Prime Freehold Investment Opportunity Milestone Group is thrilled to introduce Southon House, a former office building reimagined into an exceptional investment opportunity, located at the heart of Edenbridge.
Property Oracle says ..
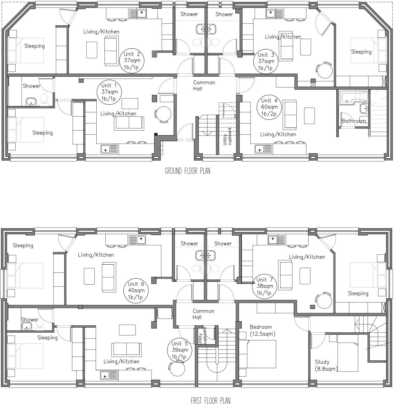
Southon House, located on Station Approach in Edenbridge, Kent, is a large property listed for £1,400,000. The property’s proximity to Edenbridge train station is a major advantage, providing convenient access to transport links. The surrounding area includes a mix of commercial and residential properties. The provided images show the exterior of the building and suggest it is in reasonable condition, though some improvements may be needed. Importantly, there are no photos or details showing the interior which could significantly affect the overall value. The listing indicates that it was previously used as an office block, which has now been converted. However, the nature of the conversion and any potential structural upgrades required are unknown. The property boasts eight bedrooms and seven bathrooms. The lack of plot size details is a noticeable omission, suggesting limited garden space. While the location is convenient and the size substantial, a lack of interior photographs and precise plot size details means that this evaluation is limited. Further information on the internal layout, condition, and plot size would be essential for a thorough and more precise assessment of its value. More comparable property information is also lacking, preventing an in-depth local market analysis for fair pricing assessment.
Therefore, we give this property 5 / 10. *Disclaimer: This is our option and does constitute a recommendation or financial advice. Do your own research. *
- Price
- 7
- Condition
- 6
- Location
- 7
- Land
- 2
- Bedrooms
- 8
- Bathrooms
- 7
- Sqft (est)
- 3,471.36
The heatmap indicates the level of crime in the area. The color of the heatmap indicates the crime severity and recency.
Metrics Year-on-Year
- Average area value
- 1,145,000.00 £Increased by 51.85 %
- Est sale value
- 2,770,145.28 £Increased by 52.58 %
- Average area rental value
- 1,717.00 £/moDecreased by 6.07 %
- Est letting value
- 3,471.36 £/moUnchanged by 0.00 %
- Est rental Yield
- 1.80 %Decreased by 38.14 %
- Crime Rate
- 9.00 %Unchanged by 0.00 %
Agent Activity
Milestone Sales & Lettings Ltd created the listing.
Nearby Schools
| Name | Type | Ofsted | Distance |
|---|---|---|---|
| Edenbridge Primary School | Academy Sponsor Led | 0.13 KM | |
| Edenbridge Children'S Centre | Children's Centre | 0.16 KM | |
| The View School | Other Independent Special School | Requires improvement | 0.43 KM |
| Crockham Hill Church Of England Voluntary Controlled Primary School | Voluntary Controlled School | Good | 4.17 KM |
| Four Elms Primary School | Community School | Good | 4.35 KM |
Images
Nearby Streets
| Name | Average Price | Average Sqft | Distance |
|---|---|---|---|
| Regency Close | £ 0 | 0 | 0.00 KM |
| Moles Mead | £ 0 | 0 | 0.00 KM |
| Commerce Way | £ 0 | 0 | 0.00 KM |
| Wainhouse Close | £ 0 | 0 | 0.00 KM |
| Chestnut Close | £ 350,000 | 0 | 0.00 KM |
Nearby Transport
| Name | NLC | TLC | Distance |
|---|---|---|---|
| Edenbridge Town | 5359 | EBT | 0.26 KM |
| Edenbridge(Kent) | 5473 | EBR | 1.08 KM |
| Hever | 5417 | HEV | 3.92 KM |
| Cowden (Kent) | 5409 | CWN | 7.00 KM |
| Lingfield | 5369 | LFD | 8.37 KM |
Nearby Listings
| Address | Price | Type | Score | Distance |
|---|---|---|---|---|
| Southon House, Station Approach, Edenbridge | £ 1,400,000 | BUY | 5 / 10 | 0.00 KM |
| Goods Yard, Edenbridge | £ 550,000 | BUY | 7 / 10 | 0.01 KM |
| Goods Yard, Edenbridge | £ 700,000 | BUY | 7 / 10 | 0.01 KM |
| Goods Yard, Edenbridge | £ 550,000 | BUY | 7 / 10 | 0.01 KM |
| Goods Yard, Edenbridge | £ 700,000 | BUY | 7 / 10 | 0.01 KM |
Nearby Properties
| Address | Price | Distance |
|---|---|---|
| 5 Penlee Close | £ 485,000 | 0.08 KM |
| 4 Penlee Close | £ 240,000 | 0.08 KM |
| 23 Penlee Close | £ 393,000 | 0.08 KM |
| 6 Penlee Close | £ 250,000 | 0.08 KM |
| 17 Penlee Close | £ 485,000 | 0.08 KM |