Penffynnon House, Long Street, Newport
By John Williams Land and Estates
£ 395,000
Reviews
1 out of 5 stars
John Williams Land and Estates says ..
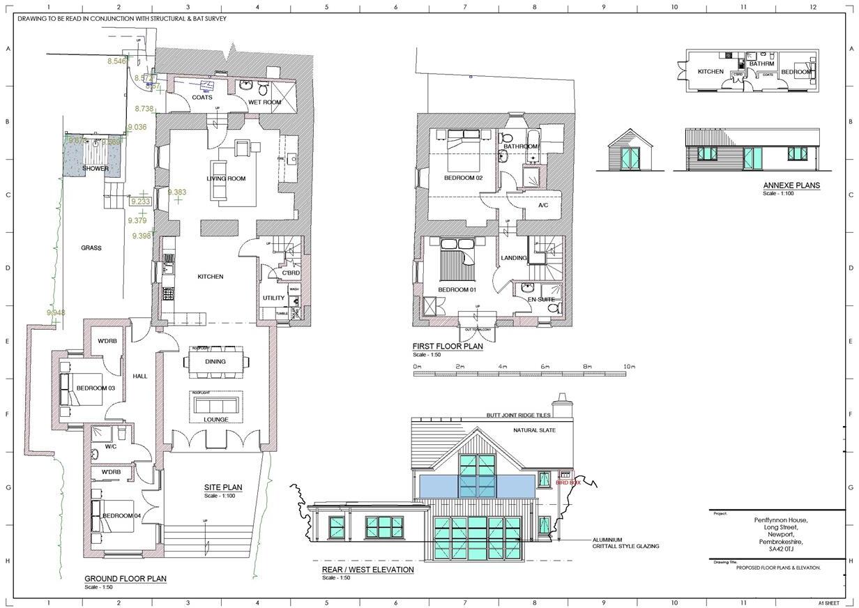
A rare opportunity to purchase an exciting development project with a great deal of the time consuming initial work completed. Penffynnon House was originally constructed of rendered stone elevations beneath a pitched roof of tile on a large plot set well back from Long Street accessed vi (cont.)
Property Oracle says ..
Penffynnon House is a detached property situated on Long Street in Newport, Pembrokeshire. The property is listed at £395,000 and comprises 2 bedrooms and 1 bathroom across 400 sqft. The plot size is 0.00 sqft. The property requires extensive renovation. The images show significant damage and incomplete work throughout. Walls are damaged, floors are unfinished, and the overall condition suggests a considerable amount of work is required before the property is habitable. This impacts the condition score negatively. The presence of exposed stonework and wooden beams suggests the property may have period features, adding potential character once renovated. The property benefits from a garden, although it appears to be somewhat overgrown and in need of landscaping. The garden’s size is not explicitly stated, but the images suggest a relatively modest space. This is reflected in the land score. Considering the average price per sqft in the area is £192, and the list price is £395,000 for a 400 sqft property, the price per sqft is significantly higher than the average. Given the property’s poor condition and the need for substantial renovation, the asking price appears high in comparison to the average property price in the area. This impacts the price score. The lack of information on the average price per sqft for comparable properties in the immediate vicinity makes it difficult to provide a more precise assessment of the price. The proximity to Ysgol Bro Ingli, a local school, is a positive factor. However, without further information on the quality of the school or other amenities, a definitive assessment of the location is difficult.
Therefore, we give this property 3 / 10. *Disclaimer: This is our option and does constitute a recommendation or financial advice. Do your own research. *
- Price
- 3
- Condition
- 3
- Location
- 5
- Land
- 4
- Bedrooms
- 2
- Bathrooms
- 1
- Sqft (est)
- 400.00
The heatmap indicates the level of crime in the area. The color of the heatmap indicates the crime severity and recency.
Metrics Year-on-Year
- Average area value
- 311,242.00 £Decreased by 1.54 %
- Est sale value
- 124,000.00 £Increased by 28.10 %
- Average area rental value
- 592.00 £/moIncreased by 6.09 %
- Est letting value
- 0.00 £/mo
- Est rental Yield
- 2.28 %Increased by 7.55 %
- Crime Rate
- 115.00 %Unchanged by 0.00 %
Agent Activity
John Williams Land and Estates created the listing.
Nearby Schools
| Name | Type | Ofsted | Distance |
|---|---|---|---|
| Ysgol Bro Ingli | Welsh Establishment | 0.17 KM | |
| Ysgol Llanychllwydog | Welsh Establishment | 6.64 KM |
Images
Nearby Streets
| Name | Average Price | Average Sqft | Distance |
|---|---|---|---|
| Market Street | £ 0 | 0 | 0.00 KM |
| Lower St Mary's Street | £ 0 | 0 | 0.00 KM |
| Feidr Fach | £ 535,000 | 0 | 0.00 KM |
| Bridge Street | £ 0 | 0 | 0.00 KM |
| Cysgod y Dderwen | £ 0 | 0 | 0.00 KM |
Nearby Listings
| Address | Price | Type | Score | Distance |
|---|---|---|---|---|
| Tyrhibin Isaf, Morfa, Newport | £ 495,000 | BUY | 5 / 10 | 0.00 KM |
| Penffynnon House, Long Street, Newport | £ 395,000 | BUY | 3 / 10 | 0.00 KM |
| Long Street, Newport | £ 350,000 | BUY | 6 / 10 | 0.09 KM |
| Long Street, Newport, Pembrokeshire, SA42 | £ 325,000 | BUY | 5 / 10 | 0.10 KM |
| Cilhendre, Upper St. Mary Street, Newport | £ 595,000 | BUY | 6 / 10 | 0.13 KM |
Nearby Properties
| Address | Price | Distance |
|---|---|---|
| Penffynon | £ 75,000 | 0.10 KM |
| Glan Helyg | £ 81,000 | 0.10 KM |
| Angel House | £ 400,000 | 0.10 KM |
| Coed Y Glyn | £ 435,000 | 0.10 KM |
| 17 Long Street | £ 235,000 | 0.10 KM |