Duchess Walk, Tower Bridge
Dexters logo

Duchess Walk, Tower Bridge

By Dexters

£ 890,000

Reviews

3 out of 5 stars

Dexters says ..

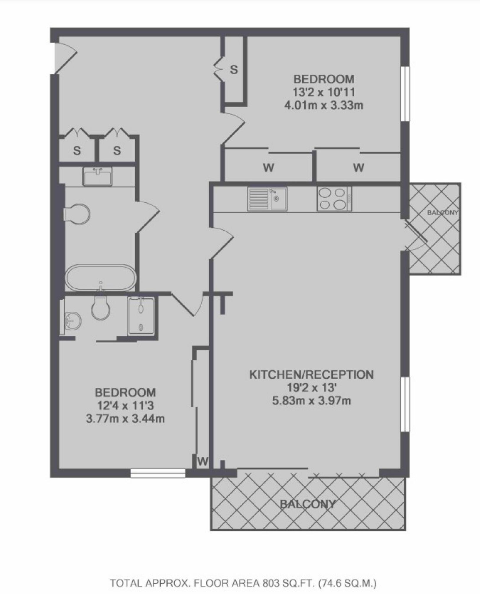
A very high spec two bedroom, two bathroom apartment at One Tower Bridge, with an open plan kitchen/ living room and two private balconies. There is a residents' health club with a gym, pool, sauna, steam room & 24 hour concierge

Property Oracle says ..

This property is a modern two-bedroom, two-bathroom flat located in the desirable St James’s area of Westminster, London. The flat is part of a modern development, as seen in the provided images, and boasts a contemporary design with high-quality finishes. The location is excellent, with easy access to Charing Cross station (0.32 KM) and other transport links, as well as numerous schools and amenities. The flat includes a private balcony offering views of the surrounding area. While the plot size is relatively small for London, it is typical for a flat in this location. The list price of £890,000 seems reasonable compared to the average price per square foot in the area (£2,196), especially given the modern condition and prime location. However, it is worth noting that the average property price in the area is significantly higher (£2,768,212), suggesting that this flat may be priced competitively for its size.

Therefore, we give this property 7 / 10. *Disclaimer: This is our option and does constitute a recommendation or financial advice. Do your own research. *

Price
8
Condition
10
Location
10
Land
3
Bedrooms
2
Bathrooms
2
Sqft (est)
575.00
Lot (est)
803.00

The heatmap indicates the level of crime in the area. The color of the heatmap indicates the crime severity and recency.

Metrics Year-on-Year

Average area value
1,598,970.00 £
Decreased by 20.58 %
from 2,013,297.00 £
Est sale value
837,775.00 £
Decreased by 26.53 %
from 1,140,225.00 £
Average area rental value
2,716.00 £/mo
Decreased by 1.74 %
from 2,764.00 £/mo
Est letting value
1,150.00 £/mo
Unchanged by 0.00 %
from 1,150.00 £/mo
Est rental Yield
2.04 %
Increased by 23.64 %
from 1.65 %
Crime Rate
6.00 %
Unchanged by 0.00 %
from 6.00 %

Agent Activity

  • Dexters created the listing.

Nearby Schools

NameTypeOfstedDistance
The Royal Ballet SchoolOther Independent School0.82 KM
West End Children'S CentreChildren's Centre Linked Site0.90 KM
Soho Parish Cofe Primary SchoolVoluntary Aided SchoolGood0.91 KM
Harris Westminster Sixth FormFree Schools 16 To 19Outstanding0.94 KM
Westminster Abbey Choir SchoolOther Independent School0.97 KM

Images

Nearby Streets

NameAverage PriceAverage SqftDistance
King Charles I Island £ 000.00 KM
St. Martin's Place £ 000.00 KM
St Martin's Street £ 000.00 KM
Cecil Court £ 000.00 KM
Leicester Square £ 000.00 KM

Nearby Transport

NameNLCTLCDistance
Charing Cross5143CHX0.32 KM
Waterloo5598WAT1.66 KM
Waterloo East5158WAE2.10 KM
Victoria5426VIC2.30 KM
Vauxhall5597VXH2.40 KM

Nearby Listings

AddressPriceTypeScoreDistance
Marsh Wall, London £ 1,015,000BUY6 / 100.00 KM
Brompton Road, Belgravia, SW3 £ 1,200,000BUYUnknown0.00 KM
Duchess Walk, Tower Bridge £ 890,000BUY7 / 100.00 KM
Mermaid Court, N4 1TR £ 304,995BUY5 / 100.00 KM
Lombard Square, Southlake Road, London £ 320,000BUY7 / 100.00 KM

Nearby Properties

AddressPriceDistance
39 Craven Street £ 1,650,0000.26 KM
31 Craven Street £ 1,700,0000.31 KM
25 Craven Street £ 4,050,0000.36 KM
30 Craven Street £ 600,0000.36 KM
2 Hobhouse Court £ 450,0000.38 KM