Redbridge Close, Rushey Platt Swindon
By Chappells
£ 365,000
Reviews
3 out of 5 stars
Chappells says ..
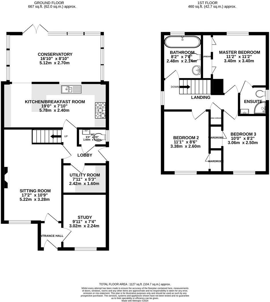
**SOLE SELLING AGENTS** Welcome to Redbridge Close, Swindon - a sought after cul-de-sac in the popular residential development of Rushey Platt. This delightful detached house has been greatly improved by the current owners including a tasteful garage conversion and the addition of a large conser...
Property Oracle says ..
This three-bedroom, two-bathroom detached house in Rushey Platt, Swindon, is presented in good condition. The interior photographs reveal a recently updated or renovated property. The kitchen and bathrooms look modern and well-maintained. The property benefits from a conservatory and a rear garden. The location is described as being in a desirable residential area with relatively easy access to the Swindon train station. However, more detailed information about nearby amenities, local schools’ Ofsted ratings, and the specific size of the plot would enhance the overall assessment. The provided nearby listing prices range significantly, but additional data on square footage and property features for those comparisons is missing, leading to uncertainty in establishing a definitive price-per-square-foot metric and a precise evaluation of the property’s price competitiveness.
Therefore, we give this property 6 / 10. *Disclaimer: This is our option and does constitute a recommendation or financial advice. Do your own research. *
- Price
- 6
- Condition
- 7
- Location
- 7
- Land
- 4
- Bedrooms
- 3
- Bathrooms
- 2
- Sqft (est)
- 1,126.98
The heatmap indicates the level of crime in the area. The color of the heatmap indicates the crime severity and recency.
Metrics Year-on-Year
- Average area value
- 487,124.00 £Increased by 94.35 %
- Est sale value
- 694,219.68 £Increased by 112.41 %
- Average area rental value
- 1,220.00 £/moIncreased by 6.46 %
- Est letting value
- 1,126.98 £/moUnchanged by 0.00 %
- Est rental Yield
- 3.01 %Decreased by 45.17 %
- Crime Rate
- 2.00 %Unchanged by 0.00 %
Agent Activity
Chappells marked this listing as sold.
Chappells created the listing.
Nearby Schools
| Name | Type | Ofsted | Distance |
|---|---|---|---|
| The Deanery Ce Academy | Free Schools | 0.95 KM | |
| Kingfisher Ce Academy | Free Schools | 1.02 KM | |
| Robert Le Kyng Primary School | Community School | Good | 1.04 KM |
| Even Swindon Primary School | Community School | Good | 1.44 KM |
| Utc Swindon | University Technical College | Requires improvement | 1.56 KM |
Images
Nearby Streets
| Name | Average Price | Average Sqft | Distance |
|---|---|---|---|
| Turner Street | £ 0 | 0 | 0.00 KM |
| Wishford Row | £ 0 | 0 | 0.00 KM |
| Canal Cottages | £ 0 | 0 | 0.00 KM |
| Prunus Walk | £ 0 | 0 | 0.00 KM |
| Deanery Drive | £ 0 | 0 | 0.00 KM |
Nearby Transport
| Name | NLC | TLC | Distance |
|---|---|---|---|
| Swindon (Wilts) | 3333 | SWI | 2.56 KM |
Nearby Listings
| Address | Price | Type | Score | Distance |
|---|---|---|---|---|
| Redbridge Close, Rushey Platt Swindon | £ 365,000 | BUY | 6 / 10 | 0.00 KM |
| Redbridge Close, Rushey Platt, Swindon | £ 270,000 | BUY | Unknown | 0.05 KM |
| Redbridge Close, Rushy Platt, Swindon, SN5 | £ 244,500 | BUY | Unknown | 0.06 KM |
| Sword Gardens, Swindon, SN5 | £ 569,995 | BUY | Unknown | 0.11 KM |
| Sword Gardens, Rushey Platt, Swindon | £ 450,000 | BUY | Unknown | 0.13 KM |
Nearby Properties
| Address | Price | Distance |
|---|---|---|
| 9 Redbridge Close | £ 207,500 | 0.06 KM |
| 3 Redbridge Close | £ 325,000 | 0.06 KM |
| 7 Redbridge Close | £ 151,950 | 0.06 KM |
| 10 Redbridge Close | £ 260,000 | 0.06 KM |
| 5 Redbridge Close | £ 194,000 | 0.06 KM |