Julian Marks says ..
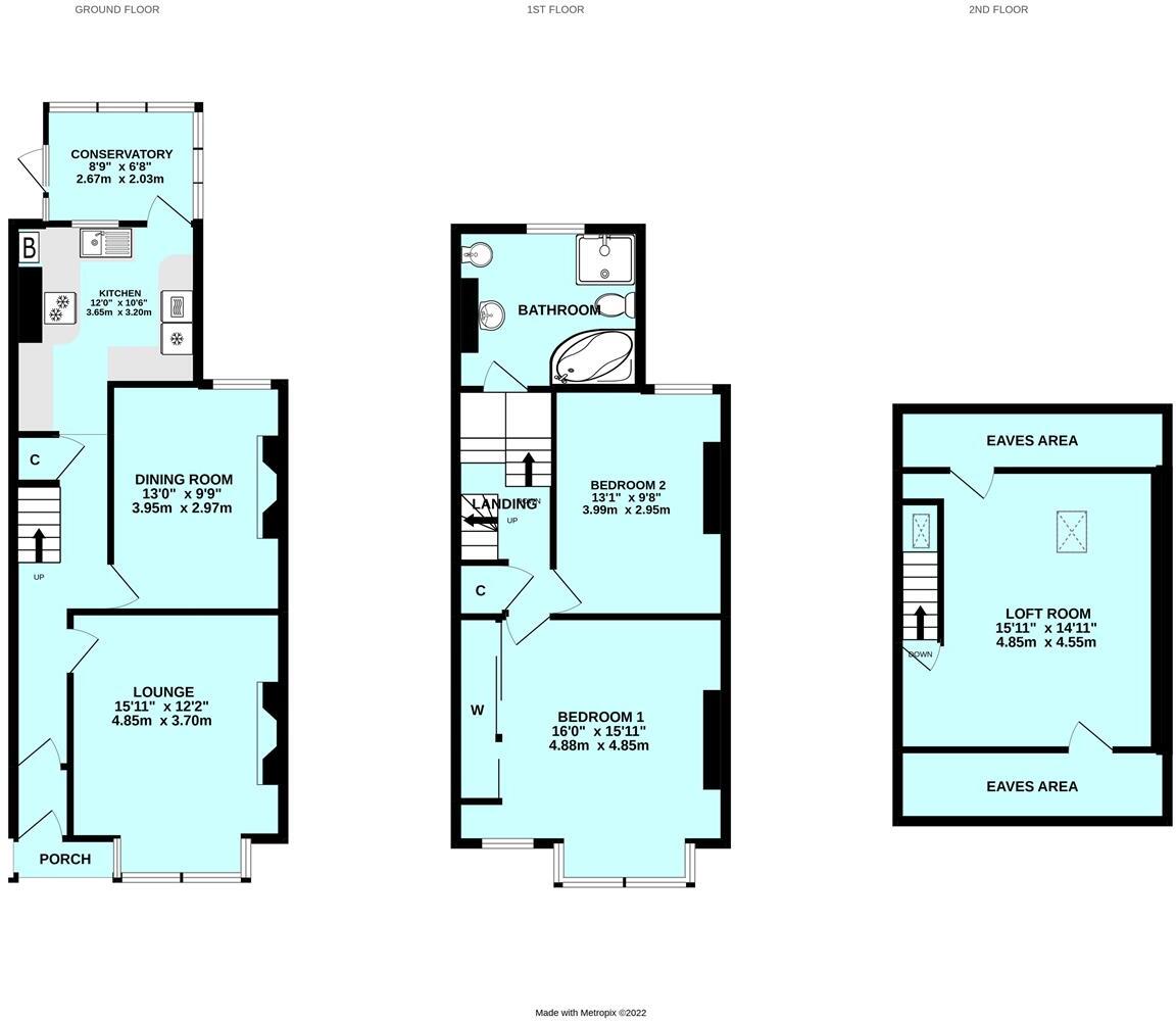
A well proportioned late Edwardian semi detached house with new double-glazing & gas/electric heating. The accommodation comprises a lounge, separate dining room, fitted kitchen, conservatory, 2 double bedrooms, potential to create 3, new fitted bathroom & spacious second floor loft room. There i...
Property Oracle says ..
This is a two-bedroom semi-detached house in Peverell, Plymouth. The property offers 1,076.18 sqft of living space. It has a bathroom and a rear garden. The property is in generally good condition, although the kitchen could use some updating. The attic has been converted. The property is located in a good location, close to schools and transportation. The asking price of £250,000 seems reasonable given the location, size, and condition of the property. It represents good value at £232 per square foot, compared to the local average of £343.
Therefore, we give this property 6 / 10. *Disclaimer: This is our option and does constitute a recommendation or financial advice. Do your own research. *
- Price
- 7
- Condition
- 7
- Location
- 7
- Land
- 6
- Bedrooms
- 2
- Bathrooms
- 1
- Sqft (est)
- 1,076.18
The heatmap indicates the level of crime in the area. The color of the heatmap indicates the crime severity and recency.
Metrics Year-on-Year
- Average area value
- 258,177.00 £Decreased by 6.64 %
- Est sale value
- 369,129.74 £Increased by 30.92 %
- Average area rental value
- 835.00 £/moDecreased by 21.37 %
- Est letting value
- 1,076.18 £/moUnchanged by 0.00 %
- Est rental Yield
- 3.88 %Decreased by 15.84 %
- Crime Rate
- 6.00 %Unchanged by 0.00 %
Agent Activity
Julian Marks created the listing.
Nearby Schools
| Name | Type | Ofsted | Distance |
|---|---|---|---|
| Devonport High School For Girls | Academy Converter | Good | 0.51 KM |
| Pennycross Primary School | Community School | Good | 0.61 KM |
| Popin Children'S Centre | Children's Centre | 0.70 KM | |
| Montpelier Primary School | Academy Converter | Good | 0.83 KM |
| King'S School | Other Independent School | 1.27 KM |
Images
Nearby Streets
| Name | Average Price | Average Sqft | Distance |
|---|---|---|---|
| Rosedale Avenue | £ 275,000 | 0 | 0.00 KM |
| St Martin's Avenue | £ 290,000 | 0 | 0.00 KM |
| Recreation Road | £ 335,000 | 0 | 0.00 KM |
| Saint Boniface Close | £ 140,000 | 0 | 0.00 KM |
| Lyndhurst Close | £ 370,000 | 0 | 0.00 KM |
Nearby Transport
| Name | NLC | TLC | Distance |
|---|---|---|---|
| Plymouth | 3580 | PLY | 1.89 KM |
| Devonport | 3579 | DPT | 3.12 KM |
| Dockyard (Devonport) | 3588 | DOC | 3.43 KM |
| Keyham | 3571 | KEY | 3.60 KM |
| St Budeaux Ferry Road | 3590 | SBF | 4.43 KM |
Nearby Listings
| Address | Price | Type | Score | Distance |
|---|---|---|---|---|
| Peverell, Plymouth | £ 250,000 | BUY | 6 / 10 | 0.00 KM |
| Outland Road, Plymouth | £ 110,000 | BUY | 4 / 10 | 0.04 KM |
| Beauchamp Crescent, Plymouth, PL2 3QE | £ 330,000 | BUY | 8 / 10 | 0.09 KM |
| Outland Road, Plymouth, Devon | £ 230,000 | BUY | 6 / 10 | 0.09 KM |
| Outland Road, Plymouth, Devon, PL2 | £ 154,000 | BUY | 6 / 10 | 0.09 KM |
Nearby Properties
| Address | Price | Distance |
|---|---|---|
| 181 Outland Road | £ 125,000 | 0.04 KM |
| 183 Outland Road | £ 114,950 | 0.04 KM |
| 16 Fairfield Avenue | £ 130,000 | 0.06 KM |
| 19 Fairfield Avenue | £ 220,000 | 0.06 KM |
| 9 Fairfield Avenue | £ 180,000 | 0.06 KM |