Mayfield Avenue, Northfields
By Sinton Andrews
£ 875,000
Reviews
3 out of 5 stars
Sinton Andrews says ..
Moments from Fielding Primary School, this Edwardian semi-detached house offers good room sizes, a South facing garden and no onward chain.
Property Oracle says ..
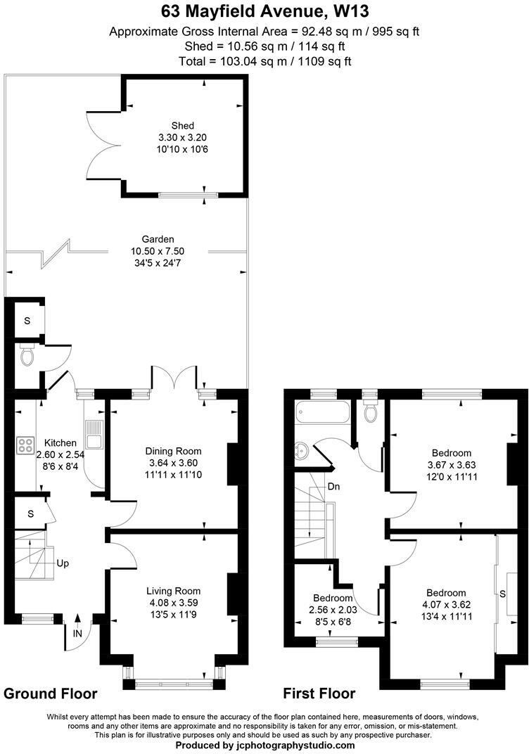
This property is located on Mayfield Avenue in Northfields, Ealing, which is close to several highly-rated schools such as Fielding Primary School (Outstanding Ofsted rating) and Elthorne Park High School (Outstanding Ofsted rating). The proximity to these schools is a significant advantage for families. The property also benefits from being relatively close to several public transport options, including West Ealing station. While the provided plot size is 0.00 sqft, the photos clearly show a substantial rear garden, suggesting a misrepresentation of the data. The interior photos show a property that is habitable but could benefit from some modernisation. The list price of £875,000 appears reasonable in comparison to other properties in the area, particularly considering the desirable location and the presence of a garden. However, a lack of precise square footage data for comparable properties makes a definitive price per square foot comparison impossible.
Therefore, we give this property 7 / 10. *Disclaimer: This is our option and does constitute a recommendation or financial advice. Do your own research. *
- Price
- 7
- Condition
- 6
- Location
- 9
- Land
- 8
- Bedrooms
- 3
- Bathrooms
- 1
- Sqft (est)
- 1,109.11
The heatmap indicates the level of crime in the area. The color of the heatmap indicates the crime severity and recency.
Metrics Year-on-Year
- Average area value
- 448,325.00 £Decreased by 13.51 %
- Est sale value
- 572,300.76 £Increased by 0.98 %
- Average area rental value
- 1,480.00 £/moDecreased by 11.32 %
- Est letting value
- 1,109.11 £/moUnchanged by 0.00 %
- Est rental Yield
- 3.96 %Increased by 2.59 %
- Crime Rate
- 3.00 %Unchanged by 0.00 %
Agent Activity
Sinton Andrews created the listing.
Nearby Schools
| Name | Type | Ofsted | Distance |
|---|---|---|---|
| Fielding Primary School | Community School | Outstanding | 0.20 KM |
| Elthorne Park High School | Community School | Outstanding | 0.93 KM |
| Seva Special School | Other Independent Special School | 0.99 KM | |
| Log Cabin Children'S Centre | Children's Centre | 1.02 KM | |
| St John'S Primary School | Community School | Good | 1.08 KM |
Images
Nearby Streets
| Name | Average Price | Average Sqft | Distance |
|---|---|---|---|
| Burns Road | £ 0 | 0 | 0.00 KM |
| Mayo Court | £ 739,950 | 0 | 0.00 KM |
| Boston Manor Road | £ 0 | 0 | 0.00 KM |
| Dean Villas | £ 0 | 0 | 0.00 KM |
| Dane Road | £ 575,000 | 0 | 0.00 KM |
Nearby Transport
| Name | NLC | TLC | Distance |
|---|---|---|---|
| West Ealing | 3188 | WEA | 1.23 KM |
| Drayton Green | 3099 | DRG | 1.82 KM |
| Brentford | 5552 | BFD | 2.14 KM |
| Hanwell | 3191 | HAN | 2.14 KM |
| Syon Lane | 5609 | SYL | 2.35 KM |
Nearby Listings
| Address | Price | Type | Score | Distance |
|---|---|---|---|---|
| Mayfield Avenue, Northfields | £ 875,000 | BUY | 7 / 10 | 0.00 KM |
| Mayfield Avenue, Ealing, London, W13 | £ 1,100,000 | BUY | 7 / 10 | 0.04 KM |
| Claygate Road, Northfields, Ealing, W13 | £ 1,300,000 | BUY | Unknown | 0.05 KM |
| Claygate Road, London, W13 | £ 725,000 | BUY | 5 / 10 | 0.06 KM |
| Balfour Road, Northfields | £ 940,000 | BUY | 7 / 10 | 0.11 KM |
Nearby Properties
| Address | Price | Distance |
|---|---|---|
| 51 Mayfield Avenue | £ 746,000 | 0.04 KM |
| 89 Mayfield Avenue | £ 905,000 | 0.04 KM |
| 67 Mayfield Avenue | £ 475,000 | 0.04 KM |
| 53 Mayfield Avenue | £ 452,500 | 0.04 KM |
| 61 Mayfield Avenue | £ 525,000 | 0.04 KM |