Fosse Road North, Leicester
By FRASER STRETTON LTD
£ 350,000
Reviews
2 out of 5 stars
FRASER STRETTON LTD says ..
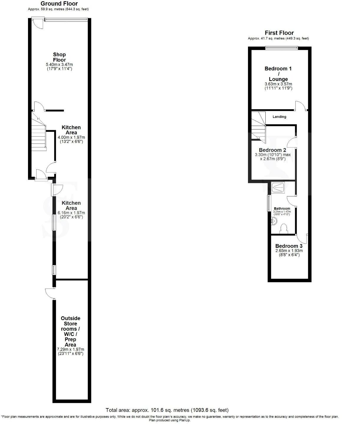
A fantastic opportunity to acquire a substantial freehold premises situated in a prominent position on the bustling Fosse Road North, Leicester. This versatile property is split between a well-established fish and chip shop on the ground floor and a self-contained, first floor apartment
Property Oracle says ..
This terraced property is located on Fosse Road North in Leicester. Nearby, there are several schools and transportation options, including the Leicester train station. Based on the images, the property appears to be a commercial property, previously operating as a “Chipstop” fish and chip shop. The interior shots show a commercial kitchen and serving area. The condition appears to be functional but could benefit from modernization. Given the property’s current layout as a commercial space, it may require significant renovation to convert it into a residential property. There is no clear indication of a garden or significant land included with the property. The average price per square foot in the area is £357. However, this property is listed at £350,000 with an unknown square footage. The average property price in the area is £522,019. Considering the property’s current commercial configuration and the potential renovation costs, the price may be reasonable if converted back to a residential property.
Therefore, we give this property 4 / 10. *Disclaimer: This is our option and does constitute a recommendation or financial advice. Do your own research. *
- Price
- 7
- Condition
- 4
- Location
- 7
- Land
- 1
- Bedrooms
- 2
- Bathrooms
- 1
- Sqft (est)
- 1,324.20
- Lot (est)
- 1,093.60
The heatmap indicates the level of crime in the area. The color of the heatmap indicates the crime severity and recency.
Metrics Year-on-Year
- Average area value
- 238,125.00 £Decreased by 3.17 %
- Est sale value
- 436,986.00 £Increased by 24.06 %
- Average area rental value
- 993.00 £/moIncreased by 19.93 %
- Est letting value
- 1,324.20 £/mo
- Est rental Yield
- 5.00 %Increased by 23.76 %
- Crime Rate
- 12.00 %Unchanged by 0.00 %
Agent Activity
FRASER STRETTON LTD created the listing.
Nearby Schools
| Name | Type | Ofsted | Distance |
|---|---|---|---|
| Fosse Mead Primary Academy | Academy Sponsor Led | 0.49 KM | |
| Castle Mead Academy | Free Schools | 0.76 KM | |
| West End Sure Start Children'S Centre | Children's Centre Linked Site | 0.85 KM | |
| Inglehurst Junior School | Community School | Good | 0.88 KM |
| King Richard Iii Infant And Nursery School | Community School | Good | 0.88 KM |
Images
Nearby Streets
| Name | Average Price | Average Sqft | Distance |
|---|---|---|---|
| Tewkesbury Street | £ 285,515 | 0 | 0.00 KM |
| Tudor Close | £ 0 | 0 | 0.00 KM |
| Grand Union Embankment | £ 0 | 0 | 0.00 KM |
| Storey Street | £ 150,000 | 0 | 0.00 KM |
| Bishop Meadow | £ 0 | 0 | 0.00 KM |
Nearby Transport
| Name | NLC | TLC | Distance |
|---|---|---|---|
| Leicester | 1947 | LEI | 3.08 KM |
| South Wigston | 1949 | SWS | 6.65 KM |
| Narborough | 1881 | NBR | 9.46 KM |
| Syston | 1900 | SYS | 9.83 KM |
Nearby Listings
| Address | Price | Type | Score | Distance |
|---|---|---|---|---|
| Fosse Road North, Leicester | £ 350,000 | BUY | 4 / 10 | 0.00 KM |
| Fosse Road North, Leicester, LE3 | £ 290,000 | BUY | 5 / 10 | 0.03 KM |
| 63 Paget Road, Leicester, LE3 5HN | £ 125,000 | BUY | 5 / 10 | 0.11 KM |
| Tetuan Road, Leicester, LE3 | £ 130,000 | BUY | 6 / 10 | 0.11 KM |
| Apartment 15, The Fosse Building, Tetuan Road, Leicester, Leicestershire, LE3 | £ 200,000 | BUY | 6 / 10 | 0.13 KM |
Nearby Properties
| Address | Price | Distance |
|---|---|---|
| 188 Fosse Road North | £ 55,000 | 0.00 KM |
| 182 Fosse Road North | £ 221,000 | 0.00 KM |
| 178 Fosse Road North | £ 145,000 | 0.00 KM |
| 210 Fosse Road North | £ 78,500 | 0.10 KM |
| 204 Fosse Road North | £ 106,000 | 0.10 KM |