BR
Saughall Massie Road, Upton, Wirral, CH49
By Bradshaw Farnham & Lea
£ 300,000
Reviews
3 out of 5 stars
Bradshaw Farnham & Lea says ..
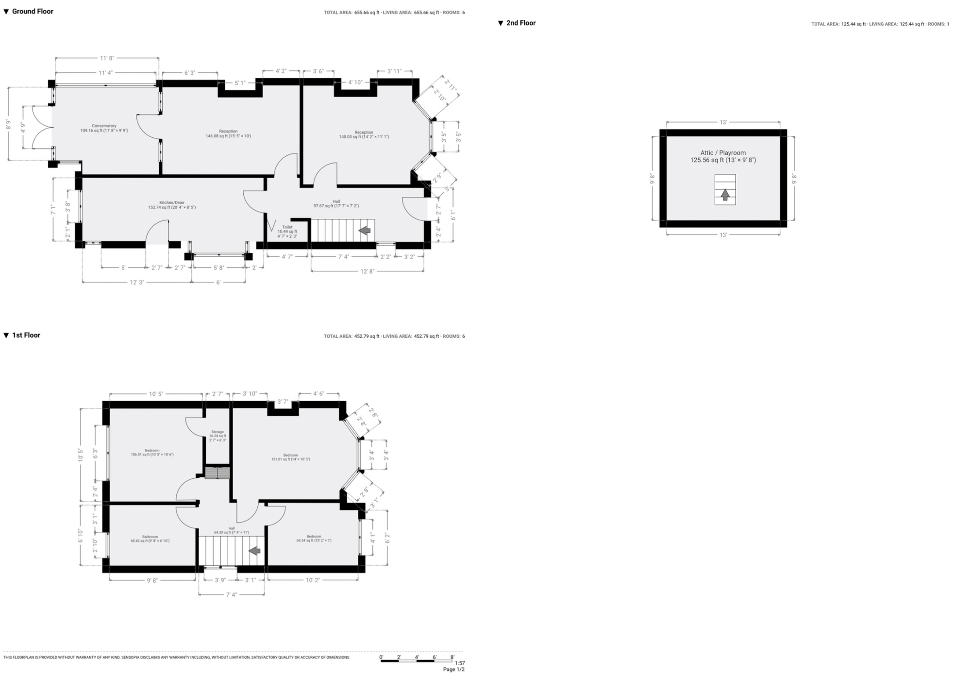
Situated in a highly sought-after residential neighbourhood, this charming 1930s semi-detached home offers a unique blend of character, space, and untapped potential. Perfectly suited to first-time buyers or those looking to tailor a property to their personal taste, this home presents a rare opp...
Property Oracle says ..
Therefore, we give this property 7 / 10. *Disclaimer: This is our option and does constitute a recommendation or financial advice. Do your own research. *
- Price
- 6
- Condition
- 7
- Location
- 7
- Land
- 8
- Bedrooms
- 3
- Bathrooms
- 2
The heatmap indicates the level of crime in the area. The color of the heatmap indicates the crime severity and recency.
Metrics Year-on-Year
- Average area value
- 217,778.00 £Decreased by 2.80 %
- Average area rental value
- 1,039.00 £/moIncreased by 54.15 %
- Est rental Yield
- 5.73 %Increased by 58.73 %
- Crime Rate
- 3.00 %Unchanged by 0.00 %
from 224,058.00 £
from 674.00 £/mo
from 3.61 %
from 3.00 %
Agent Activity
Bradshaw Farnham & Lea created the listing.
Nearby Schools
| Name | Type | Ofsted | Distance |
|---|---|---|---|
| Brookdale Primary School | Community School | Good | 1.16 KM |
| Moreton Christ Church Cofe Primary School | Academy Converter | 1.26 KM | |
| Greasby Children'S Centre | Children's Centre Linked Site | 1.26 KM | |
| Greasby Infant School | Community School | Good | 1.66 KM |
| Overchurch Junior School | Community School | Requires improvement | 1.71 KM |
Images
Nearby Streets
| Name | Average Price | Average Sqft | Distance |
|---|---|---|---|
| Hudson Place | £ 0 | 0 | 0.00 KM |
| Applegarth | £ 0 | 0 | 0.00 KM |
| Inglewood Avenue | £ 220,000 | 0 | 0.00 KM |
| Wastdale Court | £ 0 | 0 | 0.00 KM |
| Hill Grove | £ 0 | 0 | 0.00 KM |
Nearby Transport
| Name | NLC | TLC | Distance |
|---|---|---|---|
| Moreton (Merseyside) | 2151 | MRT | 2.17 KM |
| Leasowe | 2237 | LSW | 2.92 KM |
| Upton (Merseyside) | 2141 | UPT | 3.59 KM |
| Meols | 2254 | MEO | 4.36 KM |
| Bidston | 2136 | BID | 4.82 KM |
Nearby Listings
| Address | Price | Type | Score | Distance |
|---|---|---|---|---|
| Saughall Massie Road, Upton, Wirral, CH49 | £ 300,000 | BUY | 7 / 10 | 0.00 KM |
| Butterton Avenue, Saughall Massie, Wirral, CH49 | £ 190,000 | BUY | 6 / 10 | 0.06 KM |
| Butterton Avenue, Saughall Massie, Wirral | £ 230,000 | BUY | 7 / 10 | 0.09 KM |
| Saughall Massie Road, Upton, Wirral | £ 210,000 | BUY | 6 / 10 | 0.12 KM |
| Butterton Avenue, Saughall Massie, Wirral | £ 180,000 | BUY | 6 / 10 | 0.13 KM |
Nearby Properties
| Address | Price | Distance |
|---|---|---|
| 3 Wellbrae Close | £ 150,000 | 0.11 KM |
| 7 Wellbrae Close | £ 175,000 | 0.11 KM |
| 278 Saughall Massie Road | £ 46,950 | 0.13 KM |
| 294 Saughall Massie Road | £ 200,000 | 0.13 KM |
| 282 Saughall Massie Road | £ 56,300 | 0.13 KM |