BARN WITH PLANNING | STAPLETON BS16
HO

BARN WITH PLANNING | STAPLETON BS16

By Hollis Morgan

£ 25,000

Reviews

2 out of 5 stars

Hollis Morgan says ..

Hollis Morgan – LIVE ONLINE AUCTION – A Leasehold STONE BARN with RESI PLANNING to create a 1 BED HOUSE ( 861 Sq Ft ) set within the Bridge Farm Community Project.

Property Oracle says ..

This is a terraced barn located in Lockleaze, Bristol, with planning permission for conversion. The property is in poor condition and requires extensive renovation. It is situated near local schools and amenities but also close to the M32 motorway. The asking price of £25,000 represents a potential investment opportunity, reflecting the work needed to bring the property up to modern standards. The property has a plot size that allows for a garden. The location offers access to transportation, with Stapleton Road station nearby.

Therefore, we give this property 5 / 10. *Disclaimer: This is our option and does constitute a recommendation or financial advice. Do your own research. *

Price
9
Condition
2
Location
6
Land
5
Bedrooms
1
Bathrooms
1
Sqft (est)
480.93

The heatmap indicates the level of crime in the area. The color of the heatmap indicates the crime severity and recency.

Metrics Year-on-Year

Average area value
308,695.00 £
Decreased by 14.98 %
from 363,095.00 £
Est sale value
216,418.50 £
Decreased by 0.22 %
from 216,899.43 £
Average area rental value
2,053.00 £/mo
Increased by 3.06 %
from 1,992.00 £/mo
Est letting value
961.86 £/mo
Unchanged by 0.00 %
from 961.86 £/mo
Est rental Yield
7.98 %
Increased by 21.28 %
from 6.58 %
Crime Rate
4.00 %
Unchanged by 0.00 %
from 4.00 %

Agent Activity

  • Hollis Morgan created the listing.

Nearby Schools

NameTypeOfstedDistance
Glenfrome Primary SchoolCommunity SchoolGood0.29 KM
Colston'S SchoolOther Independent School0.58 KM
May Park Primary SchoolAcademy Sponsor Led0.87 KM
Trinity AcademyFree Schools1.06 KM
Stoke Park Primary SchoolAcademy Converter1.06 KM

Images

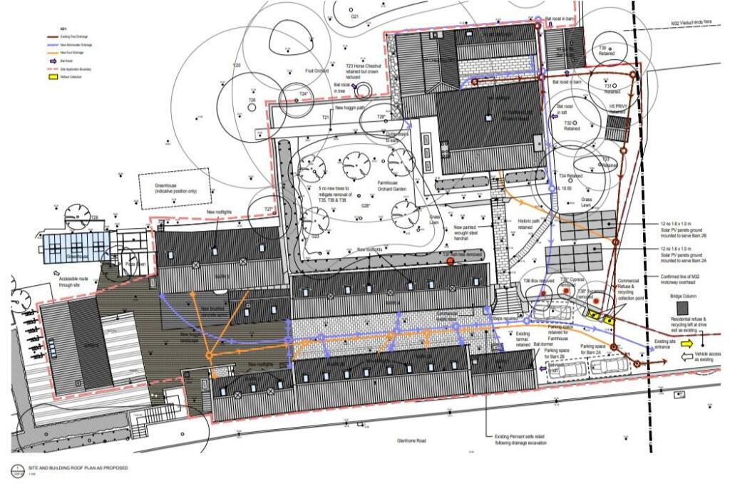
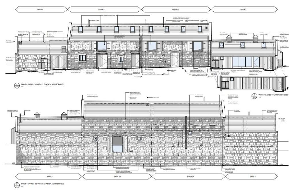
Barn 2a @ Bridge Farm, Bell Hill Stapleton, Bristo Barn 2a @ Bridge Farm, Bell Hill Stapleton, Bristo Barn 2a @ Bridge Farm, Bell Hill Stapleton, Bristo Barn 2a @ Bridge Farm, Bell Hill Stapleton, Bristo Barn 2a @ Bridge Farm, Bell Hill Stapleton, Bristo Barn 2a @ Bridge Farm, Bell Hill Stapleton, Bristo Barn 2a @ Bridge Farm, Bell Hill Stapleton, Bristo Barn 2a @ Bridge Farm, Bell Hill Stapleton, Bristo Barn 2a @ Bridge Farm, Bell Hill Stapleton, Bristo Barn 2a @ Bridge Farm, Bell Hill Stapleton, Bristo Barn 2a @ Bridge Farm, Bell Hill Stapleton, Bristo Barn 2a @ Bridge Farm, Bell Hill Stapleton, Bristo Barn 2a @ Bridge Farm, Bell Hill Stapleton, Bristo Barn 2a @ Bridge Farm, Bell Hill Stapleton, Bristo Barn 2a @ Bridge Farm, Bell Hill Stapleton, Bristo Barn 2a @ Bridge Farm, Bell Hill Stapleton, Bristo Barn 2a @ Bridge Farm, Bell Hill Stapleton, Bristo Proposed Development @ Bridge Farm Proposed Development @ Bridge Hollis Morgan Live Online Land and Property Auctio Hollis Morgan Live Online Auctions How to Register

Nearby Streets

NameAverage PriceAverage SqftDistance
Heath Road £ 420,00000.00 KM
Sandy Lane £ 000.00 KM
Stapleton Close £ 000.00 KM
Coombe Road £ 000.00 KM
Park Road £ 000.00 KM

Nearby Transport

NameNLCTLCDistance
Stapleton Road3250SRD1.38 KM
Lawrence Hill3225LWH2.34 KM
Filton Abbey Wood3235FIT2.92 KM
Montpelier3203MTP3.28 KM
Bristol Temple Meads3231BRI3.99 KM

Nearby Listings

AddressPriceTypeScoreDistance
BARN WITH PLANNING | STAPLETON BS16 £ 25,000BUY5 / 100.00 KM
BARN WITH PLANNING | STAPLETON BS16 £ 25,000BUYUnknown0.00 KM
BARN WITH PLANNING | STAPLETON BS16 £ 20,000BUY5 / 100.01 KM
BARN WITH PLANNING | STAPLETON BS16 £ 25,000BUY5 / 100.09 KM
BARN WITH PLANNING | STAPLETON BS16 £ 25,000BUY5 / 100.09 KM

Nearby Properties

AddressPriceDistance
70 Cottrell Road £ 176,0000.18 KM
65 Cottrell Road £ 189,9500.18 KM
50 Cottrell Road £ 420,0000.18 KM
57 Cottrell Road £ 161,0000.18 KM
71 Cottrell Road £ 250,0000.18 KM