EweMove says ..
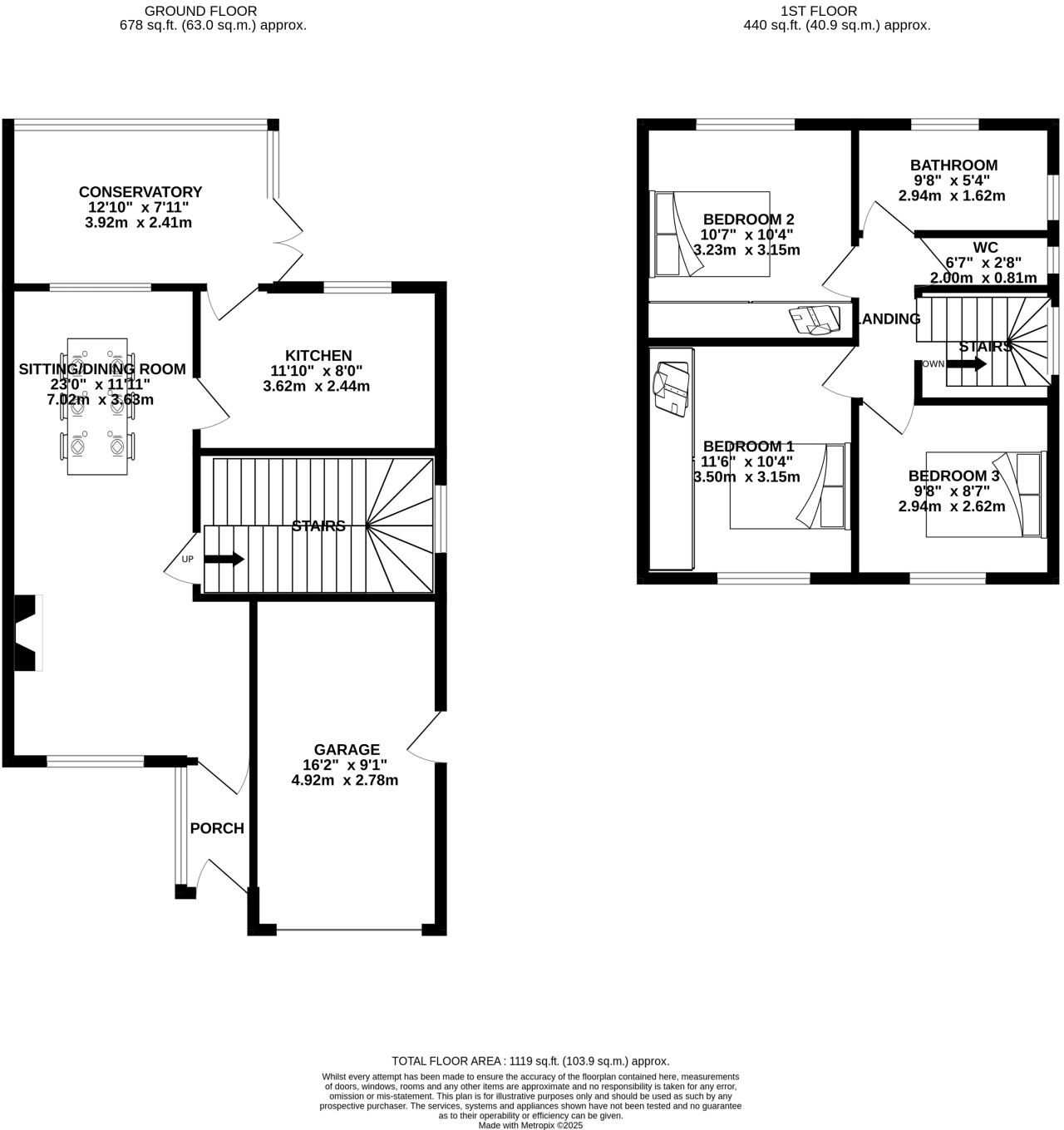
Nestled in the heart of Paulton, this exquisite three bedroom semi-detached property has everything a family could desire. This home has been cherished and excellently maintained by the same family for over five decades and is now ready for its next chapter. Entering ...
Property Oracle says ..
Therefore, we give this property 6 / 10. *Disclaimer: This is our option and does constitute a recommendation or financial advice. Do your own research. *
- Price
- 6
- Condition
- 7
- Location
- 7
- Land
- 7
- Bedrooms
- 3
- Bathrooms
- 1
- Sqft (est)
- 998.57
The heatmap indicates the level of crime in the area. The color of the heatmap indicates the crime severity and recency.
Metrics Year-on-Year
- Average area value
- 309,971.00 £Decreased by 5.67 %
- Est sale value
- 292,581.01 £Increased by 14.01 %
- Average area rental value
- 1,283.00 £/moIncreased by 17.81 %
- Est letting value
- 998.57 £/mo
- Est rental Yield
- 4.97 %Increased by 24.87 %
- Crime Rate
- 14.00 %Unchanged by 0.00 %
from 328,587.00 £
from 256,632.49 £
from 1,089.00 £/mo
from 0.00 £/mo
from 3.98 %
from 14.00 %
Agent Activity
EweMove created the listing.
Nearby Schools
| Name | Type | Ofsted | Distance |
|---|---|---|---|
| Paulton Children'S Centre | Children's Centre | 1.08 KM | |
| Paulton Infant School | Academy Converter | 1.10 KM | |
| Paulton Junior School | Community School | Outstanding | 1.10 KM |
| High Littleton Cofe Vc Primary School | Academy Converter | 1.53 KM | |
| Farrington Gurney Church Of England Primary School | Academy Converter | Good | 2.09 KM |
Images
Nearby Streets
| Name | Average Price | Average Sqft | Distance |
|---|---|---|---|
| Woodview | £ 0 | 0 | 0.00 KM |
| New Town | £ 0 | 0 | 0.00 KM |
| Park Close | £ 0 | 0 | 0.00 KM |
| Caxton Close | £ 0 | 0 | 0.00 KM |
| Elm Road | £ 275,000 | 0 | 0.00 KM |
Nearby Listings
| Address | Price | Type | Score | Distance |
|---|---|---|---|---|
| Woodview, Paulton | £ 325,000 | BUY | 6 / 10 | 0.00 KM |
| Woodview, Paulton | £ 289,950 | BUY | 6 / 10 | 0.01 KM |
| Springhill Close, Paulton | £ 350,000 | BUY | 7 / 10 | 0.13 KM |
| Development Land at Farrington Road, Paulton | £ 425,000 | BUY | 4 / 10 | 0.27 KM |
| Hallatrow Road, Paulton | £ 325,000 | BUY | 6 / 10 | 0.33 KM |
Nearby Properties
| Address | Price | Distance |
|---|---|---|
| 7 Woodview | £ 165,000 | 0.01 KM |
| 22 Woodview | £ 177,000 | 0.01 KM |
| 20 Woodview | £ 173,000 | 0.01 KM |
| 3 Woodview | £ 168,000 | 0.01 KM |
| 1 Woodview | £ 152,000 | 0.01 KM |