Denziloe Avenue, Hillingdon, Uxbridge
By Lakin & Co
£ 315,000
Reviews
3 out of 5 stars
Lakin & Co says ..
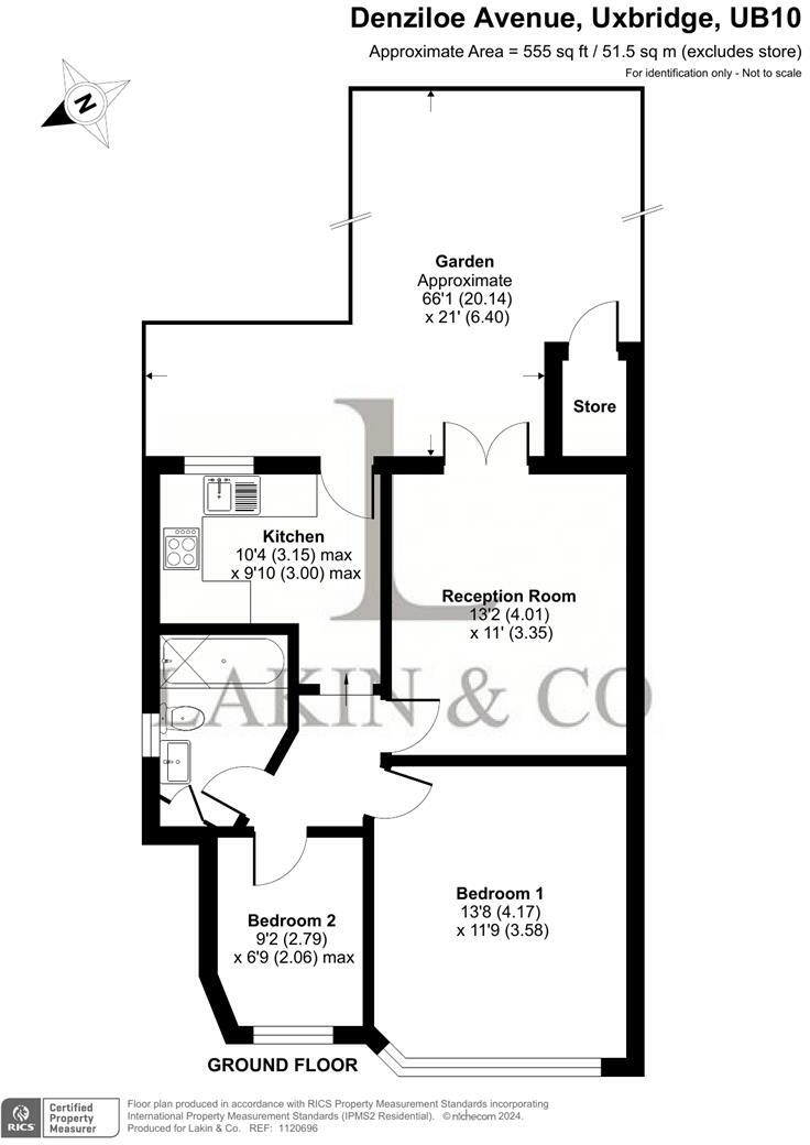
A well presented TWO bedroom ground floor FREEHOLD maisonette with own private rear garden and off street parking offered to the market with NO upper chain. The property briefly comprises; entrance front door leading into a well presented fitted kitchen with wall & base units, large livi...
Property Oracle says ..
This two-bedroom maisonette in Hillingdon, Uxbridge, is listed at £315,000. The property boasts a modern, well-maintained interior, including an updated kitchen and bathroom, as shown in the provided images. The living area appears spacious enough for a family, and the presence of a private rear garden is a desirable feature for this type of property. The location in Hillingdon offers convenient access to several schools, with some rated good or outstanding by Ofsted. Transport links are also positive, with relatively close proximity to West Drayton and West Ruislip stations, providing access to rail and underground networks. However, the property’s plot size is unclear, a key factor for any potential buyer. The average price of similar properties in the area makes the asking price competitive, although additional information on the specifics of the plot size, and the exact dimensions of the property would clarify the valuation. The overall condition of the property is good, but minor improvements may enhance its value.
Therefore, we give this property 6 / 10. *Disclaimer: This is our option and does constitute a recommendation or financial advice. Do your own research. *
- Price
- 7
- Condition
- 6
- Location
- 7
- Land
- 4
- Bedrooms
- 2
- Bathrooms
- 1
- Sqft (est)
- 555.00
The heatmap indicates the level of crime in the area. The color of the heatmap indicates the crime severity and recency.
Metrics Year-on-Year
- Average area value
- 491,250.00 £Decreased by 2.14 %
- Est sale value
- 311,910.00 £Increased by 21.91 %
- Average area rental value
- 1,654.00 £/moDecreased by 17.30 %
- Est letting value
- 555.00 £/moUnchanged by 0.00 %
- Est rental Yield
- 4.04 %Decreased by 15.48 %
- Crime Rate
- 9.00 %Unchanged by 0.00 %
Agent Activity
Lakin & Co created the listing.
Nearby Schools
| Name | Type | Ofsted | Distance |
|---|---|---|---|
| Hillingdon Primary School | Academy Converter | 0.21 KM | |
| Highfield Primary School | Community School | Good | 0.55 KM |
| Oak Wood School | Foundation School | Requires improvement | 0.57 KM |
| Swakeleys School For Girls | Academy Converter | Outstanding | 0.71 KM |
| St Bernadette Catholic Primary School | Voluntary Aided School | Good | 0.78 KM |
Images
Nearby Streets
| Name | Average Price | Average Sqft | Distance |
|---|---|---|---|
| Collingwood Road | £ 555,625 | 0 | 0.00 KM |
| Sheridan Close | £ 0 | 0 | 0.00 KM |
| Newlyn Close | £ 665,000 | 0 | 0.00 KM |
| Moorcroft Lane | £ 0 | 0 | 0.00 KM |
| Cherry Grove | £ 0 | 0 | 0.00 KM |
Nearby Transport
| Name | NLC | TLC | Distance |
|---|---|---|---|
| West Drayton | 3174 | WDT | 3.56 KM |
| West Ruislip | 3059 | WRU | 4.29 KM |
| Hayes And Harlington | 3186 | HAY | 4.65 KM |
| South Ruislip | 3057 | SRU | 6.20 KM |
| Iver | 3170 | IVR | 6.86 KM |
Nearby Listings
| Address | Price | Type | Score | Distance |
|---|---|---|---|---|
| Denziloe Avenue, Hillingdon, UB10 | £ 550,000 | BUY | 6 / 10 | 0.05 KM |
| Denziloe Avenue, Hillingdon, UB10 | £ 575,000 | BUY | Unknown | 0.09 KM |
| Denziloe Avenue, Hillingdon, UB10 | £ 375,000 | BUY | 7 / 10 | 0.11 KM |
| Denziloe Avenue, Uxbridge | £ 350,000 | BUY | Unknown | 0.11 KM |
| Denziloe Avenue, Uxbridge | £ 375,000 | BUY | 7 / 10 | 0.11 KM |
Nearby Properties
| Address | Price | Distance |
|---|---|---|
| 33a Denziloe Avenue | £ 290,000 | 0.04 KM |
| 60 Denziloe Avenue | £ 62,950 | 0.04 KM |
| 32 Denziloe Avenue | £ 249,950 | 0.04 KM |
| 36 Denziloe Avenue | £ 240,000 | 0.04 KM |
| 41 Denziloe Avenue | £ 264,000 | 0.04 KM |