No Mans Heath Lane Austrey Atherstone, Warwickshire, CV9 3EW
By Fine & Country
£ 800,000
Reviews
3 out of 5 stars
Fine & Country says ..
Introducing Primrose Cottage, a picturesque haven nestled in nearly 3 acres of tranquil countryside and offered with no onward chain
Property Oracle says ..
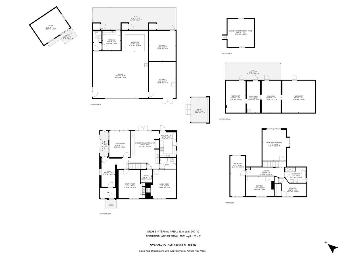
This property, listed by Fine & Country, presents a charming rural residence in Austrey, Warwickshire. The house itself is a substantial dwelling, featuring a number of rooms across what seems to be two stories. The interior displays a mix of traditional and modern features. The kitchen is well equipped and the overall impression is of a well-maintained home, although stylistic preferences will undoubtedly vary. A unique characteristic is the large amount of land surrounding the property, along with a multitude of sheds and outbuildings which could be adapted for many uses. The village location offers a good balance between quiet country life and reasonable proximity to transport links (though not within walking distance) and several ‘Good’ rated primary schools. Potential buyers should carefully consider the distance to daily amenities and balance this against the property’s peaceful setting and spacious grounds.
Therefore, we give this property 7 / 10. *Disclaimer: This is our option and does constitute a recommendation or financial advice. Do your own research. *
- Price
- 6
- Condition
- 7
- Location
- 7
- Land
- 8
- Bedrooms
- 4
- Bathrooms
- 2
- Sqft (est)
- 5,305.00
The heatmap indicates the level of crime in the area. The color of the heatmap indicates the crime severity and recency.
Metrics Year-on-Year
- Average area value
- 262,833.00 £Decreased by 38.15 %
- Est sale value
- 2,663,110.00 £Increased by 31.41 %
- Average area rental value
- 1,350.00 £/moIncreased by 3.85 %
- Est letting value
- 10,610.00 £/moIncreased by 100.00 %
- Est rental Yield
- 6.16 %Increased by 67.85 %
- Crime Rate
- 12.00 %Unchanged by 0.00 %
Agent Activity
Fine & Country marked this listing as sold.
Fine & Country created the listing.
Nearby Schools
| Name | Type | Ofsted | Distance |
|---|---|---|---|
| Austrey Cofe Primary School | Academy Converter | Good | 0.47 KM |
| Newton Regis Cofe Primary School | Academy Converter | Good | 2.27 KM |
| Warton Nethersole'S Cofe Primary School | Academy Converter | Good | 3.58 KM |
| Sir John Moore Church Of England Primary School | Voluntary Aided School | Good | 4.63 KM |
| Netherseal St Peter'S Cofe (C) Primary School | Voluntary Controlled School | Requires improvement | 5.96 KM |
Images
Nearby Streets
| Name | Average Price | Average Sqft | Distance |
|---|---|---|---|
| Elms Drive | £ 0 | 0 | 0.00 KM |
| The Green | £ 0 | 0 | 0.00 KM |
| Wolfric Avenue | £ 390,250 | 0 | 0.00 KM |
| Back Lane | £ 0 | 0 | 0.00 KM |
Nearby Transport
| Name | NLC | TLC | Distance |
|---|---|---|---|
| Polesworth | 1078 | PSW | 5.97 KM |
| Atherstone | 1074 | ATH | 9.12 KM |
Nearby Listings
| Address | Price | Type | Score | Distance |
|---|---|---|---|---|
| No Mans Heath Lane Austrey Atherstone, Warwickshire, CV9 3EW | £ 800,000 | BUY | 7 / 10 | 0.00 KM |
| No Mans Heath Lane, Austrey, Atherstone, Warwickshire, CV9 | £ 425,000 | BUY | 7 / 10 | 0.04 KM |
| Yew Tree Court, Austrey | £ 595,000 | BUY | 7 / 10 | 0.14 KM |
| Newton Lane, Austrey | £ 795,000 | BUY | 7 / 10 | 0.17 KM |
| Rosewood, Warton Lane, Austrey, Warwickshire | £ 550,000 | BUY | 7 / 10 | 0.17 KM |
Nearby Properties
| Address | Price | Distance |
|---|---|---|
| Primrose Cottage | £ 635,000 | 0.06 KM |
| 6 No Mans Heath Lane | £ 222,000 | 0.06 KM |
| 4 No Mans Heath Lane | £ 230,000 | 0.06 KM |
| 7 Yew Tree Court | £ 125,000 | 0.14 KM |
| 8 Yew Tree Court | £ 189,950 | 0.14 KM |