Corum says ..
Spacious three bedroomed semi detached villa, located nearby the green expanse of Bearsden's Colquhoun Park, benefitting from driveway parking and generous rear garden.
Property Oracle says ..
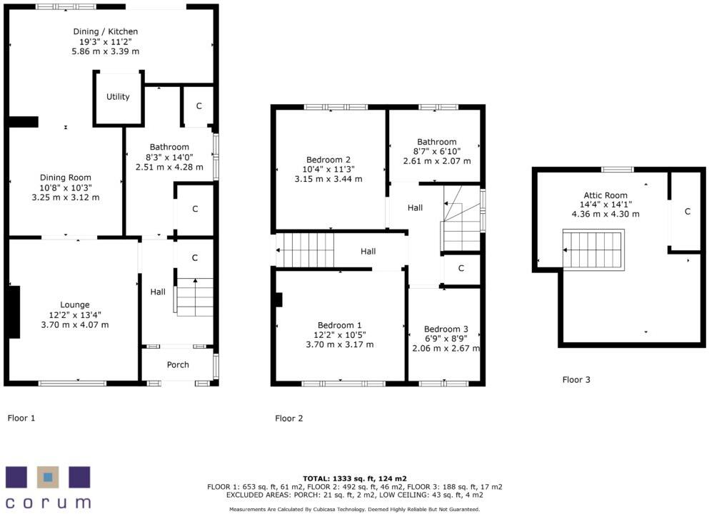
This property is a 3-bedroom, 2-bathroom house located in Bearsden, East Dunbartonshire. The listing price is £280,000, and the property has a size of 1,334.72 sqft. The average price for properties in the area is £379,720, with an average price per sqft of £284. Based on the images provided, the property appears to be well-maintained and in good condition. There is a garden present. The property’s proximity to several ScotRail stations suggests convenient access to public transportation. While the list price is below the average for the area, the condition and presence of a garden could justify this price point. Further information on local schools would aid in a more complete assessment of the location score.
Therefore, we give this property 7 / 10. *Disclaimer: This is our option and does constitute a recommendation or financial advice. Do your own research. *
- Price
- 7
- Condition
- 8
- Location
- 7
- Land
- 7
- Bedrooms
- 3
- Bathrooms
- 2
- Sqft (est)
- 1,334.72
The heatmap indicates the level of crime in the area. The color of the heatmap indicates the crime severity and recency.
Metrics Year-on-Year
- Average area value
- 406,889.00 £Decreased by 7.33 %
- Est sale value
- 407,089.60 £Increased by 10.11 %
- Average area rental value
- 1,900.00 £/moDecreased by 24.09 %
- Est letting value
- 1,334.72 £/moUnchanged by 0.00 %
- Est rental Yield
- 5.60 %Decreased by 18.13 %
- Crime Rate
- 0.00 %
Agent Activity
Corum created the listing.
Images
Nearby Streets
| Name | Average Price | Average Sqft | Distance |
|---|---|---|---|
| Tweed Drive | £ 250,000 | 0 | 0.00 KM |
| Doon Crescent | £ 210,000 | 0 | 0.00 KM |
| Forth Road | £ 230,000 | 0 | 0.00 KM |
| Eskdale Road | £ 195,000 | 0 | 0.00 KM |
| Conon Avenue | £ 269,500 | 0 | 0.00 KM |
Nearby Transport
| Name | NLC | TLC | Distance |
|---|---|---|---|
| Westerton | 9998 | WES | 1.09 KM |
| Bearsden | 9966 | BRN | 1.26 KM |
| Drumchapel | 9994 | DMC | 2.43 KM |
| Hillfoot | 9983 | HLF | 2.58 KM |
| Scotstounhill | 9996 | SCH | 3.18 KM |
Nearby Listings
| Address | Price | Type | Score | Distance |
|---|---|---|---|---|
| 8 Tweed Drive, Bearsden, G61 1EJ | £ 280,000 | BUY | 7 / 10 | 0.00 KM |
| Tweed Drive, Bearsden, Glasgow | £ 280,000 | BUY | Unknown | 0.07 KM |
| Annan Drive, Bearsden, G61 | £ 195,000 | BUY | Unknown | 0.10 KM |
| Doon Crescent, Bearsden, G61 | £ 225,000 | BUY | 7 / 10 | 0.17 KM |
| 16 Allander Road, Bearsden, G61 1LT | £ 265,000 | BUY | Unknown | 0.18 KM |