Chancellors says ..
A two bedroom family home situated in this residential road. Benefiting from two reception rooms, off street parking and outbuilding. Within a mile to good transport links, schools and shops.
Property Oracle says ..
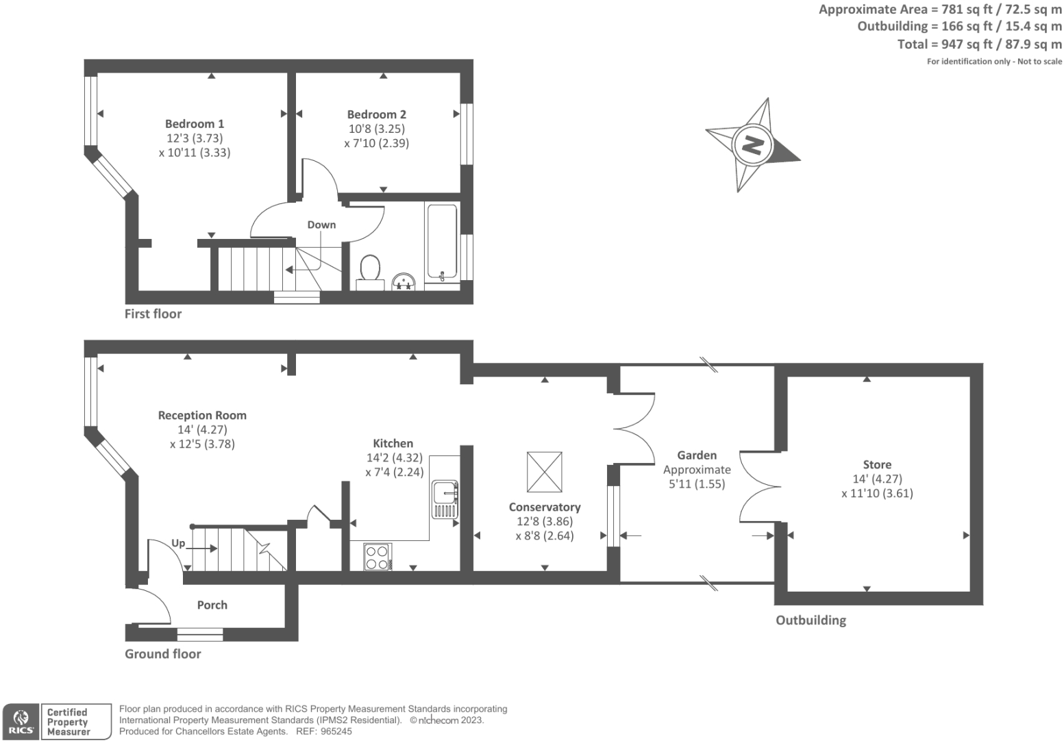
This semi-detached property in Slough, Berkshire is listed at £375,000. The property has two bedrooms and one bathroom, and is situated in the Cippenham Meadows area. The location benefits from proximity to several schools, including Herschel Grammar School (Outstanding Ofsted rating) and Slough Centre Nursery School (Outstanding Ofsted rating), both within a kilometer. Several train stations are also within a reasonable distance, providing good transport links. The property itself appears to be in need of some modernisation, as evidenced by the images. The kitchen and bathroom seem dated and could benefit from an update. The garden is small, more of a yard, which is typical for properties in this area. Considering the average house price in the area is £316,596 and the average price per sqft is £436, the listed price of £375,000 for this 827 sqft property seems slightly on the higher side, especially given its condition. However, the location and proximity to good schools might justify a slightly higher price.
Therefore, we give this property 5 / 10. *Disclaimer: This is our option and does constitute a recommendation or financial advice. Do your own research. *
- Price
- 6
- Condition
- 6
- Location
- 8
- Land
- 3
- Bedrooms
- 2
- Bathrooms
- 1
- Sqft (est)
- 827.00
- Lot (est)
- 947.00
The heatmap indicates the level of crime in the area. The color of the heatmap indicates the crime severity and recency.
Metrics Year-on-Year
- Average area value
- 304,967.00 £Decreased by 8.76 %
- Est sale value
- 382,901.00 £Increased by 1.76 %
- Average area rental value
- 1,680.00 £/moIncreased by 3.51 %
- Est letting value
- 1,654.00 £/moUnchanged by 0.00 %
- Est rental Yield
- 6.61 %Increased by 13.38 %
- Crime Rate
- 1.00 %Unchanged by 0.00 %
Agent Activity
Chancellors created the listing.
Nearby Schools
| Name | Type | Ofsted | Distance |
|---|---|---|---|
| Herschel Grammar School | Academy Converter | Outstanding | 0.50 KM |
| Slough Centre Nursery School | Local Authority Nursery School | Outstanding | 0.60 KM |
| Baylis Court Nursery School | Local Authority Nursery School | Good | 0.83 KM |
| The Godolphin Junior Academy | Academy Converter | Good | 0.88 KM |
| Phoenix Infant Academy | Academy Converter | Good | 0.92 KM |
Images
Nearby Streets
| Name | Average Price | Average Sqft | Distance |
|---|---|---|---|
| Carlisle Road | £ 0 | 0 | 0.00 KM |
| Farnham Road | £ 0 | 0 | 0.00 KM |
| John Taylor Court | £ 0 | 0 | 0.00 KM |
| Finefield Walk1 | £ 457,000 | 0 | 0.00 KM |
| Devon Avenue | £ 530,000 | 0 | 0.00 KM |
Nearby Transport
| Name | NLC | TLC | Distance |
|---|---|---|---|
| Slough | 3172 | SLO | 2.08 KM |
| Windsor And Eton Riverside | 5672 | WNR | 3.35 KM |
| Windsor And Eton Central | 3175 | WNC | 3.59 KM |
| Burnham | 3176 | BNM | 4.12 KM |
| Datchet | 5668 | DAT | 4.94 KM |
Nearby Listings
| Address | Price | Type | Score | Distance |
|---|---|---|---|---|
| Slough, Berkshire, SL1 | £ 375,000 | BUY | 5 / 10 | 0.00 KM |
| Salt Hill Way, Slough | £ 350,000 | BUY | 4 / 10 | 0.02 KM |
| Salt Hill Way, Slough, SL1 | £ 395,000 | BUY | 7 / 10 | 0.06 KM |
| Salt Hill Way, Slough | £ 410,000 | BUY | 6 / 10 | 0.07 KM |
| Salt Hill Way, Slough | £ 425,000 | BUY | 6 / 10 | 0.11 KM |
Nearby Properties
| Address | Price | Distance |
|---|---|---|
| 17a Salt Hill Way | £ 157,000 | 0.07 KM |
| 29 Salt Hill Way | £ 300,000 | 0.07 KM |
| 14 Salt Hill Way | £ 201,500 | 0.07 KM |
| 19 Salt Hill Way | £ 316,600 | 0.07 KM |
| 37 Salt Hill Way | £ 295,000 | 0.07 KM |