Blue Anchor Way, Dale, Haverfordwest
WE

Blue Anchor Way, Dale, Haverfordwest

By West Wales Properties

£ 290,000

Reviews

3 out of 5 stars

West Wales Properties says ..

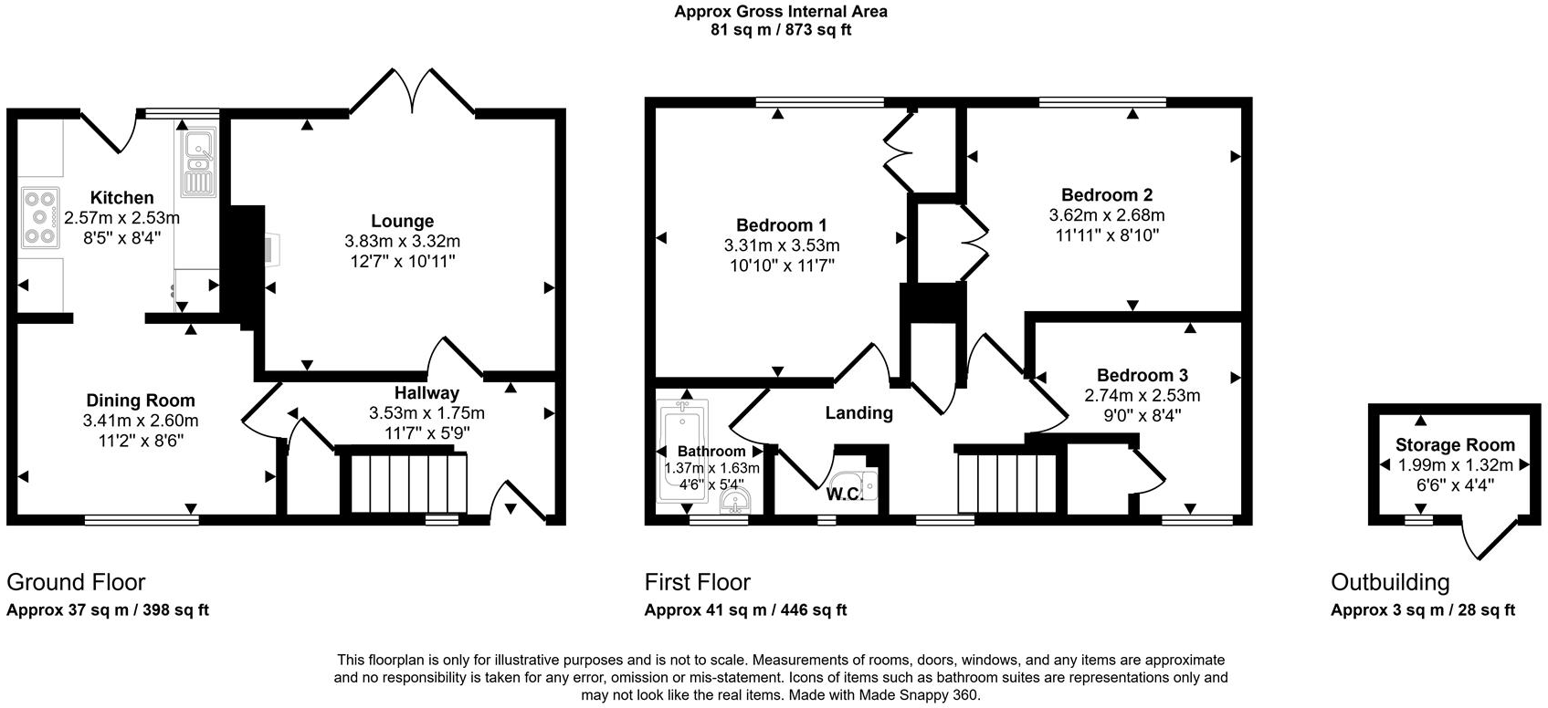
This well-presented family home in Blue Anchor Way is a three-bedroom mid-terraced property in the ever-popular National Park village of Dale. The property is situated a short walk from Dale Castle and the pebble shore at Dale Beach and briefly comprises of an entrance hall, lounge with ...

Property Oracle says ..

Therefore, we give this property 6 / 10. *Disclaimer: This is our option and does constitute a recommendation or financial advice. Do your own research. *

Price
7
Condition
7
Location
6
Land
7
Bedrooms
3
Bathrooms
1
Sqft (est)
725.92

The heatmap indicates the level of crime in the area. The color of the heatmap indicates the crime severity and recency.

Metrics Year-on-Year

Average area value
278,905.00 £
Increased by 2.67 %
from 271,663.00 £
Est sale value
199,628.00 £
Increased by 50.27 %
from 132,843.36 £
Average area rental value
800.00 £/mo
Decreased by 34.53 %
from 1,222.00 £/mo
Est letting value
0.00 £/mo
from 0.00 £/mo
Est rental Yield
3.44 %
Decreased by 36.30 %
from 5.40 %
Crime Rate
355.00 %
Unchanged by 0.00 %
from 355.00 %

Agent Activity

  • West Wales Properties created the listing.

Nearby Schools

NameTypeOfstedDistance
Coastlands County PrimaryWelsh Establishment4.56 KM

Images

DSC_0415.jpg DSC_0296 (1).jpg DSC_0328.jpg DSC_0408 (1).jpg DSC_0306.jpg DSC_0337.jpg DSC_0324 (1).jpg DSC_0370.jpg DSC_0359.jpg DSC_0354 (1).jpg DSC_0347 (1).jpg DSC_0381.jpg DSC_0437.jpg DSC_0429.jpg DSC_0374.jpg DSC_0365.jpg DSC_0319.jpg DSC_0316 (1).jpg DSC_0425 (1).jpg DSC_0419 (1).jpg DSC_0401.jpg DSC_0388 (1).jpg

Nearby Listings

AddressPriceTypeScoreDistance
Blue Anchor Way, Dale, Haverfordwest £ 290,000BUY6 / 100.00 KM
Blue Anchor Way, Dale, Haverfordwest, Pembrokeshire, SA62 £ 300,000BUY6 / 100.08 KM
Blue Anchor Way, Dale, Haverfordwest, Pembrokeshire, SA62 £ 270,000BUY7 / 100.12 KM
Dale, SA62 £ 850,000BUY5 / 100.55 KM
Dale, SA62 £ 695,000BUY7 / 100.59 KM

Nearby Properties

AddressPriceDistance
105 Blue Anchor Way £ 150,0000.12 KM
61 Blue Anchor Way £ 125,0000.12 KM
65 Blue Anchor Way £ 175,0000.12 KM
99 Blue Anchor Way £ 195,0000.12 KM
103 Blue Anchor Way £ 185,0000.12 KM