Chancellors says ..
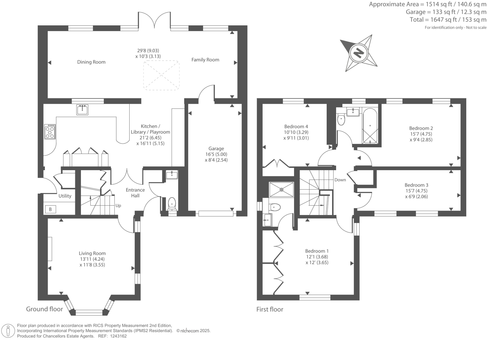
Set in this popular location convenient for local schools, amenities and Sulham Woods is this extended and improved detached family home. Accommodation includes four double bedrooms, ensuite to master, extended kitchen / breakfast room opening onto family room. Garage, parking and gardens
Property Oracle says ..
The property is located in Tilehurst, Berkshire, a suburb of Reading.
Tilehurst benefits from good local amenities, including several well-regarded primary schools such as Birch Copse Primary School (rated Outstanding by Ofsted) and Little Heath School (rated Good), all within a short distance of the property. The proximity to Tilehurst train station, providing links to Reading and beyond, adds to its convenience. The M4 motorway is also relatively accessible, offering good transport links to other parts of the country. The presence of a garden is evident from the provided photographs.
Based on the images, the property appears to be in good condition. The interior is modern, well-maintained, and shows evidence of recent renovations or upgrades, particularly in the kitchen and living areas. There is no visible evidence of significant repairs needed.
The list price of £700,000 requires further analysis in relation to comparable properties. While data on average price per square foot for nearby streets is unavailable, nearby property sales show a range of prices, some significantly lower and some higher than the listing price. The size of the property (3,454 sqft) and the inclusion of a garden contribute to a higher value, but a definitive price assessment requires more comprehensive local market data, specifically average price per sqft for similar properties in the immediate area. The available data is insufficient to provide a conclusive rationale on price.
Therefore, we give this property 8 / 10. *Disclaimer: This is our option and does constitute a recommendation or financial advice. Do your own research. *
- Price
- 0
- Condition
- 9
- Location
- 8
- Land
- 7
- Bedrooms
- 4
- Bathrooms
- 2
- Sqft (est)
- 3,454.00
- Lot (est)
- 1,514.00
The heatmap indicates the level of crime in the area. The color of the heatmap indicates the crime severity and recency.
Metrics Year-on-Year
- Average area value
- 557,273.00 £Increased by 9.25 %
- Est sale value
- 1,761,540.00 £Increased by 6.47 %
- Average area rental value
- 1,975.00 £/moIncreased by 20.65 %
- Est letting value
- 3,454.00 £/moUnchanged by 0.00 %
- Est rental Yield
- 4.25 %Increased by 10.39 %
- Crime Rate
- 13.00 %Unchanged by 0.00 %
Agent Activity
Chancellors created the listing.
Nearby Schools
| Name | Type | Ofsted | Distance |
|---|---|---|---|
| Birch Copse Primary School | Community School | Outstanding | 0.63 KM |
| Little Heath School | Voluntary Aided School | Good | 0.90 KM |
| Springfield Primary School | Community School | Good | 0.99 KM |
| St Paul'S Catholic Primary School | Voluntary Aided School | Good | 1.07 KM |
| Downsway Primary School | Community School | Good | 1.07 KM |
Images
Nearby Streets
| Name | Average Price | Average Sqft | Distance |
|---|---|---|---|
| Ashbury Drive | £ 0 | 0 | 0.00 KM |
| Hayfield Close | £ 0 | 0 | 0.00 KM |
| Lansdowne View | £ 500,000 | 0 | 0.00 KM |
| Hazelwood Close | £ 457,500 | 0 | 0.00 KM |
| Third Avenue | £ 0 | 0 | 0.00 KM |
Nearby Transport
| Name | NLC | TLC | Distance |
|---|---|---|---|
| Tilehurst | 3154 | TLH | 2.88 KM |
| Theale | 3153 | THE | 3.93 KM |
| Pangbourne | 3036 | PAN | 4.80 KM |
| Reading West | 3160 | RDW | 7.10 KM |
| Reading | 3149 | RDG | 9.09 KM |
Nearby Listings
| Address | Price | Type | Score | Distance |
|---|---|---|---|---|
| The Ridings, Tilehurst, Reading | £ 455,000 | BUY | 8 / 10 | 0.12 KM |
| The Ridings, Tilehurst, Reading | £ 425,000 | BUY | 7 / 10 | 0.12 KM |
| Home Croft, Tilehurst, Reading, RG31 | £ 385,000 | BUY | 6 / 10 | 0.17 KM |
| Home Croft, Tilehurst, Reading, RG31 | £ 420,000 | BUY | 7 / 10 | 0.17 KM |
| Home Croft, Tilehurst, Reading, RG31 | £ 400,000 | BUY | 7 / 10 | 0.17 KM |
Nearby Properties
| Address | Price | Distance |
|---|---|---|
| 1 Home Croft | £ 308,000 | 0.16 KM |
| 10 Home Croft | £ 426,000 | 0.16 KM |
| 5 Home Croft | £ 270,000 | 0.16 KM |
| 8 Home Croft | £ 222,000 | 0.16 KM |
| 3 Home Croft | £ 244,950 | 0.16 KM |