Raymond Road, Hellesdon, Norwich
By Starkings & Watson
£ 290,000
Reviews
3 out of 5 stars
Starkings & Watson says ..
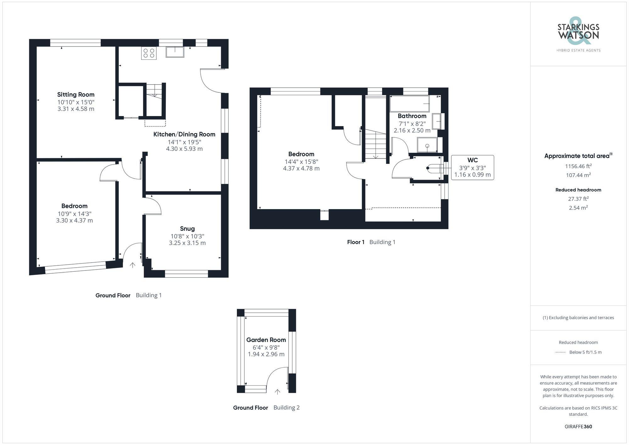
Having been EXTENDED and IMPROVED, this SEMI-DETACHED CHALET BUNGALOW offers in excess of 1000 Sq Ft. (stms) of accommodation, with PRIVATE and ENCLOSED GARDENS, and separate GARDEN ROOM from the GARAGE. Open plan living features inside with a 19’ DUAL ASPECT KITCHEN/DINING ROOM flowing into the ...
Property Oracle says ..
The property is a well-maintained 3-bedroom chalet bungalow in a desirable location close to good schools and amenities. The recent kitchen update is a positive feature, and the garden adds to the property’s appeal. While the list price is slightly below the average for the area, the smaller size of the property compared to the average, and the lack of plot size information, makes a definitive conclusion on value difficult.
Therefore, we give this property 7 / 10. *Disclaimer: This is our option and does constitute a recommendation or financial advice. Do your own research. *
- Price
- 7
- Condition
- 8
- Location
- 8
- Land
- 6
- Bedrooms
- 3
- Bathrooms
- 1
- Sqft (est)
- 1,035.00
The heatmap indicates the level of crime in the area. The color of the heatmap indicates the crime severity and recency.
Metrics Year-on-Year
- Average area value
- 417,969.00 £Increased by 36.61 %
- Est sale value
- 387,090.00 £Increased by 1.91 %
- Average area rental value
- 1,251.00 £/moIncreased by 48.05 %
- Est letting value
- 1,035.00 £/moUnchanged by 0.00 %
- Est rental Yield
- 3.59 %Increased by 8.46 %
- Crime Rate
- 4.00 %Unchanged by 0.00 %
Agent Activity
Starkings & Watson created the listing.
Nearby Schools
| Name | Type | Ofsted | Distance |
|---|---|---|---|
| Arden Grove Infant And Nursery School | Academy Converter | Outstanding | 0.73 KM |
| Firside Junior School | Academy Converter | Good | 0.78 KM |
| Kinsale Junior School | Academy Converter | 1.21 KM | |
| Kinsale Infant School | Community School | Good | 1.21 KM |
| Hellesdon High School | Academy Converter | Good | 1.41 KM |
Images
Nearby Streets
| Name | Average Price | Average Sqft | Distance |
|---|---|---|---|
| Holt Road | £ 0 | 0 | 0.00 KM |
| Saint Andrews Road | £ 335,000 | 0 | 0.00 KM |
| Heath Close | £ 325,000 | 0 | 0.00 KM |
| Shrub Lane | £ 290,000 | 0 | 0.00 KM |
| Oak Tree Lane | £ 0 | 0 | 0.00 KM |
Nearby Transport
| Name | NLC | TLC | Distance |
|---|---|---|---|
| Norwich | 7309 | NRW | 6.83 KM |
Nearby Listings
| Address | Price | Type | Score | Distance |
|---|---|---|---|---|
| Raymond Road, Hellesdon, Norwich | £ 290,000 | BUY | 7 / 10 | 0.00 KM |
| Raymond Road, Hellesdon, Norwich | £ 290,000 | BUY | 7 / 10 | 0.07 KM |
| Berrington Road, Hellesdon, Norwich, Norfolk, NR6 | £ 350,000 | BUY | 6 / 10 | 0.15 KM |
| Sadler Road, Hellesdon, Norwich | £ 350,000 | BUY | 7 / 10 | 0.15 KM |
| Raymond Road, Hellesdon, Norwich, Norfolk, NR6 | £ 300,000 | BUY | 6 / 10 | 0.16 KM |
Nearby Properties
| Address | Price | Distance |
|---|---|---|
| 145 Gowing Road | £ 160,000 | 0.17 KM |
| 147 Gowing Road | £ 260,000 | 0.17 KM |
| 151 Gowing Road | £ 205,000 | 0.17 KM |
| 135 Gowing Road | £ 170,750 | 0.17 KM |
| 166 Gowing Road | £ 202,000 | 0.17 KM |