Henry Adams says ..
Charming bungalow in Selsey with 2 double bedrooms, spacious living room, conservatory, larger than average kitchen, westerly facing garden, driveway, garage. No onward chain, EPC-tbc, Council tax-D
Property Oracle says ..
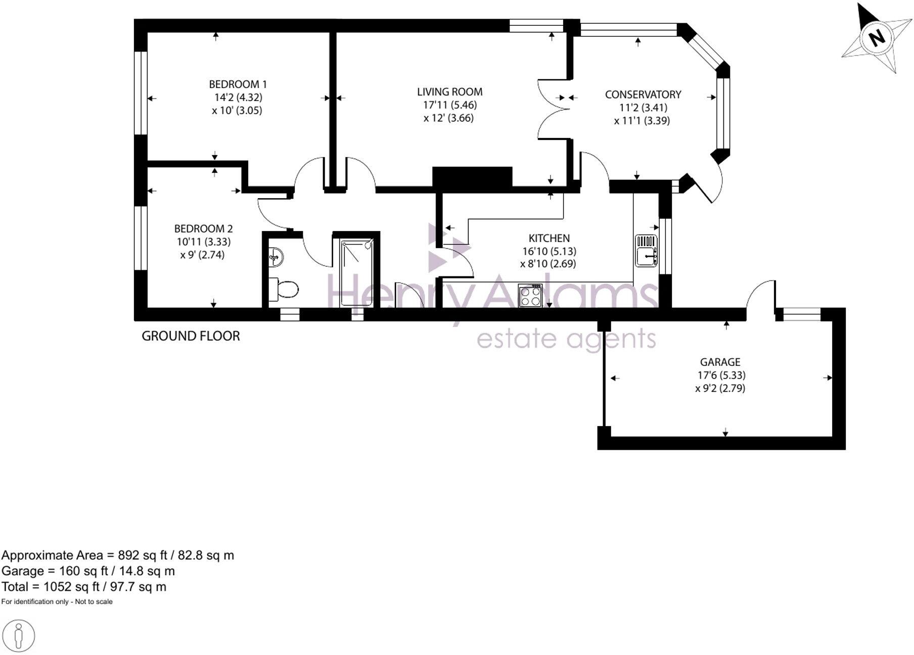
The property is a 2 bedroom detached bungalow situated on Tythe Barn Road in Selsey, West Sussex. The list price is £415,000. The property benefits from a good size rear garden, as shown in the provided images. The garden is mainly lawned with a paved patio area. There is also a detached garage. Based on the images, the property appears to be in generally good condition. The interior is presented well, although some aspects appear dated. The kitchen and bathroom appear to have been recently updated. The average price for properties in the area is £322,088, and the average price per square foot is £256. This property is 883.50 sqft and is listed at £415,000. This equates to approximately £469 per sqft, which is significantly higher than the average for the area. However, several nearby properties on Tythe Barn Road have sold for prices in excess of £400,000, suggesting that this property may be reasonably priced, considering its location and size. More information on the specifics of comparable properties would be needed to make a more definitive statement on value. The property is located close to several schools that have received good Ofsted ratings. This is a positive factor for families. However, there is no information provided on nearby transportation links.
Therefore, we give this property 7 / 10. *Disclaimer: This is our option and does constitute a recommendation or financial advice. Do your own research. *
- Price
- 6
- Condition
- 8
- Location
- 7
- Land
- 7
- Bedrooms
- 2
- Bathrooms
- 1
- Sqft (est)
- 883.50
- Lot (est)
- 1,052.00
The heatmap indicates the level of crime in the area. The color of the heatmap indicates the crime severity and recency.
Metrics Year-on-Year
- Average area value
- 291,999.00 £Decreased by 21.52 %
- Est sale value
- 132,525.00 £Decreased by 56.65 %
- Average area rental value
- 1,050.00 £/moIncreased by 9.95 %
- Est letting value
- 0.00 £/mo
- Est rental Yield
- 4.32 %Increased by 40.26 %
- Crime Rate
- 8.00 %Unchanged by 0.00 %
Agent Activity
Henry Adams created the listing.
Nearby Schools
| Name | Type | Ofsted | Distance |
|---|---|---|---|
| Selsey Children & Family Centre | Children's Centre | 0.58 KM | |
| Seal Primary Academy | Academy Sponsor Led | Good | 0.63 KM |
| Medmerry Primary School | Academy Converter | Good | 0.98 KM |
| The Academy, Selsey | Academy Sponsor Led | Good | 1.11 KM |
| Sidlesham Primary School | Community School | Good | 5.39 KM |
Images
Nearby Streets
| Name | Average Price | Average Sqft | Distance |
|---|---|---|---|
| Longacre | £ 0 | 0 | 0.00 KM |
| Latham Road | £ 572,500 | 0 | 0.00 KM |
| Pennycord Close | £ 320,000 | 0 | 0.00 KM |
| Barnes Close | £ 0 | 0 | 0.00 KM |
| Croft Road | £ 375,000 | 0 | 0.00 KM |
Nearby Listings
| Address | Price | Type | Score | Distance |
|---|---|---|---|---|
| Tythe Barn Road, Selsey, PO20 | £ 415,000 | BUY | 7 / 10 | 0.00 KM |
| Tythe Barn Road, Selsey | £ 499,000 | BUY | 7 / 10 | 0.04 KM |
| Longacre Lane, Selsey, Chichester, PO20 | £ 570,000 | BUY | 8 / 10 | 0.06 KM |
| Tythe Barn Road, Selsey | £ 310,000 | BUY | 5 / 10 | 0.06 KM |
| Tythe Barn Road, Selsey, PO20 | £ 375,000 | BUY | 6 / 10 | 0.08 KM |
Nearby Properties
| Address | Price | Distance |
|---|---|---|
| 6 Longacre Lane | £ 195,000 | 0.06 KM |
| 7 Longacre Lane | £ 238,000 | 0.06 KM |
| 9 Longacre Lane | £ 400,000 | 0.06 KM |
| 1 Longacre Lane | £ 385,000 | 0.06 KM |
| 10 Tythe Barn Road | £ 232,000 | 0.07 KM |